55㎡简约一居,白色+黑胡桃木色,打造幽暗静谧的二人空间,绝美
55平米作为小一居户型比较常见,之前也大家分享了很多成功案例,但要想规划设计得充满格调又个性十足,时尚实用又温馨舒适、宽敞大气,这样的经典案例并不多见!
90后年轻夫妻曲先生和狄女士就购买的一套这样的小一居,他俩小家的装修并没有走寻常路,简约风装修得满屋刷了大白墙,但家具则采用了黑胡桃木色,搭配原木色地板,让室内显得十分幽暗静谧有品位,体现出一种与众不同的美!

玄关/厨房
进门在左侧规划了玄关收纳区域,进门第一眼就是满墙的黑胡桃木色家具,低调沉稳有内涵。右侧是开放式厨房的区域,本身面积小,在做封闭式厨房还没有采光窗户,难免显得黑暗压抑。


L型布局的整体橱柜+高柜储物空间十分巨大,并嵌入厨房电器,让厨房柜面更整洁平齐,使用起来顺手又节省空间。大吸力油烟机让厨房环境更清新。

客餐厅
厨房对面是客餐厅的区域,餐厅与西厨规划在一起,连接黑色实木长条餐桌定做一面墙的黑胡桃木色餐边柜,柜内除了收纳餐厅用具外还设计了操作台,配置了西厨设施及用餐,方便制作西餐及烘焙食品的西点。

平时关上柜门保持墙面平整,放上两把舒适的休闲餐椅就可以在这里享受中西餐美食,再品上一杯红酒,太有生活情调了!

平时坐在这里看书喝下午茶等,也能放松心情,享受慢生活。

餐桌里侧连接墙柜和书架定做一个实木卡座代替客厅的沙发,依然选择了整体的黑胡桃木色,实木卡座既可以坐在上面品茶会客聊天看书等,底部又可以储物,真是太舒适实用了!


宽大的卡座做了分体式设计,打开后中间可以放一个小茶几,合并后做单人床睡一个绝对没问题,家人来了临时留宿很方便。

为什么说只能是家人呢,因为客厅靠背后侧就是卧室区域,外人在这住比较尴尬。

卧室
卧室内不但两侧的展示搁架和床尾处的衣柜统一颜色,就连棚顶也定做了风格统一的实木吊顶,搭配整洁发的白色床品,让睡眠空间十分舒适宁静清新。

展示架上简单地摆放着少量的书籍和饰品,方便睡前阅读,也让卧室空间不显压抑。


卧室连接的阳台内一侧定做的储物柜,一侧规划为一个小书房,方便在家临时工作学习。而宽大的窗前棚顶还隐藏一个电动投影幕布,晚上看电影时放下来,在家同样可以体验影院级视听感受!

卫生间


卫生间布置得简约而不简单,圆角造造型的墙角处正好放下一个椭圆形的大浴缸,淋浴间单独用玻璃隔断做了干湿分离设计,让时尚优雅舒适的卫浴空间更整洁实用方便。

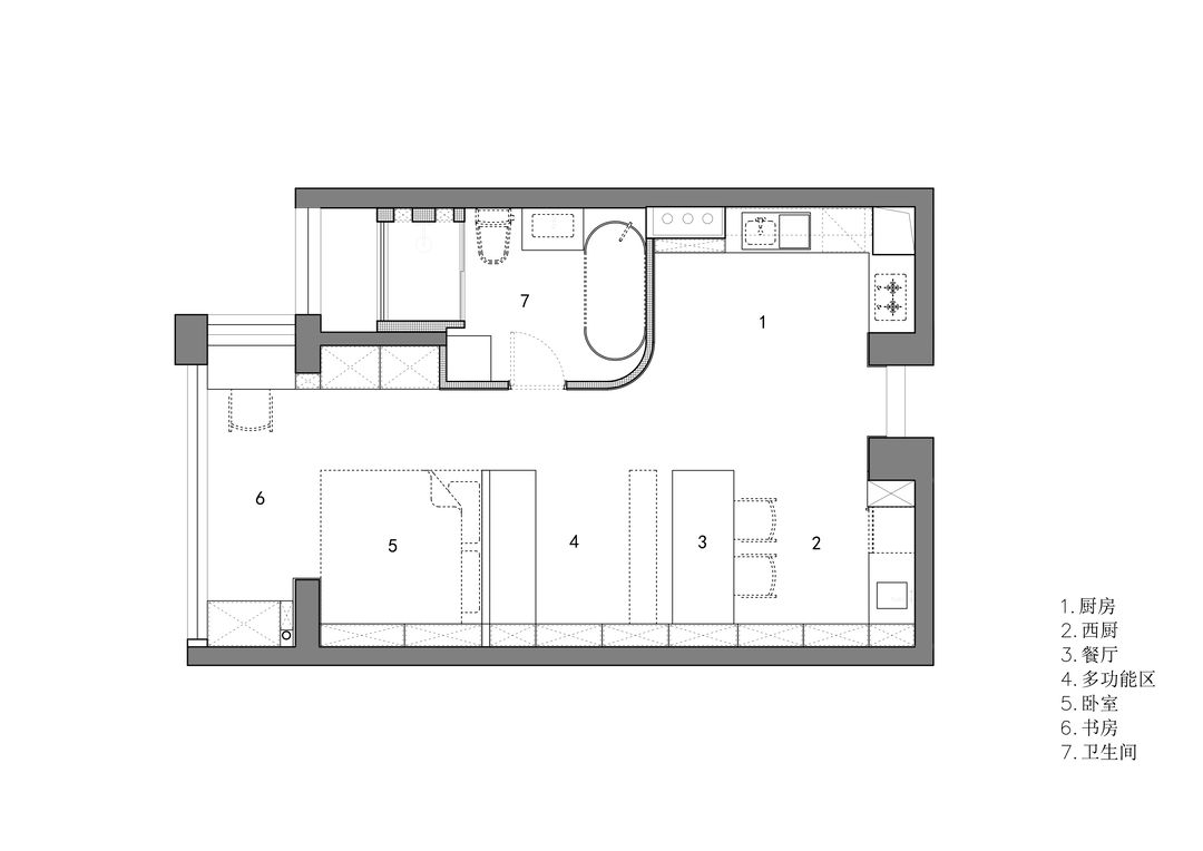
平面布置图
看完这对夫妻充满个性、低调轻奢的完美小家规划设计,不知是你喜欢的风格吗?