
是新朋友吗?记得先点蓝字关注小克哦~
西安·中梁壹号院
空间美学与文化的完美融合,多变空间洋房、宽境别院叠墅

-
坐落秦汉新城文旅聚集区,1.7容积率低密住区
-
以丝路为灵感的空间设计
-
预留改造空间,2房轻松变3房。
-
不限购,90㎡-132㎡舒适洋房,166㎡-192㎡宽境叠墅。
-
南向平整全幅采光,转角飘窗+大阳台,豪华景观体验,南北通透,双卫全明
项目概况


1.区位

位置: 秦汉新城位于大西安布局的地理中心,是唯一一个连接西安咸阳以及西咸新区5大板块的新城,区域内85%用于遗址保护和城市绿化,且规划平均容积率不高于2.5。
产业: 区域总规划面积302平方公里,主要产业为都市农业及绿色食品加工业、文化旅游休闲康体产业、现代制造业与高端商贸商务服务业。

交通:距离北客站18KM,机场直线距离9KM,交通路网方面南临萧何路,东临汉高大道,西邻汉书一路,北侧为李广街。公交目前开通3条可达项目,轨交方面规划16号线韩信路站紧邻本项目,规划2022年开通。
2.配套
学校:清华大学直属附中,秦汉兰池小学,枫叶国际学校、交大康桥小学
商业:赛特-奥特莱斯机场店(已开业),西咸购物中心(规划建设),项目自带3000平社区底商,紧邻规划建设的4万平商业步行街及G-Super全球商品直销中心。
医院:交大二附院秦汉分院、秦汉中心医院、四医大医疗基地、秦汉新城中医养

公园:板块内遗址保护区及绿化面积达85%,整体形成两河一湖四公园的格局。
3.基本信息


户型

小区楼位总平图

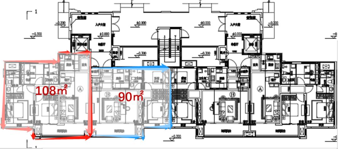
90㎡-108㎡户型层平图(2T4户洋房)

132㎡户型层平图(2T2户洋房)

166㎡-192㎡户型平层图(1T2户叠墅)

90㎡户型详解
户型点评: 项目中面积最小的户型,总价低,两室两厅一厨一卫,面宽6.5米大阳台,采光充足,书房客厅一体化设计增加了使用空间,后期根据业主需求可将该区域分隔,改为三室。厨房、洗手间均有窗。
缺点:缺少入户玄关,私密性不佳。

108㎡户型详解
户型点评:三室两厅两卫,全明户型,南北通透,三房朝南,主卧采取套房设计,270°大飘窗,增加采光及卧室空间通透性,主卫次卫均带窗。入户玄关起到良好的保护私密性的作用。
缺点:为了打造南侧6.5米宽的阳台,南侧次卧的窗户在户内,虽然通风采光不存在问题,私密性上会有影响。

132㎡户型详解
户型点评:四室两厅两卫,户型方正,餐客一体,主卧采取套房设计,270°大飘窗,增加采光及卧室空间通透性,108户型的放大版,整体空间舒适性更高。
缺点:从尺寸看,餐厅位置可能实际使用空间有限。

166㎡上叠户型详解
户型点评: 四室两厅三卫,一层主要为公共区域,餐客一体,超大阳台,U形的内部楼梯设计节省空间;二层,舒居双卧布局。主卧独享精致露台,户型方正,居住舒适性有保障。三层,独立天台花园,配置入户电梯,使用便捷。
缺点:通向顶层的花园电梯是公用的,对私密性有一定影响。

179㎡中叠户型详解
户型点评: 一层主要为公共区域,餐客一体,超大阳台,U形的内部楼梯设计节省空间;二层,舒居双卧布局。主卧独享精致露台,户型方正,居住舒适性有保障。
缺点:户型赠送面积少。

192㎡下叠户型详解
户型点评: 四室两厅三卫,负一层5.3米层高,3米宽采光井,最大程度引入自然光,有效改善了地下室压抑的环境,地下可以用作娱乐活动室。一层餐客一体超大使用空间,独享私家花园。二层舒适居住休息区,豪华主卧,酒店套房式设计。
缺点:3米的采光井略小,采光通风方面可能有些许瑕疵。

精装


洋房部分精装样板间实拍图

厨房

洗手间

餐客厅

卧室
叠墅部分精装样板间实拍图



餐客厅

书房

卧室

儿童房

次卧
环境配套

规划理念
城市,不只是物质的,更具有丰富的人文感,“西安是一座有着悠久历史的古都,丝绸之路起点,从人文历史角度出发,项目提取丝绸文脉元素,将其拆分为“柔”与“透”两大建筑语言。水对应柔,光对应透,利用建筑的表达,融入现代主义,当东神遇到西韵,模山范水的东方主义美宅诞生了。

建筑风格

住宅方面融入现代主义元素,将设计美学与实用结合,浅咖色真石漆与米色石材搭配使用,咖色意象为中国传统建筑中的木,顶部线条设计汲取传统文化文化中屋檐元素,以灰色瓦片作为装饰。整体呈现东方传统+西方简约的新亚洲的混搭风。

利用洋房与叠墅的高差,组成多角度多层次的城市天际线。
景观及社区
景观方面以山为石,以水为溪,因地制宜,提取丝带的弯曲之形柔韧之感,使整个景观动线更加生动。


整体景观分为3大板块、6大功能区,摒弃繁琐,打造峰峦叠翠,柳岸啼鸣的意境。

920㎡中央会客厅,适合全龄人活动的阳光草坪,将室内活动延伸至户外,更多的亲近领略自然。

会客厅南侧设置樱花漫步道,形成一花一世界的场景,使居民不出家门也能在早春时节充分感受花团锦簇的盎然春意。


后场的园路代表着“丝绸之路”的弯曲之形,周围的草坪和组团绿化搭配景观小品,使后场园路景观更加丰富;大型铁艺景观亭象征“蚕茧”主题元素富有趣味性。

儿童区活动区,专为不同年龄段的儿童定制成长乐园,看护交流区配备座椅,整个活动场地配备摇摇椅,特色滑滑梯,丛林探险,蚕丝网洞,同时还设置休憩场所。整个场所的都是无棱角设计,充分保证孩子们玩耍时的安全性。


健身活动场地,配健身器械、起跑热身区及休憩座椅塑胶跑道环保防滑,跑道设置热身区,起跑区,加速区,超越区,冲刺区等。
测评雷达图


测评总结:
中梁壹号院所处位置为西咸秦汉新城,目前处于发展区域,但在区域整体限制开发的前提下,住宅周边的生态环境非常好。
由于区域不属于传统生活区,配套资源无法借势,规划而言项目内配置了3000㎡商业,距离项目一路之隔的教育用地上规划建设4所学校,医院方面借势距离3km的恒大文旅城配套。交通主干道通达,开车便捷,对于在西咸工作的人而言,项目是个不错的选择。轨交方面待2022年16号线通车后,对区域公共交通会有很大提升。
开发商、物业公司中梁控股,住宅区域园林景观从丝绸中提取元素,中西结合设计美感高,小区内的售楼部未来将作为社区会所,围合+下沉式庭院的设计营造了富有禅意的围合空间。建筑与整体景观相容,相当亮眼。住宅单体立面采用了东西融合的新亚洲风格,浅咖色+米色,摒弃了传统住宅的厚重感,彰显着简约的美感。
户型方面是本项目的优势所在,洋房90㎡-132㎡,南北通透,客餐厅一体,主卧270度大飘窗,增加采光及卧室空间通透性。主次卫全明,同一空间内,做到干湿分离。此外户型充分考虑了住户后期的使用,优化结构剪力墙,给后期空间的改动留下余地。轻松2室变3室,3室改4室,预留空间多样性充分表现了项目的人性化设计。
对于叠墅产品,户型方正,面宽进深比设计合理,上叠拥有顶楼全景花园,下叠拥有一层私人花园,及自然采光的地下室。中叠设计微有瑕疵。该产品存在的唯一问题是没有具体显示赠送的面积,消费者在购房时需要对这一指标重点关注。
本项目目前销售均价,洋房10000元/㎡,叠墅14000元/㎡,从小区内部的设计及户型的优良性看,区域内工作的人群是可以考虑入手的。
本项目的缺点均来源于外部因素,例如周边配套不足,距离项目3km处有一个垃圾焚烧厂,但相信伴随西咸整体区域发展此类问题会得到解决。
免责声明:本号致力于分享有价值的内容,转载引用仅为传播更多信息之目的,信息源自互联网,如涉及侵权请联系我们删除,谢谢!

克而瑞
长按二维码关注公号
周一至周五新鲜房产资讯

克而瑞成立于2006年,通过十余年淬炼,克而瑞从行业数据到客户数据,实现了房地产大数据闭环。克而瑞拥有地产、资管、证券、物管、租赁、科创六大事业部。服务业务覆盖一手住宅、二手租赁、资产管理、建筑建材、证券研究、物业管理研究等领域。设计研发线上产品有CRIC系统、投资决策系统、数据营销系统、场景化大屏、栅格土地评估系统、租赁系统、CPA数据库、SPEC品牌库等。资管信息服务产品秋实链、易楼、资产数据库。为大量房企提供全面可靠的决策依据。
目前克而瑞已经成为中国领先的泛房地产领域的大数据服务商,作为核心客户的房企百强的覆盖率达到95%以上。客户总规模更是超过1000家,遍布于房产,金融,商业等各个行业,并同时为政府提供相关的决策数据。