新古典的韵味中略带中式风味。客厅、餐厅的天花板与地面的拼花相对应,彰显出整个空间的规律性。大理石的自然纹理,木材的敦厚温润的质感,棉麻素锦的布艺材质皆蕴含晓自然的宗禅意境。整个房子体现出轻奢典雅的韵味。

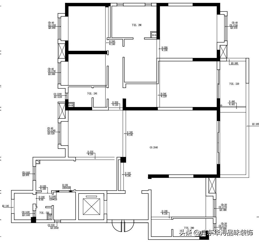
原始户型图
基本信息:
项目名称:国”潮“居
所在城市: 江苏泰州
面积: 276平方
风格: 意境中式
主要材料:红樱桃原木,进口涂料,石膏板,瓷砖,哑光砖,岩板,硬包,线型灯

平面布置图
客厅和餐厅连接减少隔断,增加利用面积。大户型空间可以选择单独房间做餐厅和书房。可以主卧添加洗手间方便生活。各个房间走廊选择直廊型更方便而且还非常的美观。
客厅
花瓶的吊灯和四周的磁性导管灯,在增加照明面积的同时还增加了氛围感,使房间总够明亮和好看。石膏板的造型勾黑缝使装饰更加高级不单调。

红樱桃原木饰的面板和瓷砖墙是墙壁展现复古感,中间金色圆包边展现山水画,增加了设计感和复古感。电视墙采用蓝色扎染瓷砖,用孔雀蓝与其他同类色进行搭配,使整体界面呈现出古典、高雅和清幽的感觉,符合界面想要表达的主题。

原木沙发和中式座椅结合,正好突出了客厅的复古感,展现出中式风格。在沉稳深色系的咖色中,点缀生动活泼的宝石蓝和低饱和度的蓝,使得画面不那么暗沉,增加房间的明亮度。别出心裁的建筑室内设计、硬质装修以及软质装饰,完美地展现了住宅的特点和其独特的设计。

餐厅
客厅采用的圆形餐桌和吊灯低调奢华,墙边的木制柜,使用方便还美观,上面还带有两幅山水画,将中式风格提现的淋漓尽致。扎染的瓷砖柜,既方便清理又高级美观。

新古典韵味中带着中式风味。蓝色的墙壁给这个房间衬得更加生动活泼,在深色调的咖色中选择一些明度较高的蓝色来点缀装饰,可以使整个画面达到明暗混合的效果。

咖色的硬包边,显得白色不那么单调高级感满满。独居特色的吊灯和花瓶做点缀让整个画面既有设计感又生活气息满满。

主卧
主卧自带卫生间,是吊灯加环形灯的设计,地板是棕色的木制地板。墙一侧的木制衣柜大大增加储物面积,在实用的基础上还增加了复古感。

主卧也是樱桃红木墙,中间是一幅黄青相间的水墨画,给整体的房间带来一种中式复古感。具有设计感的床,可以挂帘子。

独立卫浴是干湿分离的设计,人性化还方便,带有立体花纹的木制柜子和木制围边镜子相呼应,彰显古典气质。洗手台选用支撑型的,可以使打扫起来更方便,没有卫生死角。

次卧
空间足够大所以有两间次卧,两间次卧也都是吊灯和导线的结构,氛围感十足。中纯度和低纯度的粉色,除了带来欢快娱乐的感觉以外,还可以做出具有一致性的配色,
此款家居装饰充满了浓浓的少女气息,小部分的装饰中和了全屋强烈的粉色带来的冲击,浅粉色的低纯色壁纸可以使画面整体给人温馨、安静、沉着的感觉。

纯度降低时使人对色彩的变化感觉变小。但是复古边的床头柜和床头使得整个房间并没有走失整个中式复古的风格。
墙壁上的照片墙可以加大住户的居住幸福感。独特可爱的地毯让这间房子有了更生动的活力。

第二间次卧的设计相比第一间中式风格更重一点这件更适合男孩子,
进口涂料使得整个墙壁更加生动,加上线形灯的照射更加熠熠生辉。这件次卧把空出的白墙安放了电视,中式的椅子和台灯使得整个房子锦上添花。

书房
书房采用的原木桌椅上面刻有精致的花纹,整套家具具有古典的气息。'整个书房以咖色为主,暗色调在搭配中表现出深沉、坚实、庄重的气质,这样的搭配更贴合中式的风格。

原木地板和墙壁上玻璃柜颜色相呼应,红色窗帘衬着整个房间不那么庄重,给这个房间更多活力。落地的窗户增加了房间内的采光度,保证足够的亮度以供办公学习。
