在这个景山*瑰园玫**87平米北欧风格三居室设计案例中,设计师以“舒适惬意、简单温馨”为设计主轴,总体氛围融入了时尚、舒适、内敛的设计元素,突出居住者睿智深刻的生活阅历及艺术品味,展现出空间的立体感受和特有的文化品味,同时也不乏温馨感,提高了空间使用者对生活品质及舒适居所的完美追求。
【小区】:景山*瑰园玫**
【预算】:9万
【类型】:全包
【户型】:三居室
【面积】:87平米
【风格】:北欧风格
【业主需求】:业主希望家里的感觉是温馨惬意的生活环境
【预算说明】:设计费5000,主材费约45000,工程费约50000
空间整体就是用的白色的墙面,灰白色的沙发,白色的电视柜、原木色的茶几,看起来软绵绵的地毯,周末的时光在家里的客厅也是一种轻松享受。

客厅的区域,这是一个电视背景的图片,用最为简单的电视柜为装饰,原木的颜色,不会有任何抢眼的东西,但是又让人的目光离不开他。
窗户旁边的一个小角落,放着一把小椅子,和一把尤克里里,恬静的生活节奏,下午的时光坐在椅子上弹奏着自己的尤克里里是多么惬意的生活。
餐厅旁边的架子上面放满了男主人的收藏品,家里多了一丝生气,选择了宜家风的灯具,简单中带着自己的特色,每天的就餐也是享受着每天的生活。
卧室里面采用着原木的背板,不用多余装饰的,摆在床头上面一个干净又有意境的挂画,床头并没有用放置的灯而是使用下挂式的灯作为床头灯,作为墙面有了一个装饰 。
厨房贴砖的样式采用的的红砖的铺贴样式,还原本真的感觉,制作了U型的橱柜把煤气罐包在其中。
厨房的门用的是比较有特色的木门的样式,轨道漏在外面还是比较有个性的,厨房贴砖的样式采用的的红砖的铺贴样式,还原本真的感觉。
次卧室选的床是简单的款式,简单的线条的感觉,窗帘用的深灰色,是整个房间的色调都是比较干净简洁的色调,浅色的地板搭配起来并不会感觉突兀,整个人在房间里感觉都安静了。
鞋柜的位置旁边放置一个全身镜,可以让主人家出门的时候看到自己的着装打扮是否合理,干净,鞋柜中间镂空,让主人家回家的时候可以随手放置一些钥匙或者手上拿的东西可以比较方便。
卫生间为了节省区域制作了钻石型的淋浴房,地砖的颜色和墙面进行了鲜明的对比,整个空间显得干净整洁。
阳台区域的墙砖和厨房使用的一种墙砖,显得自然也和家里的区域相互呼应,定制了一个洗衣机在阳台旁边放置一个洗衣池方便清洗和晾晒,上面有一排吊柜可以放家里的衣架和洗衣用品。
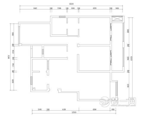
这是一张景山*瑰园玫**87平米北欧风格三居室设计案例的原始结构图,户型较为方正,南北通透,是一种三朝南的户型,采光比较好,两个卧室都是朝着南边,将来的儿童房可以放在南边的小房间。
同一小区,或者相同户型的业主朋友如果你有装修的需要的话,还不想找装修公司跑腿,那就来苏州装一网吧,免费推荐3家装修公司上门量房、做预算、出方案,全程免费哦!
自家装修需要多少钱?复制下面链接,自选3家公司免费上门量房出方案预算!
http://suzhou.zxdyw.com/m/zb?utm_source=uczhangwenxiu
懒省事!!!手机用户点击下面图片【10秒免费在线获取装修报价】