
背景
作为顶级奢华的柏悦,把自己的竞争对手锁定在了四季、丽思卡尔顿、文华东方、瑞吉和半岛。并不屑于洲际(202家)或者华尔道夫(29家),预计晶进驻IHG之后会被划进竞争对手的范畴。
分析一下柏悦的竞争对手们,如全球已经开业112家的Four Seasons,除了《人民的名义》里调侃式的三季酒店,似乎普罗大众并不熟悉,一般常客也对他家也并无深沉的爱,毕竟都已经2018年了也没有常客计划,用真金白银实现尊贵感。
再看看北美41家,全球94家的Ritz-Carlton,在北美完爆了发源于芝加哥、目前全美只有5家的柏悦,而全球只有21家的St.Regis则在进入万达屋后显得很尴尬,似乎抛开纽约瑞吉传奇故事的标签和在国内管家执行水准大打折扣的现实下,只剩下说不清道不明的稳重感了。

而全球29家的Mandarin Oriental和10家半岛,对一般大众来说,更可以被归纳到“Others”之类的小众品牌之中了。
设计师喜欢的酒店通常是由设计驱动的酒店品牌,而在前文的若干个大牌中能自称自己有设计情怀的品牌估计只有柏悦和MO了吧,其他要不是被模糊的品牌印象所凌驾,如Ritz-Carlton或者瑞吉,除了“绅士淑女”之类的优雅,可能你马上联想到的就是房间里繁复、细节充盈的沉稳感,适合各种成熟的商务人士。
而有的品牌则处于一个慢进化和强关联的循环中:如半岛的非常非常缓慢的扩张和进化,又如HBA、Yabu之于四季的绑定关系。而MO的设计虽然有不少可圈可点的佳作,但其美学形象却难以被概括。

只有柏悦,包容了各种优秀设计师的作品,不断发展、扩充、延展了自己的审美和品牌内涵,可惜在当下被“性冷淡”给简单粗暴的定性,不过,那也比没法描述的总体印象要强,不是吗。
当然,像Andrian Zecha这种用自己审美情趣牢牢统领住Aman所有*用御**设计师们的创作欲望又或者像W这种蓝紫光灯营造出夜店风就能独立成为一种审美取向的案例,需要另辟文章来论述。
在大部分民众连baǐ悦和bó悦都傻傻分不清的情况下,柏悦的印象虽说被简单的概括为“性冷淡”。但每间柏悦背后却都有着相当复杂,值得玩味的设计故事和内涵。而一切的一切,都得归从凯悦之父Jay Pritzker讲起。
缘起
1967,亚特兰大,当时还不够“大师”的John Portman正操刀着一座名为Regency的新酒店,酒店内设计了一个超大的、空间宽阔的中庭,他希望这个设计手法能塑造一个全新的被称为“共享空间”的公共空间类型,但这种做法在当时太过超前,以至于投资方在质疑中临时撤出了项目,留给Portman的选择就只剩下要么失去项目,要么把它给“买”下来。

▲ 亚特兰大Hyatt Regency, 1967, by John Portman
Portman非常不甘心,于是带着这个项目,向各个国内的酒店公司老板推介该项目。但并没有人想要接下这个和当时主流背道而驰的酒店项目。
最终,他的不屈不挠,得到了当时还只是一个连锁汽车旅馆的 Hyatt 公司的支持。而这家公司的老板正是Jay Pritzker,而Pritzker在购买这家酒店后将自家酒店名字Hyatt和这家酒店的Regency结合,取名为Hyatt Regency,至此,Hyatt旗下大车店品牌,也就是大家熟知的“凯悦酒店”登上了历史舞台。
酒店营业之后,取得了巨大的成功,Portman的酒店设计也得到了酒店界和建筑界的认可。他创新的垂直中庭设计改变了之后所有的高层酒店设计,形成了“酒店中庭类型学”。而他从此也被称之为“中庭之父”。此后,大获成功的Hyatt Regency在全美迅速发展和开店、占据市场。
1974开业的芝加哥Hyatt Regency,毫不意外的大获成功,是全城政商名流钟爱的不二之选,但其门庭若市的景象和近两千间客房常常满房的盛况引起了Pritzker合作伙伴们的“抱怨”。

▲Hyatt Regency Chicago, 1974
那就做点不一样的尝试的突破吧。
1979年,Pritzker设立了Pritzker建筑奖,以表彰“在世建筑师,其建筑作品展现了其天赋、远见与奉献等特质的交融,并透过建筑艺术,立下对人道与建筑环境延续且意义重大的贡献”。
一年之后的1980年,Pritzker一口气为Hyatt设立了两个更高端品牌——Grand Hyatt和Park Hyatt。
前者,他找到了一个急于在纽约建立资产的开发商,于是Pritzker在纽约Grand Central Terminal旁,和这个现在已经是美国总统的叫做Donald Trump的雄心勃勃年轻人合作,投资、收购、改造了这家拥有1298间房的中等大车店——Grand Hyatt NewYork。

▲ Grand Hyatt New York, 1980
而后者,Pritzker物色到了芝加哥Magnificent Mile附近的一处优质资产,改造为了仅有211间房的Hyatt旗下第一家“小而美”的高端品牌——Park Hyatt Chicago。

▲ Park Hyatt Chicago, 1980
沉寂
至此,初登舞台的Park Hyatt开始了自己缓慢的发展期和探索期,从1986年第二家Park Hyatt Washington DC到1990年第五家Park Hyatt Sydney,柏悦走的路是全球一线城市寻找城市中心区核心区旧建筑,进行资产收购、改造、提升的路线,而Park Hyatt在设计上也主要依靠酒店规模、房间数量、公区功能的差异来和Hyatt Regency、Grand Hyatt进行区隔。


▲ Park Hyatt Washington D.C. , 1986


▲ Park Hyatt Sydney, 1990
在1980年到2002年近20年间,柏悦全球开店14家,扩张缓慢,在业界影响力平平,而在酒店常旅客界,普通民众那儿甚至可以说是毫无存在感了。在内部和外部压力的推动下,Park Hyatt品牌亟需新的发展动力。
突破
到2003年,发生了两件重要的时间,一下为Park Hyatt品牌打开了局面。
第一件事情叫一部叫做《迷失东京》的小成本电影突然成为76届奥斯卡最佳影片的得奖大热门,而女主Scarlett Johansson一下收获威尼斯电影节、英国电影学院奖的影后,影片里忧郁而寂寞的斯嘉丽一下打动了无数美国观众,简直成为了新一代“美国甜心”。而酒店的拍摄场景无疑和整个影片的气质十分契合,大家也纷纷好奇这个名叫“东京柏悦”的酒店,无数文艺青年在心中默默种草一定要去这家酒店的高空酒吧打卡,点一杯斯嘉丽同款鸡尾酒。

▲ Lost in Translation 剧照,斯嘉丽在客房内眺望窗景。
这个墙外开花墙内香的奇葩路线可能是酒店品牌发展史的一个特例,毕竟截止03年,北美本土开起来的4家柏悦在北美人民的心中还面目模糊,柏悦品牌竟然靠远在日本拍摄的一部小众文艺电影而广泛流传。
更让人唏嘘的是,东京柏悦早在1994年就已经开业,9年过去,影片中传递出的酒店美学并不让人觉得陈旧老气。
目前相当活跃知名酒店设计公司AB Concept主创伍仲匡曾在接受采访时被问到最早的对于好的酒店设计的印象是什么?伍仲匡毫不迟疑的回答了东京柏悦,他说到:即使是20多年之后,东京柏悦仍然是世界上最迷人的酒店之一:"她几乎不需要翻新,只留下岁月一点点打磨的痕迹,太振奋人心。"
是的,在2018年,整整24年过去,以现在的审美来评判东京柏悦依旧毫不落伍。对比不少所谓的“顶级设计”的Upscale酒店,每隔5-10年就进行大规模的翻新和重新设计,来保持酒店的生命力和应对激烈的同行竞争。而东京柏悦持久、稳定、超脱的美学设计恰恰证明了设计师的高明和前瞻性。
回到1994年,东京,新宿,已经处在事业中后期的丹下健三设计了这个名为Park Tower的地标性塔楼,而这家177间房的柏悦也成为了第一家城市型新建高层柏悦。
这个建筑看似由三栋正方形塔楼由布尔运算“联合”在一起,实则核心筒位于三个正方形交接处,为塔楼内留下规整无柱的大空间。

▲ Park Hyatt Tokyo, 1994
东京柏悦的空间策划非常有趣,39层-52层为酒店,其中41层、45层和52层的三个呈阶梯布置的3个玻璃金字塔顶下分别是空中大堂、泳池和纽约吧的所在,也是整个酒店最为精彩的三个空间。

▲ Park Tower功能轴测图
客人从北端二层地面大堂乘着高速电梯到达41层的空中大堂,映入眼帘是一个壮阔而非日常的通高空中庭空间,中庭内布置的竹林为整个空间带来了让人亲切亚洲美学——而她的设计者美籍设计师John Morford已在香港创办事务所多年,早已深谙亚洲美学。

▲ The Peak Lounge@Park Hyatt Tokyo(改造前)
高耸的The Peak Lounge一侧是一个开放的旋转楼梯,通向整个酒店的核心——Girandole餐厅,这个通高三层的空间以法式风格来打造,墙面使用了大量在欧洲各地的咖啡馆所拍摄的场景拼贴而成,这为整个餐厅带来了多民族跨地域的复杂气氛。

▲ Girandole@Park Hyatt Tokyo
经过Girandole餐厅走到尽头,右边一处框景恰好将你的视线引向远方,天气好时,富士山正好处在视线的尽头。
回头一看,一个拥有2000本藏书的图书长廊带给你安静、私密的感觉,这里有十几个国家数十种语言的藏书,再往里走,经过通往New York Grill和New York Bar的转换电梯厅,最终来到了优雅低调的Reception办理入住。

▲ The Library@Park Hyatt Tokyo

▲ Reception@Park Hyatt Tokyo
让人玩味的是,只有经过漫长而有趣的漫步,经历一层一层的空间转换、移步异景的视线安排,穿过东京柏悦的各个主要公共空间,客人才能最终到达Reception,而烦躁的心情早已被收拾干净,沉静下来。与其他酒店一般设置在主入口附近的大型大堂内的Reception相比,东京柏悦的Reception处于尽端,不必作为整个酒店的台面接待时常闯入的非住店客人的问询,设计得更小、更私密,礼宾与坐在桌前与客人一起不紧不慢的办理入住和退房,好像在小心而谨慎讨论*款贷**办理事宜,画面十分有趣。
东京柏悦的另一个被广泛赞誉之处就是其充分发挥了“高空美学”的餐饮空间,不管是40层的日式餐厅Kozue还是52层的New York Grill/Bar。由于和丹下建三的的优秀合作,这些大空间基本都浅进深而无柱。通过前期良好的空间策划,不管从层高、视线、墙面,都给室内留下了良好的发挥空间,却又丝毫不影响建筑立面的纯粹性。

▲ Kozue@Park Hyatt Tokyo
顶层的New York Grill和New York Bar装饰着Valerio Adami的巨幅画作,难怪在迷失东京里,时差错乱的斯嘉丽和默里要在New York Bar里听着悲伤的火炬手歌手的歌,与失眠作着斗争。

▲ New York Bar@Park Hyatt Tokyo

▲ Lost in Translation 剧照
简而言之,依靠《迷失东京》的传播效应,柏悦品牌第一次做到在其大本营美国本土和全世界文艺青年范围内的广泛传播,也让这个酒店的美学开始为人所熟知。
而在2003年左右发生的第二件事,就是02年开业的巴黎柏悦的大获成功,柏悦品牌在欧洲完美亮相。用一种完全不同于早已被巴黎民众熟悉和津津乐道的宫殿酒店们的美学范式,开辟了一片新的天地。
回望当时,法国官方的酒店分级制度还与世界其他地方的五星制不同。法国最高只有四星,四星之上,有四星+L (Luxe) ,但是没有五星。而巴黎酒店业传统中有个不成文的说法,六家高级且有深厚历史的酒店自成一级,被称为“宫殿酒店 (Les Palaces Parisiennes) ”。它们分别是Four Seasons Hotel George V 、Ritz Paris、Le Bristol、Hotel Plaza-Athénée、Le Meurice,以及Hôtel de Crillon。
这六家酒店无疑不是选址绝佳,占据着历史底蕴深厚的古典保护建筑,室内装饰细节丰富。大家都期待这个叫做柏悦的美国品牌怎么突破这些靠着历史沉淀起来的牢靠的审美“枷锁”。

▲ Ritz Paris,2016,翻修后

▲ Hôtel de Crillon,A Rosewood Hotel,2017,翻修后
被指派来完成这次重要亮相的是Ed Tuttle。
在这之前,Ed Tuttle早已在酒店界名声在外,他在1988-2000年十二年间先后协助Adrian Zacha成功创立了Aman品牌,并前后操刀了Amanpuri、Amankila、AmanLeMélézin、Amanjiwo、Amangani、Amanjena六家安缦,之后他在巴黎成立事务所DesignRealization,长期稳定执业。这次,他要来为凯悦集团的Park Hyatt品牌注入他的美学理念。
为了酝酿欧洲第一家柏悦,凯悦集团也煞费苦心,花费了整整三年时间来寻找合适的选址,在他们看来,选址是第一位的。终于,在位于时尚的协和广场附近,在旺多姆广场的不远处的5栋奥斯曼时代就已经存在的历史建筑进入了凯悦集团的视野,其中一栋还是Paquin时装定制品牌的前总部,在凯悦集团开来,这里完全满足成为令人印象深刻的顶尖酒店选址的潜质。


▲ Park Hyatt Paris, 2002
在巴黎改造酒店并没有那么简单,在施工之前还耗费了整整五年时间。包括凯悦集团在内的三家联营公司面对数以百万计的繁文缛节、城市管理条例、建筑许可证,和各种保护法讨价还价,以及和无数保护团体的干预斗智斗勇,终于开始酒店的改造和施工。
Ed Tuttle曾说过:“如果推倒重来重新开始建造这家酒店,成本可能会降低一半。”确实,这五个旧建筑的内部如迷宫一般,如果不加恰当的处理和整合,客人入住时可能需要一张地图来导引每一步行动。为了将五座建筑融合为一个整体,建筑师甚至不得不用高压数控机床一点一点切掉其中一栋建筑的一整块立面并重新调整以求立面的协调;还需要整理不同建筑之间的高差、平整地板;祈祷改造过程中旧建筑不会崩溃和坍塌。“这个项目就像一个重病的病人,一次又一次地被推进急诊室被抢救,”

▲ Park Hyatt Paris由五栋旧建筑改造而成
“但最终,我们希望酒店呈现精简的古典主义,强大而永恒。”Ed Tuttle说。
巴黎柏悦最终完成的效果确实超出了很多人的意料,这个公区采用中性色调,融合了石灰石和桃花心木,空间像画廊一样展开的公区,跳出了沉重的“历史包袱”的窠臼,而骨子里又是古典而优雅了,像极了一个艺术画廊。


▲ La Cheminée @Park Hyatt Paris-Vendôme
Ed Tuttle通过汇集众多工匠和当代艺术家来推进这一项目,以创造一个独特的场所——巴黎式的古典主义和现代主义的混合体,而这一风格在巴黎并没有先例。艺术品经销商们花费了四年的时间,从全球收集了一系列值得欣赏的艺术品,包括美国的Sideo Fromboluti和Ed Paschke,巴黎的Christiane Durand和印度的Viswanadhan的作品。酒店内还陈列着Roseline Granet的青铜雕塑和灯具。

▲ 艺术家的画作和雕塑恰如其分的点缀着酒店的公区
而客房,则将将欧式“性冷淡优雅”风做到了极致,Roseline Granet的青铜雕塑和灯具点缀着客房的每一个关键部位,连门把手也是定制的雕塑。而浴室更体现了Ed Tuttle深厚的用石材的功底:用米黄的洞石满铺了整个浴室,在空间内精妙的“抠”出了一个洗手台和坐凳。不破坏浴室整体的感觉,而所有五金器具和包边都是金色。无疑增添了更精致的细节。而窗帘也放弃了提花质感的面料,采用了简洁的百叶窗帘。整体风格和谐统一。

▲ Park Suite@Park Hyatt Paris-Vendôme

巴黎柏悦的开业 ,是自Hotel George V于1998翻新以来在法国首都最受期待的品牌亮相。
Park Hyatt的亮相就剑指宫殿级酒店,虽然他和其他几家充满繁复细节和历史底蕴的酒店比显得不那么“宫殿”,客人们被穿着时尚的黑色制服的友好的工作人员(包括女性门童)迎接,而不是戴着白手套的严肃优雅的绅士门童。他们每天都会带着设计朝圣者、城市探寻着和提着大包小包的购物者,寻求精美的美食或者入住。
Park Hyatt Paris的员工可能没有其他宫殿酒店的经验,但他们也没有傲慢。
8年之后的2011年,巴黎官方终于承认了“宫殿酒店”这一标签,而Park Hyatt Paris-Vendôme也如愿入选,令人跌破眼镜的是,Ritz和Hotel de Crillon都双双落选。
而这次落选也促使了Ritz在2012年的停业重新装修,而Hotel de Crillon也在一年之后停业装修。4年后的2016,两家酒店分别杀回巴黎酒店界,耗资1.4亿的巴黎Ritz再创巴黎酒店价格新高,而Hotel de Crillon则在2017年复出后进入Rosewood麾下。
然而,在2018年的当下,面对精美绝伦的两家老牌宫殿级,巴黎柏悦依旧从容不迫,毫不逊色。穿越15年周期,光芒不减,历久弥新。这也是Ed Tuttle深厚的设计功底和跨越时代的美学品位的体现。
而紧接巴黎一年之后,在04年开业的米兰柏悦,竞争格局则要轻松得多,毕竟万豪在一年之后才开出了第一家宝格丽酒店,而MO和豪华精选要在十年之后才开业了。这让米兰柏悦雄霸米兰酒店界相当长的时间。

▲ Park Hyatt Milan,2003

▲ Park Hyatt Milan,2003
米兰柏悦和巴黎柏悦比,审美更加纯粹,Ed Tuttle把意大利洞石用到了极致。从主要公区到餐饮甚至到客房的书桌台面,材料高度的连贯性和一致性,清晰锐利的线条支撑着空间的雄伟简洁感,这一系列手法都塑造了米兰柏悦永恒但又亲切的朴素感。


▲ Park Hyatt Milan


▲ Park Hyatt Milan
总之,Ed Tuttle操刀的这两家柏悦的贡献在于,在历史沉淀深厚的欧洲提供了一种新的美学范式的可能性。不是简单的去复原欧式美学,不被沉重的历史风格所绑架。他所创造的“古典主义和现代主义的混合体”获得了空前的成功。让柏悦品牌在欧洲有力的站立住。持续传播品牌的美学影响力。
大放异彩
当凯悦集团在欧洲艰难的攻城略地时,亚洲也在同步发力,05年首尔和西贡柏悦先后开业,提拔SuperPotato进入到了酒店一线设计事务所之列。而同年,Tony Chi操刀了华盛顿柏悦的第一次翻修,也跻身一线。
而之后的故事,则进入到我们越来越熟悉的频道了。
2008年,北京柏悦中国首秀。占据了长安街核心地段的银泰中心。

▲ Park Hyatt Beijing,2008

▲ Section of Beijing Yintai Centre, by John Portman & Accociates
遗憾的是,以私心来讲,这个由John Portman设计建筑、Remedios Siembieda设计室内的作品并不算柏悦体系内的上乘之作,核心在于Portman的“灯笼”建筑为了追求自身建筑概念的纯粹性,留给室内相对较小的发挥的空间。
以大堂层来说,63层的实际面积只有约800平米,5.6M-7M左右的进深,基本只能布置一个过道+一个带状空间。而为了将62-66层的空间做一体化的处理,也占掉了1/4个面宽来做通高空间,步梯等。并且65-66层屋顶造型的收分变化和幕墙的通透要求,靠窗侧的幕墙基本没法处理。室内只能靠软装和一些分割来处理。虽然China Grill和China Bar试图在像东京柏悦的New York Bar和New York Grill致敬,实际达成的效果还是要逊色不少的。

▲ The 63th Floor @ Park Hyatt Beijing

▲ 银泰中心顶层复杂的双层幕墙体系和造型

▲ China Gril/北京亮 @ Park Hyatt Beijing
另一个室内外交互不够深入的例证在于康体区域,泳池区域虽然占据了两层,但在层间出现了大梁,而泡池等区域层高也比较低。这里从剖面图也可以看出来。

▲北京柏悦的泳池层高较低,还出现了层间大梁
而客房的整体风格也比较简单,稍微有亮点的部分就在于卫生间石材墙面的处理吧,Ed-Tuttle到Remedios到Super Potato对石材的喜好简直是平滑到粗粝的三个完全不同程度的取向。

▲ 从左到右: PH Milan, PH Beijing. PH Seoul
北京柏悦从2017年起开始陆续的翻修,不到10年已经无法应对同城的Rosewood、翻修后的半岛等别家旗舰的竞争。还将迎来一大波如璞萱、MO的挑战。也侧面了反应了自身硬件和设计的局限性。所以,翻新周期完全可以作为评估一家酒店设计含金量的指标之一。
如果说北京柏悦的亮相在中国并没有产生轰动而持续性的影响,那同年开业的上海柏悦则可以说完全实现了凯悦集团在当时布局国内的所有设想。

▲ Park Hyatt Shanghai, 2008
基于和凯悦集团稳定的合作和前期的介入,Tony Chi从项目一开始就深度的参与了整个环球金融中心项目,连选择泳池的层数和标高都是在桩基已经打下去的状态下,Tony Chi坐着施工电梯到了435米高度,觉得这个高度可以实现和黄埔江水面平接的效果,才敲定了泳池位于85层的中间位置,而不是常规的和楼板平接的位置。

▲ Swimming Pool@Park Hyatt Shanghai, 位于"层间"的泳池
Tony Chi在上海柏悦为柏悦品牌和美学角度作出了几个重要的贡献。
首先是城市型高层Park Hyatt Approach的样本搭建,还记得东京柏悦公区曲折而精妙的设计吗。在Park Tower的41层能实现这样的空间效果主要依赖建筑本身的标准层够大,纵深较深。而Tony Chi需要实现类似的空间效果则面对一个更加具体的空间:KPF设计的环球金融中心给他分配了一个并不大的入口前场,而他和KPF团队之间的磨合也是漫长的:入口的门洞从最初的3M高,一直磨到最后的8M高用了整整1年时间,而这个只是整个Approach部分的一环而已。
为了实现逐渐剥离方向感和感官的目的,从入口到电梯厅Tony Chi竟然用了8次空间转换:从入口超大的苏州建筑白墙的转译,到“天+地”的概念演绎,到最深处幽暗的电梯厅;不同的空间尺度,不同的层高,不同的照度和空间质感,层层递进,十分复杂而精妙。

▲ The Approach@Park Hyatt Shanghai

▲ 从入口至中转电梯经过的空间转换
反观一般商务酒店的接待空间的处理:通高傻大的空间、巨型吊灯、硕大的艺术品,直白的前台和礼宾部。这就是高端私密酒店区别传统大车店的的审美取向的巨大差异的一部分。
所以我们可以高度评价Tony Chi在Park Hyatt上海里对Approach系统的梳理和贡献。
Tony Chi的第二个贡献是提出了他的“中式”高空空间美学解决思路。注意我用的是“空间美学”的描述,因为柏悦本身是一个国际化的品牌,很难看到单一的美学体系。而上海柏悦的美学提示也是相对复杂的,有中式、美式、法式等等。
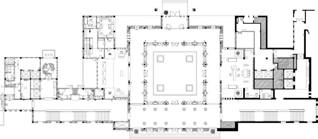
研究上海柏悦87层的平面,可以发现空间被切割的非常小,在高层转换电梯到酒店客梯转换路径非常短的前提下,比较创新的将Reception“嵌套”在大堂吧内。而Reception作为整个87层的门面,参考了院落、照壁、框景、中式家具等等元素,中式的味道还是比较足的。

▲ The 87th Floor@Park Hyatt Shanghai

▲ TheReception@Park Hyatt Shanghai
第三个值得记录的尝试是Tony Chi对全日餐厅的探索,当年业主方森大厦要求Tony Chi在已经有世纪100的情况下,还要在87层单独实施一个All-Day Dining的餐厅,Tony Chi表现了出了极大的抗拒,他认为如果按传统的模式来设计并不符合客人实际使用的需求,传统的All-Day Dining无非是一个供应早中晚自助餐的地方,并没有做到真正的全天候的随时随地和多样化的食物供应和运营。而他更倾向以一个更加非正式、前场和后厨松散组织在一起的形式来做一个尝试。在他看来,客人不管是很早出发还是很晚回到酒店,也能像在家里一样自在的吃到东西,而不是要以正餐厅里端坐那样正式的形式来充饥。


▲ The Pantry@Park Hyatt Shanghai
然而这个名为Pantry的全日制餐饮空间最后还是失败了,他自己也承认失败是来自两方面的,设计和运营都有责任。从设计来讲,这个位置在大堂层偏于一角,不在主要人流动线上,还作为了另外一个独立的欧洲餐厅的前厅。位置的选择都大有问题。而到具体设计上,食物台形式偏向面包房,而餐厅部分又偏正式。不管从哪个方面看,都没有传达出Tony Chi宣称想实现的那个非正式、高效使用的“新式”全日餐厅的理念。
当然,另一个很关键的因素在于,一个酒店不需要两个全日制餐厅,特别是在世纪100规模已经相当大的前提下。
Tony Chi并没有放弃对这个空间的探索,在2010年开业的Andaz 1.0的样本Andaz 5th Avenue里,在一个空间非常局促的条件下,他初步实现了这个All-Day Dining的设想,即后厨和餐饮空间的松散结合,在厨师打烊后,移门一关,餐厅的运营时间得以延长。

▲ Andaz 5th Avenue, 1st Floor Plan

▲ The Shop@Andaz 5th Avenue
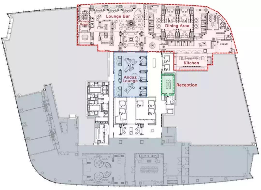
然而Andaz 1.0里The Shop的实现并不够彻底,大家对他的理解还是偏向纯粹的餐饮空间。而在Andaz 2.0样本Andaz Tokyo Toranomon Hills里,这个全日制餐厅的理念算是比较彻底的实现了,首先是Dining Area与Lounge Bar的结合,大量厨具、餐具结合收纳的前置、小而精的开放式厨房。半自助+单点的模式等等。

▲ Andaz Tavern, 红色区域所示



▲ Andaz Tavern
虽然Tony Chi在上海柏悦的全日制餐饮空间创新并不太成功,他却意外的给柏悦贡献了The Living Room的概念,即一个私邸式的放松休闲的空间,取代了传统大堂吧的命名,而自此之后的柏悦则标配了The Living Room。

▲ The Living Room@Park Hyatt Shanghai
而且Tony Chi也将这个理念下沉至Andaz,在Andaz Tokyo Toranomon Hills里,虽然被叫做Andaz Lounge,但实际上是更为彻底的Living Room理念的贯彻,在这个没有被明显定义的空间内,随性的上网、等候、喝茶,Happy Hour、闲聊都很自在,没有要被要求强制消费的压迫感。

▲ The Living Room of Andaz Tavern
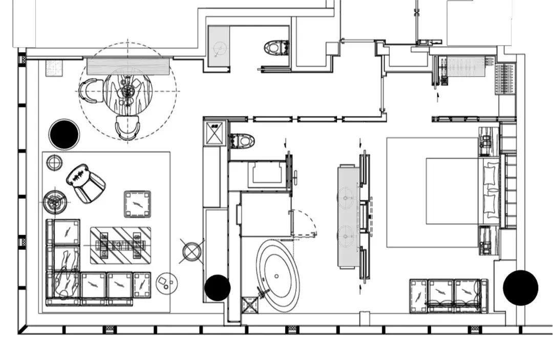
回到Park Hyatt Shanghai的客房,Tony Chi试图用“花园”的理念来组织空间,包括在总套内引入“东西厢房”的概念。确实在当年提出了他的“中式”解决思路,然而,十年之后再看客房传递的美学观念,确实略显老旧,包括十几年前大胆启动的“中国制造”的家具,现在去住发现确实保养不佳,磨损严重。
当然,这算Park Hyatt Shanghai相对比较遗憾的一部分吧,不过这对Tony Chi来说可能不算问题,他在Andaz 5th Avenue也是这么干的,将大部分预算分配至公区。房间则相对简单,审美和质感时效性尽量延长。给后期的翻修和更新留下更新。看看Tony Chi 05主导改造翻修的Park Hyatt Washington D.C.在17年迎来了第三次翻新。翻修有效期12年。

▲ Chairman Suite Plan@Park Hyatt Shanghai


▲ Chairman Suite @Park Hyatt Shanghai
总之,Tony Chi在Park Hyatt Shanghai对柏悦的品牌和美学贡献还是很大的,他定义了之后柏悦酒店的几个关键性因素。曲折的Approach;中式的表达;Living Room等等,但他至此之后似乎将更多的精力放到Andaz身上了,不管从New York的Andaz 1.0还是到Tokyo的Andaz 2.0。包括他近期他正忙活着杭州西溪湿地的Andaz,很有可能成为Andaz 3.0的样板。希望能挽回Super Potato造成的Andaz在中国的颓势。
讲完2008年。接着来到2011年,凯悦集团开始在Resort产品线上发力,先后开出了宁波柏悦和马尔代夫柏悦。

▲ Park Hyatt Ningbo
既然是度假型柏悦,则需要区别于常规的选址及设计逻辑。而实现这一任务的是WATG事务所。
当时的WATG有一个尴尬的处境:他们已经从2000年开始在中国完成了很多成功的项目,如北京万豪、北京JW万豪、广州丽思卡尔顿等项目。而在度假酒店领域,他们也完成了一些不错的案例,如亚龙湾希尔顿、亚龙湾丽思卡尔顿。还在11年将曾经中国第一家五星级度假酒店——三亚凯莱酒店翻新为钓鱼台MGM酒店。

▲ Hilton Sanya Resort&SPA

▲ The Riz-Carlton Sanya
而面对宁波这样一个江南水乡,东钱湖良好的资源资源,以前的简单粗糙的大车店+坡屋顶的形式法则则完全失效了,需要找到一种新的处理手法,来实现柏悦的“小而美”。
我猜,WATG苦思不得其解之后,在一个名叫富春山居的项目里找到了解决之道。

▲ Fuchun Resort, 概念方案效果图

▲ Park Hyatt Ningbo 概念手绘
2004年就已经开业的的富春山居,像一个中国酒店界隐藏多年的高手,不太为人所熟知,但是绝对在中国酒店史上有着一席之地。
而宁波柏悦从建成之后从官方对设计师描述的讳莫如深也能看出一些端倪,不管是建筑设计WATG,还是大区室内设计师Sylvia Chang,一方面Sylvia Chang之前并不太出名,另一个原因是Sylvia Chang在酒店落成之前就已经辞世。连带着设计了Villa和SPA的Super Potato也几乎没被提及。
宁波柏悦和Jean Michel Gathy设计的富春山居的“神似”程度简直太高。而这种神似,是大到规划小到建筑形态甚至到公区的各种“相似”,倒是客房和一部分餐饮,宁波柏悦还是做出了一些自己的特色。

▲ Fuchun Resort
富春山居的前身是GHM的The Chedi,那时GHM还在大力拓展,而业主方本来想找一个造纸厂选址的,结果看中了富阳这块地。于是和GHM一拍即合在这里下做成高尔夫+酒店的模式。
富春山居是国内最早具有Aman水准的度假酒店之一,开了不少先河。在这之前,在度假酒店设计领域,中国几乎没有产生具有原创性、影响力和生命力的形式语汇,而反面案例如贝聿铭这种非酒店设计体系内的建筑师操刀出来的香山饭店,背上沉重的历史使命感,符号操纵用力过猛,一经诞生就迅速过气、淘汰,被遗忘,又或者是缺乏文化积淀和审美的各种欧美大车店会务建筑布局加上中式大屋顶之类的粗暴形式操作。还有不少项目室内缺乏想象力到只能贫瘠的玩起亭台楼阁假山跌水之类的直白复古路线(我没有在讽刺白天鹅饭店)。
JMG在富春山居的原创性在于,提出了中式建筑的体量和形式来组合出一个复杂的、具有品位和审美的顶级奢华酒店,在这过程中还要表达出中式空间,不仅仅是符号上的中式。
而这个命题,他们这帮Aman*用御**设计师们早在90年代就开始尝试解决了。如果说Kerry Hill 1992年在Amanusa里的体量收分让现代主义内核的度假酒店具有了“东南亚”感。而JMG在富春山居的形式操作让这个基座+白色主体收分+歇山的形式拥有了“江南感”。

▲ Amanusa, 1992, by Kerry Hill

▲ Fuchun Resort, 2004, by Jean Michel Gathy
JMG作为几个"真正的"Aman*用御**设计师之一其实最擅长的是地形的处理、总图与形态的高度匹配以及空间的策划。他早在十几年前就已经牢牢把握住“网红”空间的精髓。
而在富春山居里,JMG的核心要义是处理好酒店与湖岸、酒店与高尔夫会所的看与被看的关系,所以酒店的大堂、湖廊居、餐饮空间等等没有退开湖岸,而是深入湖岸形成“被看”的视觉焦点。

▲ Fuchun Resort, 概念总图

▲ Park Hyatt Ningbo, Site Plan
而WATG更多是在主要公区部分借鉴了富春山居,因为这是整个酒店设计的难点:入口的序列,空间的串联、包括泳池的尺度,都已经超出了传统民居的尺度范畴,如何消减和处理这些大型公共空间的体量,还能显得很“中式”,是整个设计的最大的难点和亮点。JMG在这一点上毫不避讳自己“现代”的骨子,他用他优秀的形式感,让这些非常规的体量加上屋顶组合显得依旧很江南。而WATG则会更保守一点:传统的"C"字形布局,泳池也被处理为一个长方形的体量。避免出现富春山居那样巨大的房型四坡顶。

▲ Fuchun Resort, Floor Plan

▲ Park Hyatt Ningbo, Floor Plan
当然宁波柏悦还是有自己的亮点的,一个是茶苑、一个是酒吧“红”,都是采用了老民居修复的路线,特别是“红”,室内外一体化的设计既有历史感,又十分新潮。

▲ Park Hyatt Ningbo, 茶苑

▲ Park Hyatt Ningbo, 红
在宁波柏悦2年后,2013年,另一个Aman*用御**设计师JAYA大师也为柏悦贡献了自己的作品——长白山柏悦。

▲ Park Hyatt Changbaishan
这个项目不管在Jaya自己的作品体系还是柏悦体系都是一个相对微妙而尴尬的存在。
万达造房子的速度太快了!
从10年5月长白山旅游区开始建设,到2012年7月已经有酒店开业了,仅仅历时26个月,而柏悦在13年9月开业,也仅历时40个月。而且这还是长白山每年有效工期只有6个月的条件下完成的。再想想之前我们讲的柏悦们动不动五年十年的开发周期。可想而知长白山万达系酒店的设计周期之紧张。


▲ 长白山南区总规及鸟瞰效果图
长白山度假南区整体规划由美国事务所Zehren完成,他们曾经在1990年完成美国第三家柏悦Beaver Creek的规划和设计。
Zehren在处理整个酒店群整体采用了一个草原风/庄园风混杂的建筑风格。而柏悦则是一个常规的C字型来做集中部分的客房,甩出去几个Villa。

▲ Park Hyatt Changbaishan, Site Plan


▲ 长白山柏悦的室内外风格完全脱节
以客观的标准来评论,这个建筑设计的水平只够格一个Hyatt Regency,无奈Zehren在旁边真的还做了更没有想象空间的标准大车店的Hyatt Regency。
话又说回来,雪场酒店总是小众的,如Aman Le Melezin,也是在Aman体系内相对小众的存在,其实设计是相当精彩的,无奈滑雪还是门槛较高的运动,而长白山相对于其他世界级的雪场,又有点不上不下,更加导致长白山柏悦在柏悦体系里不上不下的尴尬。
这可能是Jaya大师在国内发挥得最憋屈的一个作品吧。
任何设计师在某一个地域某一时期,一定会有一个最高峰的作品,相比于长白山柏悦,璞丽无疑就是JAYA在那个时期的最高峰。万达可能就是看中了那一点,在长白山找到了JAYA来复刻璞丽的美。当然,既然是复刻,隐含的意思就是无需超越原作。
如果说Tony Chi对酒店设计届的审美观念影响深远,而JAYA创立的中式美学风。则深刻的影响了整个中国室内设计界。直到当下,如果让我推荐上海最好的城市酒店,我会毫不犹豫的选择Puli,同样是08年开业的酒店。Puli现在去住丝毫不觉得陈旧和过气,这就是前文在提到的设计的生命力问题吧。
手法如同时尚,有生命周期和时间流转,而超前而恰到好处的审美则有跨越时代的能力。

▲ Puli, Shanghai, 2008
新篇章
2014年,柏悦进入了YABU&PULSHELBURGE的时代。

▲ Park Hyatt New York
位于One57 1-25层的纽约柏悦如果说不是最奢华的选址,那至少也是最昂贵的选址:这个由普利兹克得主Christian de Portzamparc设计的价值超过3.75亿美元的公寓项目里。凯悦雄心勃勃的希望将其打造成品牌旗舰店。
在这之前,Y&P的代表作是北美的好几家四季,是广州W,感觉Y&P和SPG的绑定关系更为要强一些,结果,Hyatt直接把旗舰店——纽约柏悦委托给他们了。而且一委托就是好几个,包括了杭州、深圳、曼谷、Los Cabos。
▲ Park Hyatt New York Location

▲ One57 Architecture,by Christian de Portzamparc
One57从地理位置上非常卓越,紧邻Central Park,然而设计难度是相当大的,一个狭小的L型用地,给到室内的发挥空间比较小,更重要的命题是:如果给亿万富翁们设计专属他们的私密公司?
纽约柏悦的基础房价从人民币5K+起,套房则更加昂贵,价格体系也属于曼哈顿前列,当他的客群已经见惯了那些“用力过猛”而宏大的“奢华”空间。Y&P想要给客人一个更加私密的“家”的感觉,而这个家并不代表着日常和简朴,更是一个“Refined Home Away From Home”的去处。
于是乎,在1层接待大堂,一个尺度亲切的空间,摆放着李博斯金的Spirit House Chair、墙面上是Leo Villareal设计的放射状星型灯具,同样遵循着去“前台”化的处理,原木制作的接待台,后面站着穿着Narcisco Rodriquez设计的制服的工作人员,拿着ipad查询订单和引导你前往三楼。

▲ The Lobby @ Park Hyatt New York

▲ The Uniform Design by Narcisco Rodriquez
三楼原本规划了一个商务中心,而Y&P将空间打通,继续贯彻柏悦“Living Room”的理念,在这个空间里,拥有柔软的大型家具,暗示着一个私人的住宅空间,客人可以舒服的使用他们的个人设备。它同时是是沙龙向外扩展的一部分,而这个沙龙包括休息室,酒吧和通往尽端的"The Black Room"餐厅半正式的长廊。因此,当客人的情绪上来时,可以在酒吧区工作、社交。


▲ The Living Room @ Park Hyatt New York
而在这个小小的柏悦里另一个精彩的空间就是"The Aerie",在22-25层,布置了SPA、两层通高的泳池和能俯瞰中央公园的健身房。


▲ The Aerie @ Park Hyatt New York
客房层面,则回到了相对居家的路线,可以看到硬装和软装都不是走重投入的路线,相对比较简朴和温馨。


▲ Park Suite @ Park Hyatt New York
所以,在纽约柏悦,Y&P要解决的命题是:在新的时代,怎么用更加成熟、优雅的技法以及审美,去巩固甚至引领柏悦在未来十年之类的美学前瞻性。纽约柏悦其实从选址来说先天具有成为旗舰的底子,然而由于室内的限制,最终实现的效果没有那么惊为天人,却也能够匹配上柏悦的品质。这也满足凯悦集团在快速扩张时期的开发要求。
还好,在一年之后,Jean Michel Gathy终于加入了柏悦大家庭了,而他的加入,将Park Hyatt Resort系列推到了另一个高峰。

▲ Park Hyatt Sanya
在前文曾提到了Jean Michel Gathy的富春山居,他作为除Kerry HIll之外另外一位真正的安缦*用御**设计师,操刀了Amanwana、Amanyara、安缦颐和、Aman Sveti Stefan、Aman-i-KhÁS、Amanvenice、Amanoi七家安缦,是酒店设计界当之无愧的大师。那当他和柏悦碰撞在一起的时候,又会产生怎么样的火花呢?
这里需要顺便讲讲三亚酒店业的格局,以三亚湾、亚龙湾、海棠湾三个湾作为主力,形成了异常残酷的竞争格局,这里进驻了国际所有知名酒店集团,也集合了所有的顶级品牌。但是观察他们的形态布局,几乎是同样的思路——拉高拍低,挤用中高层的塔楼或者板式楼解决大部分的基础房型,公共空间,腾挪出大片的面积给到别墅房型,赚取高溢价,然后在其中穿插一些室外泳池,烧烤吧之类的特色户外功能。几乎所有三亚酒店的体验是从临路开始进入酒店主要的公共空间,然后通过酒店层层的景观和室外空间到达海边的漫步体验。

▲ 海棠湾酒店群
太阳湾柏悦完全打破了上述的逻辑
太阳湾依山傍海,因环抱海湾的山脊上有一形似太阳的红色巨岩,远望宛如日落而得名,其特有的热带丛林及800m 的银白色沙滩为建设一个充满热带风情的高级度假区提供了得天独厚的自然条件。
然而,这里和其他海湾相比,沙滩较小,且地形复杂,风大浪急,从综合素质上来说,并不是一个开发高端度假酒店的好去处,然而开发公司却雄心勃勃的,在这里同时引进了柏悦和Andaz品牌,希望杀出三亚酒店品牌的重围。

▲ Park Hyatt Sanya&Andaz Sanya

▲Site Plan of Sunny Bay
而从规划来看,太阳湾柏悦的规划几乎全部为板式的的建筑,而实际容积率仅有0.88左右,完全是一个反直觉的规划结果。对比和Andaz的总图和空间形态,Andaz反而形态更加传统和规矩,但是却也相当不一样,因为主要的楼栋近海,而低矮的公共空间反而远离还按。在两个品牌之间比较节制的布置了少量的别墅房型。
太阳湾柏悦在规划时,面临的最大的难题是巨大的高差——几乎达到16M,怎么在这样进深小而高差大的地方来布置客房和公区部分呢?JMG想到了全部用单廊的板式楼栋舒展的错动开,而且通过精妙的剖面处理,让几乎所有的房间都有比较好的视线。而且由于风大浪急。JMG也放弃了阳台,全部采用水平延展的窗户来塑造每个房间的品质。

▲Site Plan of Park Hyatt Sanya

▲The View Analysis

▲鸟瞰
当然这只是大的规划逻辑,在具体处理起来,只用讲两处处理,变可以一窥JMG深厚的功底,整个酒店有两个主要的交通层,一是到达层,而是串接大量公共空间的负三层。在到达层,进到大厅后见到的是完全可以作为酒店封面照存在的超长水廊而定义的一个对景,而在建筑设计上其实是负三层通高通道的的屋面,JMG在处理这个空间对视关系的时候处理得非常对称,具有仪式感和网红感的,也是几乎所有住店客人都要拍照留念的酒店封面照。

▲网红屋面水廊

▲到达层平面
而从户外进入到大堂的一系列空间转换也是处理得非常具有仪式感的,空间的收放,艺术品的布置和视觉的组织。这都是JMG最擅长的能力。

▲到达大厅


▲Lobby
而客人从公共空间到海岸的穿行,JMG选择了用电梯+建筑内部复杂的廊道穿行来解决。因此他在负三层设计了一个巨大的水面,在水院内设置了图书馆、酒吧等空间。还串接了茶室、中餐厅等主要餐饮空间。而前文提到的水廊则在这里形成了通向海面的重要视觉通道。

▲ 负三层平面

▲ 负三层主廊道

▲ The Terrace

▲ The Library
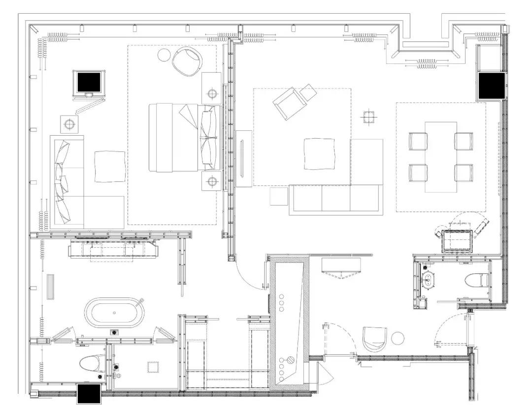
客房部分也是偏向安缦范儿,室内设计比较克制,没有太多浮夸的材质或装饰。JMG在设计建筑时给到客房的面宽非常充足。像Park Suite这样的房型,室内的家具都选择了比例比较“矮”的家具。再叠加了超长的通窗,室内效果非常舒展。


▲ Park Suite@Park Hyatt Sunny Bay
所以,JMG在太阳湾柏悦通过非常优秀的策划和实施,从建筑到室内到景观形成了一个高度一致的语言,空间品质一流,也将柏悦的美学维度大大的拓展,提升到了一个新的高度,在目前看来,太阳湾柏悦将占据三亚相当长时间之类的当之无愧的Top1,在全球顶级酒店里也是数一数二的水平。
去三亚有机会一定要体验一下这家Park Hyatt Resort旗舰。
而对比一下同年开业的广州柏悦。可能评价就没有这么正能量了,Super Potato在我看来一直没不在顶级大师的范畴内,杉本贵志的确有纯属的技法,而在做如单纯的餐饮空间等等是能出很多还不错的作品的,然而当扩展到驾驭一个顶级酒店品牌时,则会发现他们内在的核心价值的支撑和驱动不足。
而这个强大的、具有独创性的审美价值才是大师们区别一线设计师的最大区别。
我所认可的真正的大师,会带着强大的使命感,珍视每一个作品,在酒店品牌的框架下去尽力拓展自我和突破设计上的边界。这往往包含对酒店品牌的理解、空间的创新、还有对审美的的丰富。
广州柏悦对SP来说,是一个他们自身体系内优秀却完全在预期之内的作品。

▲ Park Hyatt Guangzhou
以大堂来举例,直白的流线+作为视觉焦点的艺术品,可能在大众看来往往很有噱头,但是却掩饰不了内核的空洞和苍白。想想Tony Chi在上海柏悦的首层大堂的处理。SP的设计确实显得比价单薄。

▲ 1st Floor Plan

▲ 到达大堂空间及艺术品
而到空中大堂层,还是相对简单直白的处理。直白到一出电梯就看到的傻大空间和正对的Reception,无非同样延续首层大堂的木质艺术品的选择逻辑。

▲ 63F Plan
讲到这里,其实是想表达SP在设计酒店空间时没有形成自己的强大独特的“空间观”,Tony Chi曾说道自己越往后,越喜欢把设计做小,不再喜欢那些常规的空间解法,而去追求更多“小”而有意思的处理。
SP在广州柏悦的设计,套在一个君悦品牌上,肯定是一家特色鲜明的君悦,然后说这是一家柏悦,就始终感觉差了很多口气。


▲ The Lobby
当然,客关来说,SP对木头和石头的探索还是有自己深厚的积淀的。包括在完成设计时对岭南文化和元素的提取,足够有噱头。

▲ The Living Room
客房层面,还是一贯的木质格栅的床头墙、粗粝石材的使用,让你觉得很Super Potato。


▲ Park Suite
目前在广州整体的酒店界来看,广州柏悦还是可以算得上一流水平的,然而到19年,可能会面临广州Rosewood的竞争,而到时操刀广州Rosewood的,将是熟悉的Yabu 大师,而Super Potato,也会担纲Rosewood中餐厅和酒吧的设计。期待到时两家合作呈现的作品和水平吧。
2016年,YABU担纲的2/5家柏悦——杭州柏悦开业,Yabu也宣告了自己在中国的新一代作品宣言。而上一代代表作,则是13、14年分别开业的广州W和北京华尔道夫。

▲ Park Hyatt Hangzhou
杭州柏悦选址杭州万象城,是万象城二期的重要部分,而这个项目也是华润发力高端酒店的一个重要项目,当华润对Hyatt集团的偏爱也从第一座万象城的君悦开始。而这个项目也是以期间作品来打造的。
在柏悦体系内,这个项目可以算的上既上海柏悦之后的新一代城市柏悦的标杆。特别是对中国酒店界来说,这个作品也开启了一个新的美学方向。

▲ Park Hyatt Hangzhou, Location
当然,回到具体,从实施上来说也离不开良好的前期建筑设计的空间配合。酒店建筑为KPF设计,虽然不是一个标新立异的地标建筑,但是规矩的形体却给室内留下创造丰富空间的潜力。
杭州柏悦需要重点介绍的是入口Approach的处理。
如果说东京柏悦的第一代Approach是通过对公共空间的有意识的布局处理,来解决由喧闹到安静的心理转换,那Tony Chi在上海柏悦则是在到达层制造了曲折的流线,来达成空间的转换和心情的整理。
而Y&P则在杭州柏悦则是在这个Approach的处理上增加了一个戏剧化的滤镜。
Y&P核心运用了不同尺度、不同高度,不同材质的盒子的交接以及转换。首先沿着流动感十足的水云纹大理石地面的引导,依次进入门斗空间,右转进入由金箔镂空塑造的氛围感十足的前厅空间,视觉的尽头则是礼宾部。顺着礼宾部右转则进入了最戏剧化的“百宝箱”的空间。这个尺度巨大的空间的角落,开启了一个尺度近人的洞口,而通过洞口后则来到了一个优雅的电梯厅。

▲1st Floor Plan

▲入口到电梯厅的空间转换
对比一下上海柏悦,空间转换用不同的语汇、质感、和文化氛围暗示下进入静下来的状态。而杭州柏悦则是制造冲突,有意让客人在戏剧化中迷失,在一次次非日常的空间转化中剥离了对外部世界的认知。
而从1层来到37层,再看看空中大堂的处理,可以看出来Y&P复刻江南园林的野心,看起来比较常规的轮廓之中,被处理为非常精密的嵌套空间。

▲37F Plan
首先第一层空间是前台空间,这个空间被处理得很中式:莲花元素贯穿在坐凳、柜子上,且灯具的摆放也相当具有仪式感。

▲The Reception
而通往270°环绕的Living Room的过厅平面则非常有意思,三个个逐渐放大的正方向,让动线曲折起来,避免中轴对称,做出来了非常丰富的空间层次。视觉的尽头是一个边几。左转就来到了比较戏剧化的Living Room。

▲前台通往Living Room的过厅
在Living Room部分,水磨石带来的烟煴感,配上地毯。整体塑造了一种水墨画的氛围。想想在纽约柏悦SPA区The Aerie里那一块精彩的迷幻的石材。可以说Y&P也是真的配得上善用花哨石材的大师。

▲The Living Room
在客房部分,平面相对比较常规,跟纽约柏悦一样,同样居家感十足,但比较有意思的是室内对中国花卉的各种元素的转译,从荷花到梅花,蓝色梅花漆器主题的酒柜,特别是床头梅花床头背景墙的处理,是相当具有原创性而十分精彩。



▲Park Suite
而到了康体部分,依旧是戏剧化的空间处理,大量的水云纹大理石的使用。浓墨重彩。

▲The Swimming Pool
所以,Y&P在面对杭州+柏悦这个命题时,从平面上和空间塑造上首先植入了园林的部分逻辑,而在材料选择上又通过一以贯之的逻辑强化了整个酒店的氛围,这和他们以往相对比较雅致的风格来说非常不同,同时也创造了一种新的实现“中式美学”的路径。
而在去年,随着网红商场Central Embassy的开业,曼谷也迎来了自己的第一家柏悦。是Y&P的3/5个柏悦作品。而Y&P作为一个规模并不大的事务所,能同时操刀这么多家柏悦,还能持续稳定高产的输出佳作,可见其在商业运营上有自己的独到之处。

▲Park Hyatt Bangkok
业主在打造综合体时,选择了打造特立独行的地标建筑的思路,选择了英国事务所Amanda Levete Architects来设计,建筑整体比较炫酷,螺旋形上升,大量不规则的室内空间。且空间形状主要为带状空间,这意味着留给室内发挥的空间限制非常多:没有完整的会议空间、标准层面积比较小、形状不规则、空间上下联动比较薄弱、空间分散。

▲The Central Embassy建筑生成
面对这样的难题,Y&P首先需要进行空间策划。由于9F为裙房屋面层,规划有室外空间,则将餐饮部分设置在9F,由于空间的限制,只有在10F设置Sky Lobby。而同理,则将宴会空间设置在负一层。而另一部分特色餐饮及酒吧则被甩到34-36F独立处理。而34-36F,被交给了来自纽约的AvroKO事务所打造。
所以设计的重点是在不规则平面内规整空间,塑造一个个高品质的小空间,还要串联主要的公共空间,形成一致的空间体验。
首先是一层,考虑到车行、人行、与商场内部的衔接,在不同开口之间用弧形的墙面+艺术品做成了一个比较流动的空间,而这个空间也衔接上位于地下一层的宴会空间。

▲一层接待大堂

▲通往负一层宴会层的旋转楼梯
在10F的Sky Lobby的处理也是比较恰当的,将Reception放置在整个楼层的中部。转乘电梯上来后依次经过大堂吧、Library,经过高空水景庭院。来到Reception,而通往客房的电梯中转,也通过Reception空间来衔接。而与9F餐饮空间的串联,则通过一个直长的大楼梯来实现,同时和旁边的中庭水景产生互动。

▲10F Plan


▲The Reception

▲通往9F的过道,尽端为大楼梯。
顺着楼梯走到楼下,则来到Living Room,Y&P在曼谷柏悦里使用了大量日本艺术家的艺术作品。用这些戏剧化的灯饰和吊饰,来支撑通高却十分狭长的空间。而在玻璃幕墙之外,就是郁郁葱葱的室外泳池和室外餐饮区。

▲The Living Room

▲The Outdoor Swimming Pool
而客房的设计也相对比较寡淡,沿用了泰国文化元素,也将莲花引入空间细节的处理。如边几的形状,浴缸墙面的压制出来的莲花纹理。


▲Park Suite
在曼谷柏悦,面对这么一个张扬,外放的建筑,Y&P选择了反其道而行之的思路,采用素雅的风格,以贴近泰国佛教文化氛围的尝试下,在不规则的建筑空间里寻求精致而相对完整的空间体验。也是曼谷酒店界一个比较独特的美学存在。
展望
通过大量的图文介绍,我们基本梳理清楚了柏悦品牌的发展脉络和品牌内涵沿革。也重点介绍了柏悦具有代表性的重要作品。
在接下来的一两年,我们还将迎来Y&P打造的深圳平安柏悦,Park Hyatt Los Cabos,Tony Chi在京都打造的京都柏悦等等作品,相信大师们不会让我们失望,会进一步扩展柏悦的美学内核。
相信你通过以上的介绍也明白了在文章一开头所提到的,柏悦品牌是最有设计情怀的酒店品牌之一。
在当下这个越来越强调设计和美学价值的时代,无疑柏悦拥有非常好的发展底子和先天优势,通过一代代的设计大师们的心血灌注,形成了区隔其他“顶级奢华”品牌的美学基因。
这是,相信你不再会以“性冷淡”来简单概括柏悦,或许会换成高冷、前瞻、品位、细腻等等词汇来描述你对某一家柏悦的印象,又或许,“Luxury is Personal”就是描述柏悦的最佳Slogan吧。
让我们共同期待下一间Park Hyatt的故事。