好设计,不仅能让居住升级,
更能让房子价值翻倍!
最近我们拜访的一套外滩江景豪宅,
原本的使用面积不到80㎡,
经过设计师一番改造,
扩成150㎡顶层复式,
十万一平米的豪宅价值翻了一倍!

在距离黄浦江一条马路之隔的金外滩花园某顶层复式公寓,豪宅设计师侯胤杰Nathan带我们来到这套他新完成的作品当中。
房屋信息
项目坐标:上海外滩
装修类型:老房改造
房型结构:顶层复式70㎡
装修费用:硬装40W,软装20W
设计师

侯胤杰Nathan 上海法纳兴室内设计有限公司创始人,作品曾刊登《AD安邸》、《ELLEDECO》《InStyle》等国际知名杂志。

屋子的主人是位时尚优雅,对生活品质要求非常高的时装设计师,和她同住的是她忠诚温顺的伙伴小狗Eddie

这里坐拥黄浦江一线江景,与陆家嘴金融区隔江相望。
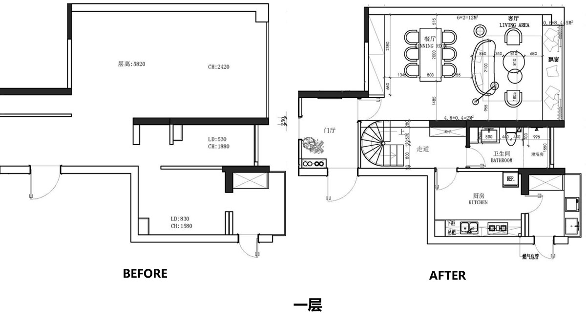
Before

改造之前这是一套层高5.8米的顶层复式,设计师将户型一分为二成为两个独立套间。(这里是一半面积)客厅区域挑高,二楼仅一个小卧室。
来看下一层户型图

第一步
加夹层,让空间翻倍

before
由于房子位于顶层有着绝佳视角,设计师在客厅位置加了一层楼面,二楼该处变为了主卧、衣帽间和主卫,这样一来房子的实用面积几乎翻了一倍。

空间亮点
活珊瑚橘撞色莫兰迪,移步异景
2019年设计界最流行的色彩在这个空间中尽情展现,Pantone2019年度流行色——活山湖橘,以及以高级灰为代表的莫兰迪色系。

餐客厅,三面墙分别是三种完全不同的演绎,可谓移步异景。

墙面用活珊瑚橘和莫兰迪灰做撞色搭配,这是一整面定制壁纸。客厅在暗黑系中加入明度不同的几何色块,与餐厅形成鲜明对比。

地毯采用活泼的糖果色搭配几何色块,显得时尚又有活力。
餐厅


餐厅背景墙,从灰蓝过渡到橘粉,当中三个拱形门洞饰以黑白格纹,配色大胆,并且层次丰富。
操作二
没有飘窗自己造,成最佳观景台

原本的房子就是普通落地窗,设计师加入夹层后,还特意将此处改造成上下两个大飘窗,内侧刷了灰蓝,还用不锈钢材质勾勒了一圈线框,仿佛将室外风景定格在画面当中。

飘窗与沙发相对,客人们来这里还是沙发的补充区,同时这里也是主人坐着看书、欣赏外滩风景的绝佳去处。
厨房

因为女主人比较少做饭,就做了一个比较简单的一字厨房,外面的餐边柜一定程度上弥补了储物空间不足。
卫浴空间


一楼的客卫,将客厅的橘粉色在这里延续,防水漆和工字铺贴的白墙砖完美融合,用地面花砖打底,黑、白、粉三种颜色在这个空间中相互制约平衡。
操作三
楼梯改造,粉色旋转楼梯超浪漫

更重要的是,改了楼梯位置,由一字型楼梯改为占地更小的旋转楼梯,这也成为空间一大亮点。


原本的直线型楼梯占用面积更大,并且平平无奇,改造之后增加了上下两层的使用面积,更让楼梯本身成为这个空间的亮点。
二楼户型图

主卧

原本客厅的挑高空间,加入一个夹层,二楼多出一个非常宽敞的主卧,同样用黑色不锈钢线条框出了飘窗观景台,将室外风景借入室内,更给主人让内心放空的独处空间。

主卧背景墙同样是一幅定制的壁纸,将广袤的森林与平原风光带入室内,给人无限遐想。

另一侧是开放式的衣帽间,中间的门推进去则是主卫。

开放式衣帽间
主卫

坐拥一面大落地窗的主卫设计简洁利落,几何纹理的六角砖只铺了半墙,留白恰到好处让视觉更舒服,悬浮台盆柜让清洁无死角。埋墙式的水龙头、花洒也让空间更时髦大气,在这里一边泡澡一边欣赏风景,实在太治愈。
次卧

隔壁还有一个小客卧,跟主卧风格一脉相承,空间虽小但前面的大窗带来足够好的视角。为女主人的家人或者闺蜜来玩准备了小的独立空间。
经过Nathan的一番改造,整个屋子的使用面积几乎扩大了一倍,能充分将这个景观住宅的优势发挥到极致,也让女主人实现了她梦想中的生活。
前面提到设计师将房子一拆为二,这一套风格色彩柔美,适合女性,而另外一套则简洁素雅,不妨来看看。




这两套全新的设计,你们更喜欢哪套呢?如果家里有闲置房,不妨可以考虑也装修成城市民宿哟,我们上周推荐的文章《小夫妻突发奇想,花8万把闲置房装修成城市民宿,住过的人都不想走》,里就谈到,把房子交给途家等平台托管,中心城区地段,房租翻了三倍。
如果你家也有闲置房,欢迎咨询!
材料清单
SHOPPING LIST
▼
开关插座:施耐德
筒灯射灯:雷士照明
涂料防水漆:多乐士
地板:Aibee艾比
浴缸、台盆、龙头:戈立高立
六角花砖瓷砖:鹏诺
烟机煤气灶:苏泊尔
烤箱:美的
冰箱:西门子