今天分享一套简约北欧风的复式案例,这套住房是二手房翻新,顶层复式,六室三厅,一厨三卫。
房型分析

原始结构图(一层)

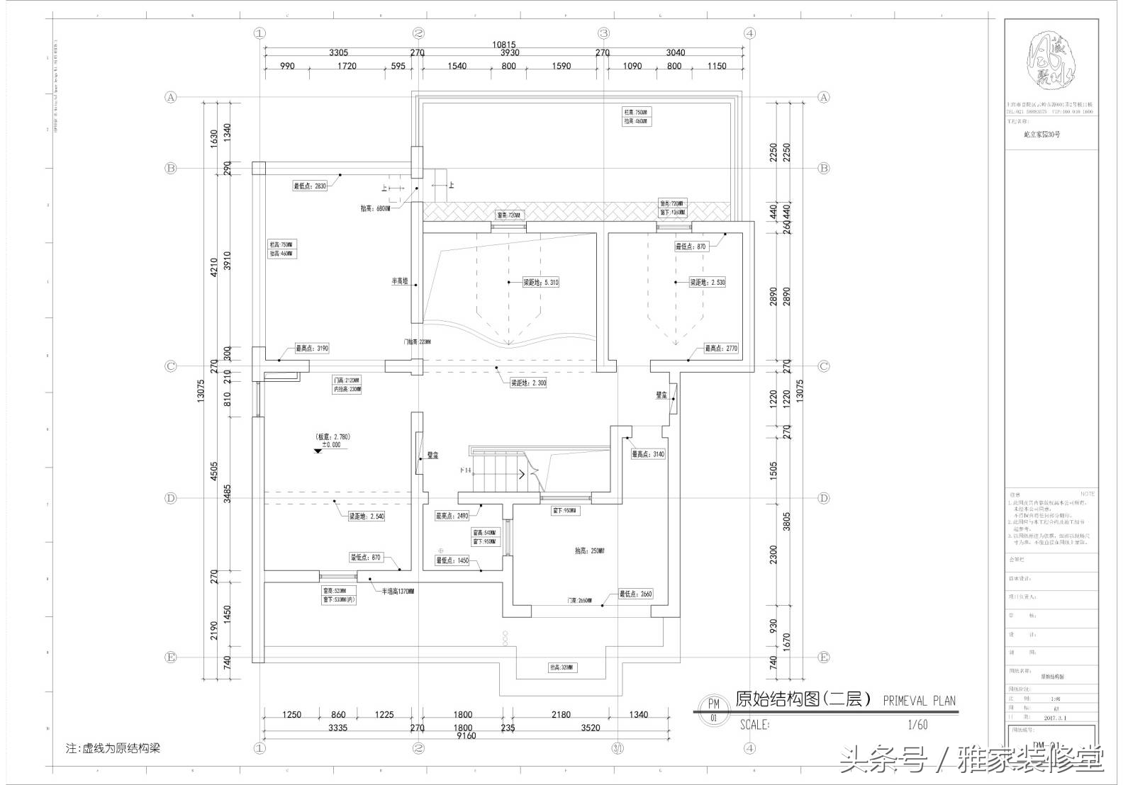
原始结构图(二层)
优点:
-
该住户为顶层复式,有一个超大的阳台,采光通风极佳。
-
客餐厅连在一起,整体空间通透开阔。
-
二楼卧室与阳台相连,主人入住更加舒适。
缺点:
-
客厅挑高的顶因为二楼走道的关系,让客厅看起来压抑、拘谨。
-
一楼的采光也不是很好,门厅位置比较暗。
方案分析
方案一:

方案一(一层)
-
本方案中,一楼为主要公共区域,楼梯根据业主要求没做改动。
-
利用原本两厅通透的优点,划分为客厅和餐厅加强了空间的整体化。
-
打造独立的U型厨房,既达到空间最大化利用,也有效的避免了油烟到处扩散,影响室内空气。
-
卫生间干湿分离提升了实用功能,避免使用浴室和使用台盆的冲突。
-
主卧放在一楼,借用规整的房型,做了一个套间,有着超大的衣帽间和同时拥有浴缸淋浴的卫生间。

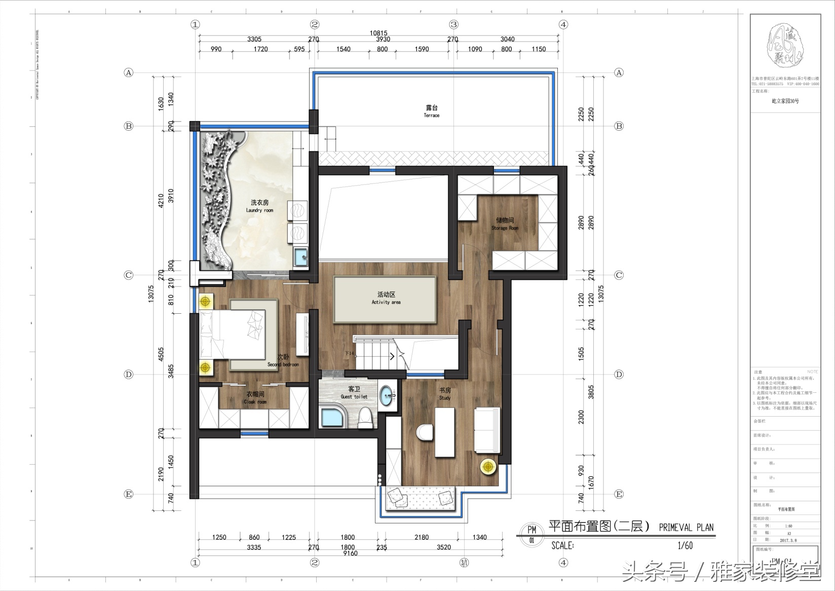
方案一(二)
-
二楼将原来接近浪费的洗衣房和已经浪费掉的露天阳台收入到室内,做成一个书房,宽敞安静,适宜业主工作洽谈。
-
将洗衣房放在朝南的阳光房,种一些绿植增添空间的灵动性,使整体空间不那么枯燥,死板。
方案二:

方案二(一层)
-
方案二沿用了方案一中的套间主卧,沙发面对窗户。
-
用木栏珊做背景有两用的功能,即可作电视背景墙也增添了茶艺区的情调。
-
餐桌与沙发之间用一个矮柜隔开,既划分了区域也保证空间的整体化,整齐不凌乱。
-
在小孩房增添了一个衣帽间,增加了收纳空间,也保证孩子的玩具有归置之处。

方案二(二层)
-
方案二增添了一个起居室,增加了家人娱乐休闲的区域,书房依旧沿用了方案一的做法。
-
将客厅挑空部分现浇,这样不仅避免了客厅压抑拘谨的弊端,还增加了功能性。
-
增加的空间作为儿童房,让孩子拥有足够的储物空间和学习区域。
装修前



效果图

客餐卫

卧室

儿童房
编后:这套住房的房型非常周正,业主对设计也比较有要求,所以设计师在设计时比较注意一些设计的细节。如果有装修设计需求的,请联系雅家装修堂哦!