金茂悦这个楼盘怎么样,无论是优点还是缺点,之前已经介绍过很多次了,从去年五月份开盘到现在,这个楼盘一直没叫我失望过,一句话概括这个楼盘的话就是好、贵,不光单价贵,后期物业费也贵,今天咱们不说楼盘,只聊户型。

第一个户型是这个89㎡的三居户型,因为金茂悦是带连廊的,所以中间户也能做到一点点的南北通透,这个户型严格意义来讲不算三居,应该叫2.5的户型,因为书房太小了,住人肯定是不合适,适合刚刚成家的一家两口住,一个卫生间非常不方便。

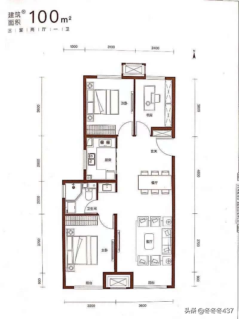
100㎡的三居户型,这个是新开的17号楼主力户型,还是适合条件稍好的一家三口住,空间利用率以及各个房间的分布都还算可以,最大的缺点还是只有一个卫生间,没住过的人可能体会不到。

重点来了,110㎡的三居,这个户型就好舒服多了,户型方正,房间分布合理,两个卫生间还都有窗户,在能力允许的前提下,首选这个户型。

125㎡的四居室户型,一般,没有什么惊艳的感觉,情理之中,意料之内,有点同上,不多废话,适合有老人同住的朋友。

洋房143㎡的四居室户型,户型很美丽,价格也很美丽,最美丽的是这个大客厅,闲余时间,一帮志同道合的朋友搞个聚会,很好很好。适合土豪。
对于户型这件事,汝之蜜糖,吾之*霜砒**。每个人的喜好都是不一样的,没有一个特别固定的衡量标准。而且,交房以后的后期装修和家具摆放也非常重要,仁者见仁智者见智。
PS:这只是小编的个人喜好,仅供大家参考,没有乱带节奏,更没有被充值。小编的文化水平也是有限,每写一篇文章都要掉十几根头发,各位且看且珍惜。觉得写的还能看,多多点赞转发一下,感谢大家的支持。下一篇户型要看哪里?#保定头条##楼市杂谈#