润城132平三居室户型装修设计,法式新古典风格,追求简洁自然之美的同时保留欧式家具的线条轮廓特征。

电视背景墙
小区:润城
装修风格:法式古典
设计师:马炳林
建筑面积:132平
美巢套餐:528套餐+个性造价
装修总价:14万

沙发背景墙

餐厅

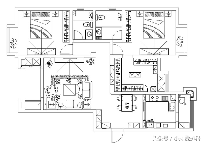
平面布置图

主卧
点击作者头像关注可获更多资讯
免费预约报价。免费预约设计师。
装修详情咨询(188-380-27852)Weixin
服务范围:河南 福州 北京 上海 武汉 杭州 江门 济南 合肥

润城132平三居室户型装修设计,法式新古典风格,追求简洁自然之美的同时保留欧式家具的线条轮廓特征。

电视背景墙
小区:润城
装修风格:法式古典
设计师:马炳林
建筑面积:132平
美巢套餐:528套餐+个性造价
装修总价:14万

沙发背景墙

餐厅

平面布置图

主卧
点击作者头像关注可获更多资讯
免费预约报价。免费预约设计师。
装修详情咨询(188-380-27852)Weixin
服务范围:河南 福州 北京 上海 武汉 杭州 江门 济南 合肥
