设计师拿到一个户型要怎么和住户需求结合在一起?同一个户型不同居住人数如何靠设计来解决?小区户型分析第13期,是成都“黄金城南”双流区的德商御府天骄别墅。
本期设计师王晓佳从纯粹的生活方式出发,为居住其中的一家三口设计一套自然恬静、质朴隐奢的理想之家。
德商御府天骄 E户型
建筑面积:355㎡
小区户型:6室3厅2厨5卫1花园
设计风格:侘寂风

本案设计师 王晓佳
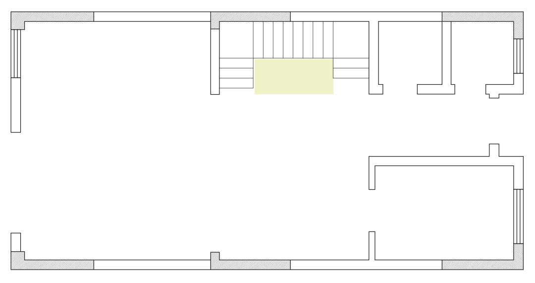
1F | 质朴隐奢的社交空间

△改造前

△改造后
改造重点:
①一楼花园处实施搭建,将原入户调整至客厅南侧,出门就能看到超大花园;
②利用原户型错层设计下沉式客厅,作为区域分割,入户到餐厅动线更加流畅;
③原中厨位置改为中西厨结合,增加社交空间;
④楼梯间打造平台区,消除从高层看向低层的空洞感。
为打造注重生活、静心宁人的理想家,设计师王晓佳以干净素雅色调来强调居住环境质朴的内在,设计能够经历时间考验的居住空间。
玄关▼


△改造前/改造后
原入户处在卫生间与厨房之间,位置较为尴尬,同时玄关较短,入户到客厅无过渡,都让入户区不够舒适和美观。
考虑屋主希望门朝西开且入户就能欣赏风景的想法,于一楼花园处实施搭建,将原入户调整至客厅南侧,扩大玄关面积,解决原始玄关尴尬位置与容量不足的问题。

△玄关效果图
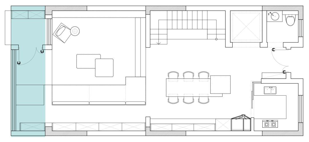
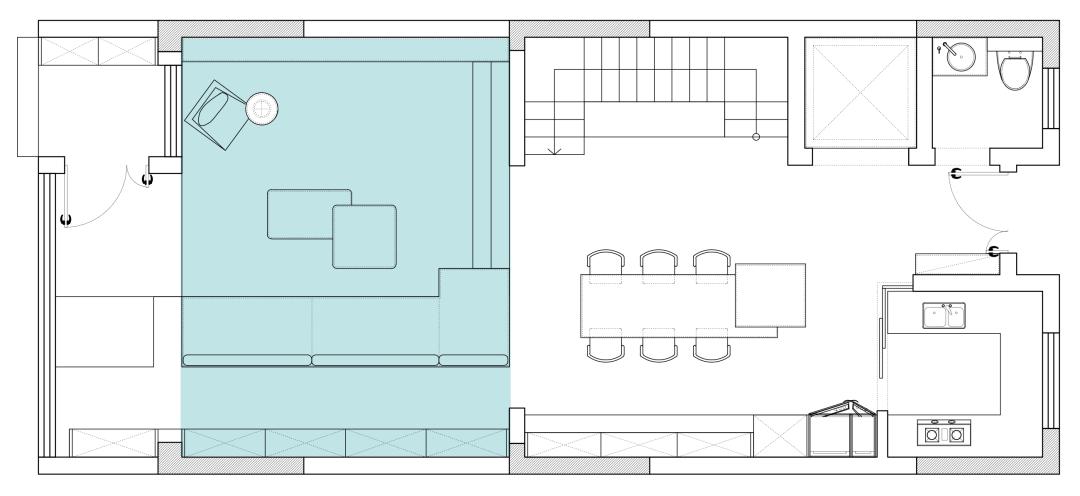
客厅▼


△改造前/改造后
屋主对社交需求较高,一楼原始的错层空间,有层次感且通透,王晓佳利用此处设计下沉式客厅区域实现多种生活与社交场景。

△客厅效果图
同时沙发背后的地台设计,让人从玄关到餐厅无需穿越客厅就能到达,动线更为流畅。


玻璃门窗为室内提供足够的采光,一张较宽的沙发与水泥地板一起营造出温馨舒适的感觉。
素水泥是侘寂风运用最多的元素之一,它本身独特的肌理变化,给整个空间带来素洁和极致的简约效果。

靠墙角位置的壁炉为室内带来了温暖,蘑菇石的墙面装饰既能彰显侘寂风的设计理念,也可避免整面柜体导致的空间过于死板。
全屋少而精的装饰,简洁而具有设计感的家具表现侘寂淡泊浮华的态度。
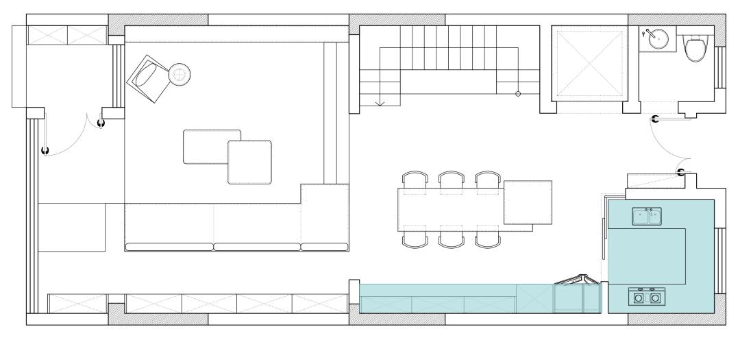
中西厨▼


△改造前/改造后
在王晓佳看来,要想让家充满温度,应该多在家里留出社交空间,因此将原中厨空间缩小大约四分之一,在餐厅区靠墙设计定制柜体并嵌入冰箱、烤箱等家电,打造中西厨。

△中西厨效果图
在不占用进出门动线的前提下,将餐桌置于客厅与楼梯的关口,美观而便捷。在这里无论是用餐、朋友聊天亦或临时办公,都毫无负担。
楼梯▼


△改造前/改造后
为避免一低头就看见超深的楼梯空洞,王晓佳特地在每层楼梯口做了平台搭建,用勃勃生机的绿植做搭配,再配合艺术感十足的灯光,将最容易被忽略的楼道打造成家里最亮眼的风景。

△楼梯间效果图
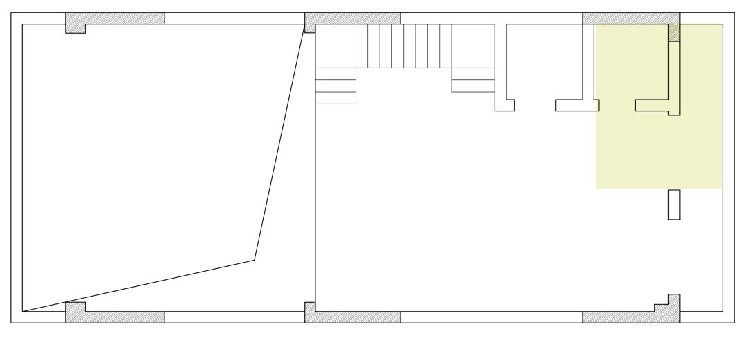
-1F | 休闲安逸的娱乐空间

△改造前

△改造后
改造重点:
①负一楼挑空区实施搭建,将影音区、麻将休闲区、酒水吧台区全部移动到负1层,得到足够放松肆意的娱乐环境;
②原卫生间与小阳台联通,打造超大洗漱间,消除拥挤感;设计洗衣房,浣衣无需上楼。
影音区▼


△改造前/改造后
设计师将1楼完全化为中西厨+客厅的社交空间之后,在负一楼挑空区进行平台搭建,将娱乐休闲区全部设置在负1楼。

△影音区效果图
尽管在负1楼,却依然是极具品质的存在,环绕式超大屏影厅颜值与实用性并存;极具氛围的大理石吧台,让小酌一杯成为特别期待的事;更别说还有成都人最爱的桌麻,简直就是娱乐天堂。

△吧台区效果图

△桌麻区效果图
卫生间&洗衣房▼


△改造前/改造后
由于楼盘采光井设计,负1楼采光依旧优秀,设计师利用此处区域打造独立洗衣房,承接1F--2F层换洗需求。

△从-2F拍摄-1F采光
2F | 温馨惜时的陪伴空间

△改造前

△改造后
改造重点:
①打通原卧室1与阳台,得到超大儿童房;
②卧室2处平台搭建,得到扩大老人房卧室空间。
楼梯向右便是儿童房,设计师将阳台与卧室联通,门洞向外调整,使整体空间非常开阔,小小的床和书桌让这里既能休息也能学习,留出的空间足够供孩子玩耍。

△老人房效果图
老人房在一楼平台处实施搭建,扩大卧室空间,来容纳独立卫生间与大衣柜。

△儿童玩耍区效果图
2楼最主要的空间便是为孩子准备的,楼梯前的平台区域为孩子设计足够大的活动玩耍区。
3F | 私密独立的专属空间

△改造前

△改造后
改造重点:
①衣帽间与小阳台联通,打造超大双功能衣帽间;
②充分利用富余空间,打造开放式书房。
原始户型中衣帽间分割过于凌乱,改造后将衣帽间与阳台联通,部分卫生间墙体内缩,打造双衣帽间满足男女主人的不同阶段的储物需求。

△主卧效果图
设计师在主卫设计宽敞的双人洗漱外,还专门设计了独立沐浴室、超大的嵌入式按摩浴缸及独立马桶区。在此基础上,另留出足够空间打造开放式阳光书房。
无论房子大或者小,家的主角,永远是人,每个空间布局、每件家具陈列、每种颜色和材质设计,都需贴近居住者的生活。
于繁华处觅安静,在淡云流水中度此生。在城市里圈一处空间为家,打造一个低调不失品质的环境,贴近自然,注重生活,这无疑最是让人心生向往的生活方式。