
[无锡] 3室2厅1厨2卫 / 现代
装修预算Budget 总预算¥18万
毕业照Photos

客厅。

全套的仿HarborHouse家具,整体用料很不错。

主卧。

次卧。

阳台。

榻榻米房。

厨房。

洗手间。
装修过程
Process
2013.10.03 准备阶段

本案设计方案。
2013.10.10 准备阶段
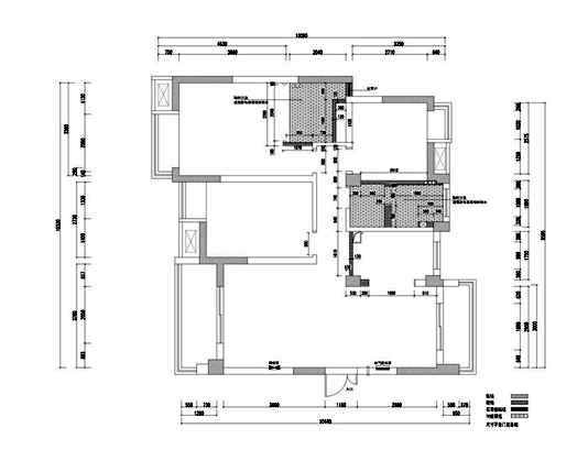
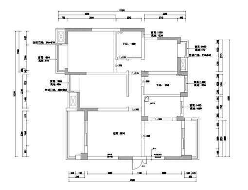
结构改造的目的是合理利用空间,也是最体现设计师功力的步骤,若改造的合理,后面整个装修过程都会进展的十分顺畅。根据我家的户型特点,结构改造比较多,主要是将主卧的卫生间改为衣帽间,用来增加储物功能;另外,将书房的2堵墙敲掉,用来改造成衣柜和书柜;还有将厨房的一堵双墙改为单墙,增加走廊的空间,其他则维持不变。值得一提的是在齐家网最美装修app上找的这个设计师真不错,不厌其烦跟我沟通了多次,根据很多我没意识到的需求费了很多心思,后面家居小物件采购也给了我很多建议,后来我还把他推荐给了好几个也准备装修的朋友。
2013.10.10 准备阶段

图解1。
2013.10.10 准备阶段

图解2。
2013.11.03 水电阶段
水电是开工后最重要的步骤,其重要程度甚至比吊顶和贴砖还来得重要,原因不言自明,隐蔽工程,万一出现问题,以后将无法维修。所以,水电最马虎不得,也是最不能节省的一环。考虑到这一点,水管和电线选的都是比较好的品牌。还是那句话,隐蔽工程,材料选好一点对未来的新家也是个保障,有的钱可省,但水电的钱不能省!
2013.11.03 水电阶段
水电材料经验收还是挺不错滴!
2013.11.05 水电阶段

在水电施工阶段还需要将前置过滤器和弱电箱一并安装到位,省去了以后添加更换的麻烦。
2013.11.06 水电阶段
选择帝森是因为它在细节的处理上让人比较放心。譬如,柜体内部都有铝合金框架支撑,这样柜体不容易变形;开门铰链都是帝森自己的五金件,质量有保证;每块层板外面都有包边,时间长了也不会变形。当然这些也不仅仅是帝森特有的,其他品牌的橱柜有的也有,但综合考查下来,感觉帝森的性价比还是不错的。
2013.11.06 水电阶段

橱柜定好了,在水电施工阶段需要到场粗测,排好厨房间水电的位置,便于布线。并且商家会给出设计方案,便于后续的定制和安装。
2013.11.09 水电阶段

今天去施工现场,电线终于快布完了,买的弱电箱也装好了。下周开始布水管,速度真是快啊,先传张照上来看看!
2013.11.09 水电阶段

强电箱处。
2013.11.17 水电阶段
水电终于如期完工了,在验收前也做了一些功课,在最美装修app上搜“水电验收”就能查到很多关于验收的文章,可以学到很多水电方面的知识。而且基本上都是按照要求来做的,我和老爸也都很满意。现场还做了保压试验,没发现有地方漏水,而且今天连煤气表都安装好了,进展真是顺利。接下来就是木工了,我们拭目以待...
2013.11.17 水电阶段

水管走顶。
2013.11.17 水电阶段

安装好的前置过滤器。
2013.11.17 水电阶段

现场保压试验。
2013.11.17 水电阶段

TXM帮我看看这样规范吗?
2013.11.24 水电阶段
风管机的选择:身边有很多朋友都打算装中央空调,确实,中央空调又美观又不占地方,但成本很高,三室两厅的房子最起码装个二拖五,算下来怎么也要30000多,如果是大金的,最起码40000以上,普通挂壁式空调够买10台了。不差钱的网友们自然不在话下,但考虑到性价比,传统的挂壁式空调无疑是最好的选择。不过,现在有种空调,外观看上去像中央空调,但价格又比中央空调便宜,那就是风管机了。
2013.11.24 水电阶段
所以,我决定在客餐厅和主卧采用风管机,但无奈的是,餐厅外居然没有空调机位,显然开发商在做户型设计的时候没有考虑到这一点,已有的空调机位基本上是一个房间配一个,其中小房间的空调机位还得和客厅共用。
这样一来,在餐厅单独装一台风管机的想法只能泡汤了,只能考虑客餐厅共用一台风管机,而且考虑到风管机装好后的整体吊顶不能往客厅的一边偏,所以风管机的位置只能装在客餐厅的中间过道上。
整体效果没有影响,但出风口却只能往客厅方向打,夏天餐厅势必不会制冷太快。至于主卧的风管机,倒是影响不大。先看看效果吧!
2013.11.24 水电阶段
装好的风管机。
2013.12.02 泥木阶段

木工和吊顶终于快结束了,石膏板基本已经全部安装到位,后续只需要批一下,安装下石膏线条就行了。
2013.12.02 泥木阶段

其实吊顶还是简单一点好。
2013.12.02 泥木阶段
看过很多欧式样板房,吊顶造型都很花哨,又是回光又是层次的,灯光一打漂亮的不行,其实好的吊顶应该追求实用优先,所谓实用,就是平时能用的多,好打理。当初在设计吊顶方案的时候就是以这个为目标的。回光好看是好看,可大多数人只是偶尔开一下,平时在家,没有客人的时候根本就用不到,而且最大的坏处就是积灰了,时间久了打扫都不好打扫。目前的吊顶就是在美观的基础上,简单,实用,好打理。
2013.12.09 泥木阶段
木工终于在上周末完工了,做的挺规范的,尤其是缝隙处处理的比较好,缝隙也比较均匀,看上去整齐划一,在此需要谢谢木工师傅的漂亮手艺。正常工序应该是瓦工在前,木工在后;但我家正好是反的,瓦工师傅在别人家的活才刚做完,所以为了凑瓦工,特意安排了木工在前面做掉了。所以瓦工从本周正式开始了!瓦工和木工一样,都是要靠手艺的,砖贴的好不好,缝隙均不均匀,一看就能看的出来,马虎不得。所以这个环节,瓦工师傅的手艺,决定了我家将来的美观和质量。但除了瓦工的技能,选择的砖也很重要,关于墙砖,地砖,可选择的实在太多了,说实话,一开始真不知道从何下手。
2013.12.09 泥木阶段
好在我家的风格已经确定,目标明确了,选砖肯定不能大海捞针似的去选,一下子就圈在了仿古砖这么个范围。正好设计师有认识专门卖仿古砖的地方,基本上大部分砖都是从那边拿的。但选颜色,大小和花型,绝对是一件很痛苦的事。对没有经验的我来说,怎么搭配,怎铺好看只能全凭想象,好不容易将客餐厅,厨房,阳台和走廊的砖敲定,可卫生间的砖始终定不下来。没办法,只能再找其他店铺看看。
有一次逛好得家,看见有款罗马的砖还不错,比较适合我想象中的风格,就这么订了下来。一开始宁愿多买一点,好比后面发现不够再去添,万一不是来自同一批,必定会有色差,铺上去就臭了。关于瓷砖,能说的都说了,瓷砖是装修建材的大头,一般都要花个2万左右,所以前期功课做足点肯定是有必要的。
2013.12.09 泥木阶段

好在我家的风格已经确定,目标明确了,选砖肯定不能大海捞针似的去选,一下子就圈在了仿古砖这么个范围。
2013.12.14 泥木阶段

卫生间墙面已经完成了,曹师傅一家在贴的,贴的真好,手艺果然出众,墙砖贴完很漂亮,比想象中的还要好!
2013.12.18 泥木阶段
在这里要感谢下曹师傅建议我将烟道止回阀换掉的,KFS虽然在交房的时候安装好了烟道止回阀,但其实用的是很次的东西,以后排烟的时候容易回出来,厨房容易呛着,所以曹师傅建议我换成邦哥的烟道止回阀,自带吸力密封盖,油烟不容易回出来。不知道后续效果如何,但感觉还不错。
2013.12.18 泥木阶段

邦哥的烟道止回阀。
2014.01.13 油漆阶段
确实是很久没上来更新了,施工也是有进展的,至少墙面的第一次批腻子已经结束了,昨天木工师傅也进来将空调机位旁边的门框和和书房的护墙板给装好了。今天开始第二次批墙,石膏线是赶不上安装了,昨天订的金桥的石膏线,但被告知工人要等到初十才能过来安装,工期略有滞后。再加上之前订的木门,橱柜,吊顶,衣柜,榻榻米,坐便器,水池,淋浴房等都得过了年才能来安装了。所以整个工期,预计得等到明年4月才能彻底完工。这么算来,整整装了半年。
2014.01.13 油漆阶段

木工师傅将空调机位旁边的门框装好。
2014.01.13 油漆阶段

书房的护墙板也给装好了。
2014.01.13 油漆阶段

今天第二次批墙,石膏线是赶不上安装了。
2014.01.15 油漆阶段

石膏线吊顶。
2014.03.10 油漆阶段

新鲜出炉的厨房效果,今天橱柜刚刚做好。后面等着做台面,按水槽,装龙头和灶具等了。
2014.03.13 油漆阶段
Roca的坐便器:说到坐便器,当时真是挑花了眼,KOHLER的吧,好看,但是价格不菲,看中的几款美式风格都要3.5K以上的价格,后来又陆续看了美标,恒洁,九牧等,感觉都没KOHLER的好,但又迫于预算,不得不放弃选择KOHLER,后来和LD商量,最终定了Roca,感觉性价比还可以,其实Roca和KOHLER属于同一档次,比较下来也没便宜多少。当然,各位如果不差钱,建议还是选择KOHLER的吧。
2014.03.13 油漆阶段

Roca的坐便器。
2014.03.27 油漆阶段
世友地板:地板上周末已经铺好了,一直没时间更新上来。说起当时挑地板的经历,其实也没花太多时间就搞定了。朋友推荐了世友地板无锡地区的总经销商,给了很不错的优惠,去店面跑了一下就顺利定下来了。一开始想挑手抓纹的橡木地板,可LD觉得颜色太红了,不喜欢,挑来挑去,最终选择了这款刺槐。铺上去比较复古,原木的纹路非常清晰,手感也很好。因为走廊有面墙要地板上墙,所以后来又去店里挑了3个平方的橡木。两款地板拿在一起一对比,分量明显不一样,真是一分价钱一分货啊!虽然刺槐的贵了点,但铺上去后的感觉还是不错的,适合美式风格啊!
2014.03.27 油漆阶段

地板预铺。
2014.03.27 油漆阶段

铺上去后的感觉还是不错的,适合美式风格啊!
2014.03.29 油漆阶段
简铭衣柜,安装现场:经历两天的第一阶段衣柜安装终于结束了,先将主卧,书房和阳台的衣柜都安装好了。第二阶段是榻榻米,书柜和台面安装;第三阶段是移门安装。由于家里的衣柜比较多,所以安装也只能分阶段进行。
2014.03.29 油漆阶段

不可否认,大品牌,现场做工还是不错的。用料也比较实在,确实没选错牌子。
2014.04.21 油漆阶段

卡蒂罗木门安装:周末不在家,结果木门和踢脚线都给装好了。
2014.04.22 油漆阶段

木门用料和实在,非常沉,装起来效果也不错。
2014.04.22 油漆阶段

门锁看起来效果也棒棒哒!
2014.04.22 油漆阶段
就是安装师傅太垃圾,很多地方存在瑕疵,安装的时候门套也没保护好,还爆漆了,很闹心。现在卖建材的太没良心了,明明他们的问题,产生的门套开裂,结果只补不换,装完之后缝隙还要我自己找打美容胶的人来填充缝隙。这算什么世道?针对这个Case,我总结了3条经验:
1/ 买东西千万不要在亲戚那买,听着挺好,还以为能捡到便宜,结果门锁不含,铰链不含,门吸不含,玻璃胶不含,材料多出来还不能退!
2/ 千万不能将费用全部付清,必须要留一点等验收没问题了才能付,宁可不买这家,也不能傻乎乎的先把钱付了,已经在这个问题上吃过2次亏了。
3/ 现场监工很重要,有问题必须当场指出,当场解决,越往后拖,对自己越不利!
2014.04.25 油漆阶段
前天,昨天是家里进展最快的2天了,2天内将开关,插座,油烟机,淋浴房,木门返工统统搞定,离保洁已经很近啦。现在就等护墙板和门套的返工了,装好后就能上墙纸和最后一遍面漆了,5月份底前肯定能结束了!
2014.05.03 竣工阶段
这两天家里继续开始各种安装了,先是安装开关插座,然后是断路器和灯具,最后是花洒和水龙头。安装是最繁琐的事情,经常会缺东西,因为买的时候商家根本就不会提醒你还需要什么配件,结果到安装的时候发现没有,就只能立即去买。先是断路器,水电师傅说买错了,全部需要重新买,昨天请了半天假,又是百安居,又是好得家,总算在中午搞定。
之后又是马桶密封圈,买马桶的时候,商家根本不告知你还需要哪些配件,又得去买。到晚上装水龙头的时候,又发现进口龙头的水管和国标角阀不一样,要另外配转接头,我了个去,又只能去买。总之在安装过程中,得随时等候去紧急采购,有各种毛病现场必须立即指正,等装完了再弄就不方便了。
2014.05.13 竣工阶段

卧室灯。
2014.05.13 竣工阶段

客厅灯。
2014.05.23 竣工阶段
亮彩墙纸:亲戚的亲戚是做壁纸生意的,所以这次家里主卧和次卧卡了点油,给优惠了不少。昨天终于贴好了,LD说比想象中的要好,但照片拍出来会有点色彩失真,大家凑合着看吧。本来打算主卧只贴床头一面墙的,结果装修公司说之前已经涂了基膜不好改了,真要改不单要增加费用,而且刷乳胶漆以后可能会脱落,还不能保证。多方咨询,最终只能放弃,算是装修中的遗憾了。好在,整体贴出来效果还可以,总算心里踏实了!
2014.05.23 竣工阶段

整体贴出来效果还可以。
2014.05.29 竣工阶段
装毕业照:其实硬装完工有段时间了,一直没来晒毕业照,总在安排剩下的一些电器安装。今天闲一点了,就赶紧上来补发一个,水果机拍的,效果不好,等软装搞完,再用单反上全新的软装毕业照!
2014.05.29 竣工阶段

客厅。
2014.05.29 竣工阶段

过道。
2014.05.29 竣工阶段

厨房移门。
2014.05.29 竣工阶段

厨房内景。
2014.05.29 竣工阶段

阳台。
2014.05.29 竣工阶段

榻榻米房。
2014.07.09 入住阶段
全套的仿HarborHouse家具,昨天终于全部送过来了,整体用料很不错,但细节上处理的还是不行,毕竟一分价钱一分货,这样的做工也算对的起价格吧。摆在家里说出去都是行货估计也有人信的!
2014.07.09 入住阶段

全套的仿HarborHouse家具,整体用料很不错。
2014.07.09 入住阶段

次卧。
2014.07.09 入住阶段

主卧。
2014.07.09 入住阶段

主卧衣柜。
2014.07.10 入住阶段

吸甲醛绿色植物进场。
2014.07.10 入住阶段

在此,非常感谢装修公司赠送的绿色植物,还送了整整9盆,正好利用过来吸吸房间的甲醛,真是有心的好公司啊!给力!!!
2014.07.12 入住阶段

网购的主卧装饰画,挑来挑去还是这套最好看,放床头,大小正合适。
2014.07.13 入住阶段

客厅。
2014.07.17 入住阶段

在某宝上淘到的Route 66入户地毯,非常不错哦!
2014.07.18 入住阶段
人生短短数十载,要做的事情很多很多,然而能坚定自己的方向并为之奋斗,不失为一桩幸事。秉承自己的梦想,哪怕付出再多的代价乃至生命,也不枉来这世上走一遭。在这充满生机和艰险的人生里,我们应下定决心做一只逆流而上的“鱼 ”,即使会瞬间冻成“冰鱼”。为了自己的小家,为自己的人生努力奋斗吧!
如果你还有更好的案例或攻略,或者有什么和小美一起聊聊的,欢迎回复或者关注最美装修微信一起吐槽。给我们投稿也是非常欢迎的!
更懂装修,更多好文章!
关注装修界最牛号:“最美装修”
微信号:zuimeizhuangxiu