
鼓楼医院南扩项目位于南京市中心地区,基地面积为37,900㎡,总建筑面积达230,000㎡,是集住院,门诊,急诊,医技,学术交流等的综合性医院扩建项目。2003年开始设计,2012年竣工运营。
▼建筑外观

灵感源于中国传统文化中对医院一词的解释。西方语言中源自拉丁文的hospital一词最初意思是召集客人,而在在中国传统文化中,“医院”就是“医疗的院落”。花园是外部世界与家的界限,走进了花园也就隔绝了外部世界的烦扰,身心便得以放松。将医院花园化,不仅具有感官上的美感,更重要的是带给人心灵的抚慰。
▼医院入口路径

从六个大庭院,到三十余个采光井,再到每扇窗前的一抹绿色,花园渗透到建筑的每个细部。设计者将传统意义上的花园解构为细小的单位,编织成建筑的表皮肌理,整个系统立体而丰满,使医院成为了花园的载体。而花园则无处不在并触手可及。
▼医院全景

▼花园轴线

▼鼓楼医院北庭院

▼将医院花园化

▼立面夜景

医院是现世和彼世间的连接点,是生命起始与终结之所。鼓楼医院是1892年由传教士建立的教会医院,设计者试图回归这个传统,简洁纯净的设计让医院如教堂一般,成为与信仰沟通的场所。大量庭院和日光井的采用以及层叠通透的花园立面保障了充足的自然光照,给人宁静安详的抚爱,处处充盈着教堂般的诗意。
▼层叠通透的花园立面

▼室内水景

▼无处不在的日光井

▼教堂般的住院部内庭

▼病房窗景里的*京大南**学

▼北庭院芦苇塘中的静思

乳白色的磨砂玻璃,则在解决室内采光问题的同时将阳光过滤得更为柔和。针对南京地区夏季闷热的气候特点,立面设置侧向的通风,有效带走表皮积热,大幅降低了能耗,成为名副其实的绿色节能医院。
▼磨砂玻璃带来柔和光线

▼室内立面

▼花园立面外观



模组化设计即合理分配了内部医疗功能,又方便了医院在运营中的调整和成长。由模组化设计所带来的批量标准采购使得结算造价最终控制在5300RMB/㎡,成为当代最节省造价的医院典范。
▼医院内部空间

▼会议中心


▼走廊

▼病房

鼓楼医院是闹市中的医疗之岛,也是向每个市民开放的治疗花园。
▼中山路看鼓楼医院的花园立面

项目图纸
▼场地平面图 ©瑞盟设计

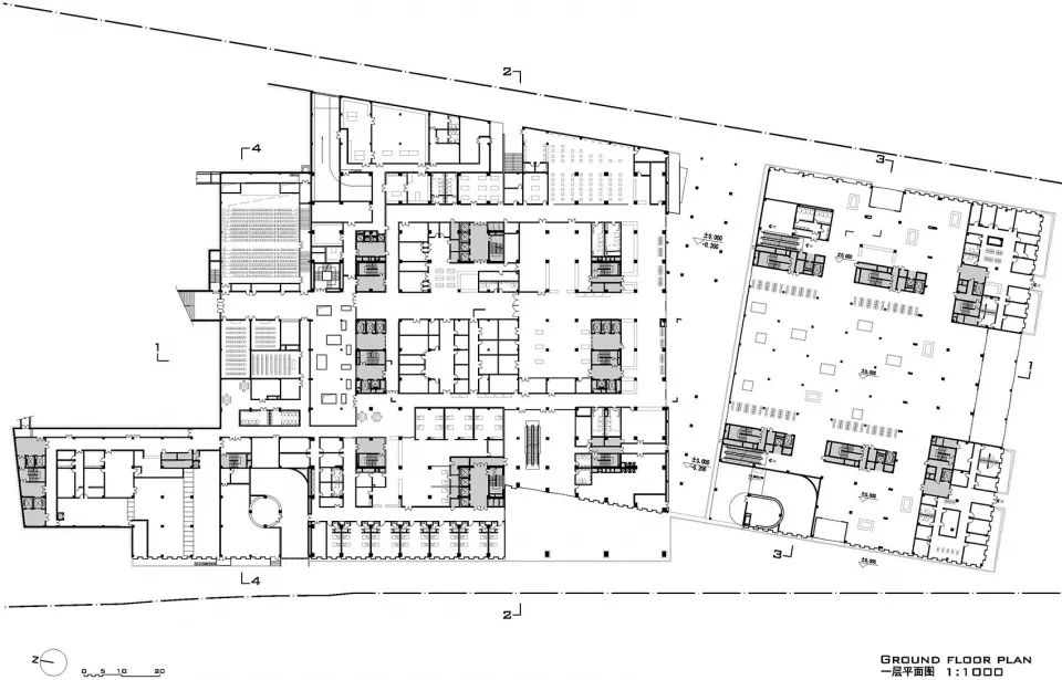
▼一层平面图 ©瑞盟设计

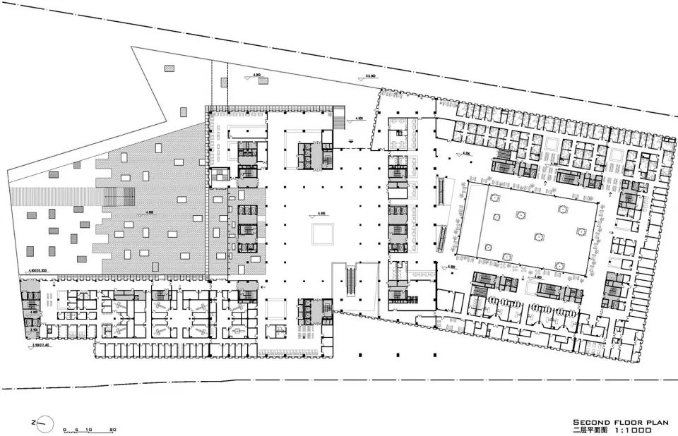
▼二层平面图 ©瑞盟设计

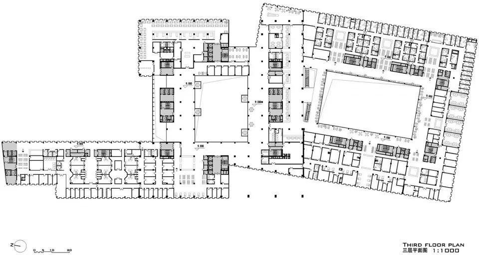
▼三层平面图 ©瑞盟设计

▼剖面图 ©瑞盟设计

▼细部 ©瑞盟设计

项目名称:南京鼓楼医院
设计方:Lemanarc SA 瑞盟设计
公司网站:www.lemanarc.com
联系邮箱:info@lemanarc.com.cn
项目设计 & 完成年份 2008
设计完成于2008,项目于2012年建成并投入使用
主创及设计团队:Vincent Zhengmao ZHANG张万桑,Daniel Pauli,马戎,Anja Schlemmer,Rolf Demmler, Dirk Weiblen, Bjorn Anderson,Dagma Nicker, 崔晓康, 冒钰
项目地址:中国南京市中山路321号
建筑面积:230,000 m²
摄影版权:夏强
获奖信息:
2013 英国世界建筑新闻奖 医疗设计项目 优胜奖
2013 World Architecture News WAN Awards
2014 鲁班奖
2014 Lu Ban Awards