上海同济大学附属东方医院 | Lemanarch SA



该项目是对位于浦东区陆家嘴的东方医院的改造项目。扩建后的新楼位于旧楼西侧。建造面积81802平方米,项目完成后医院床位将达1200个。这个扩建项目不但实现了新、老建筑的无缝衔接,同时也将医院的运营效率提高到了最大。医院内严谨的医疗功能式布局,是机器时代现代医院不可逾越的特征,也是现代医院设计研究的永恒主题。如果说对于陆家嘴金融中心来说时间就是金钱,那么在医院,时间就是生命。提高医院运行效率需要紧凑的空间布局,所以这次的设计目标是让让各个部门之间达到距离最短、关系密切。东方医院改造项目在这样的建筑高度下追求着最大的经济效益。经过仔细计算,在建筑红线允许的条件下,最大建筑面积约为2000平方米,这为新建筑提供了足够的可用空间。新建筑的结构框架形态的设计灵感来源于中国传统的灯笼骨架。建筑立面的玻璃材质同样也尽可能做得像灯笼上的纸一样,既保证了室内的自然采光,又保持了建筑的纯粹感与轻盈感。从建筑内部延伸而出的窗户,让建筑立面变得优雅且有活力。手风琴形的建筑表面不但为建筑提供了遮阳、通风和节能的功能。同时,它也为花卉与植物围合出了新的空间,并让它们相互交织,并延续至水平花园系统中。东方医院的新楼不是病人与外界之间的柏林墙,而是象征着生命与希望的绿洲。这个天然的保护屏障有效地降低了周围噪音污染,将医院与陆家嘴地区的嘈杂环境分隔开来。整个东方医院就像一个花园医疗村,自成一体,独立于陆家嘴繁华的金融圈。被花园环绕的绿色植物不但是生命力的象征,同时也对人们传达着生命的希望。

上海同济大学附属东方医院外部实景图

上海同济大学附属东方医院外部实景图

上海同济大学附属东方医院外部实景图

上海同济大学附属东方医院外部实景图

上海同济大学附属东方医院外部夜景实景图

上海同济大学附属东方医院外部夜景实景图

上海同济大学附属东方医院外部夜景实景图

上海同济大学附属东方医院内部实景图

上海同济大学附属东方医院内部实景图

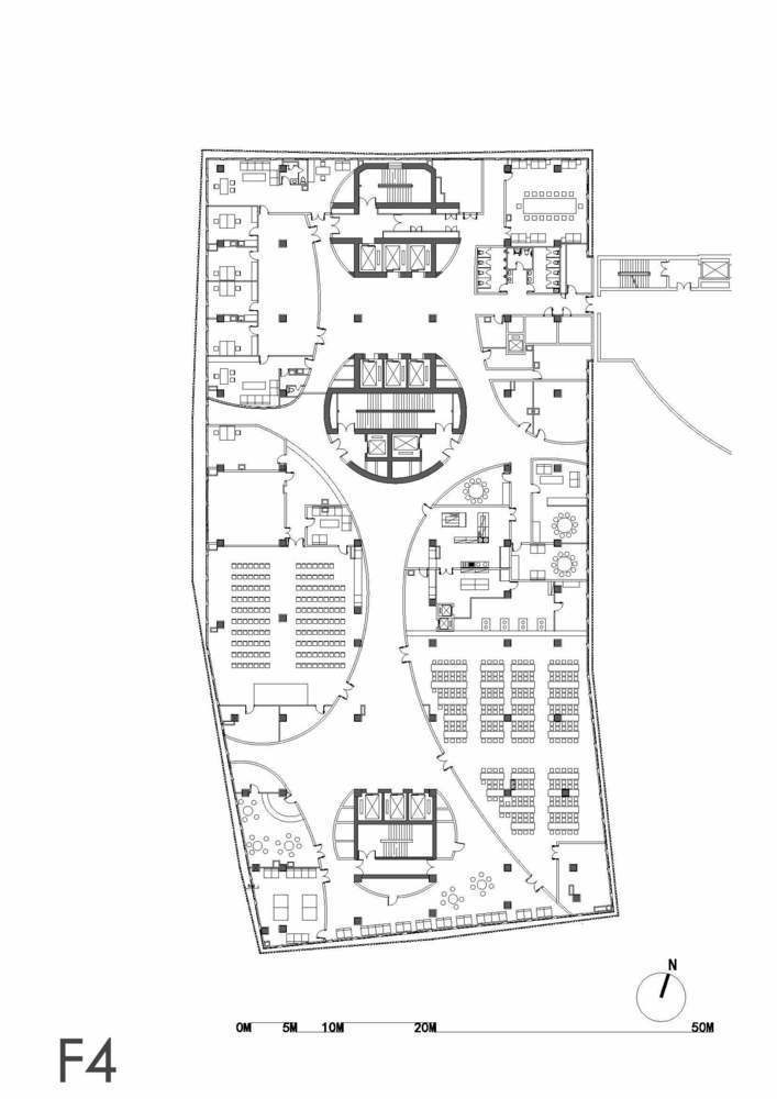
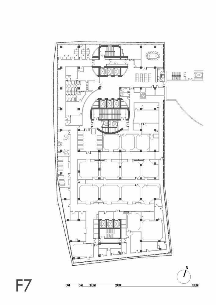
上海同济大学附属东方医院平面图

上海同济大学附属东方医院平面图

上海同济大学附属东方医院平面图

上海同济大学附属东方医院平面图

上海同济大学附属东方医院平面图

上海同济大学附属东方医院平面图

上海同济大学附属东方医院平面图

上海同济大学附属东方医院平面图

上海同济大学附属东方医院平面图

上海同济大学附属东方医院平面图

上海同济大学附属东方医院轴测图

上海同济大学附属东方医院立面图

上海同济大学附属东方医院立面图

上海同济大学附属东方医院剖面图

上海同济大学附属东方医院剖面图

上海同济大学附属东方医院立面图
内容转自:梅饮雪飞凤
©版权声明:平台尊重作品版权,精选作品均已注明作者和来源,网友分享作品属于原作者所有。若涉及版权问题,请及时联系我们删除或修改。如需转载、链接、转贴或以其它方式使用本稿,须注明来源作者。