
汉京半山公馆位于深圳市南山区前海中心小南山,以半山的姿态坐拥良好的山海景观,享有城市无可复制的清丽舒适。设计师李玮珉希望延续这一感知,呈现现代生活向往的样子:简约形式、艺术表达、人文气质、优雅都市。

深圳汉京九榕台别墅,并不是他与项目的第一次合作,但较于之前的7#B样板间,6#F别墅在面积和采光方面的自身条件相对不利,所以选择‘解构重组’:再设计梳理整个空间流线,尽可能地引入光,流通灵动之余,重在宁静与平和。

设计不是一种技能,而是捕捉事物本质的感觉能力和洞察能力。

1F会客厅,设计师将原有空间中左右两侧的厨房和餐厅移至地下一层,通过这一改造框定出宽敞大气的空间氛围。此外,配合建筑本身两面高的玻璃帷幕、6米挑高天花、以及主墙面一整面白色花纹石材和金属,令阳光有的放矢,通透尽显。

“当阳光照在白墙上,更适合沉浸在自己的世界里,流露出最真实的状态。”他说。这是‘居’的第一层要义。

原有的厨房餐厅空间,被设计为会客吧台区和休闲区,让其具有足够的开放性,即能满足多人的会客功能,又能让别墅的主人赋予它戏剧性的变化。




2F的起居间和阅读区宛若架构在一层挑空中的方格子,赋室内一种建筑感。站在通透的落地玻璃帷幕旁,可以欣赏高挑空的会客厅;而百叶帘的存在又使这种对应关系含蓄起来。

午未时候的阳光,澄黄一片,由窗棂横浸到室内,晶莹地四处射。我有点发怔,看它洁净地映到桌上时,感到桌面上平铺着一种恬静,一种精神上的豪兴,情趣上的闲逸。
——林徽因《一片阳光》

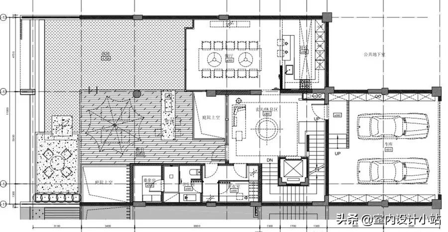
-1F拥有餐厅厨房、车库、更衣间和户外泳池,功能区域多且又处地下,于是重组和采光便成了一切设计的基石。比如在厨房上方增加了到达1F庭院的自动天窗,当阳光洒下便会有律动的光影。


这种光影的惬意在餐厅及泳池区也有体现。二者仅由一段玻璃幕墙相隔,另有泳池的水波纹映射到餐厅天花上,折射出的光影变化。而拥有半户外休憩平台和无边泳池,也成了这个项目的最大亮点。

烤箱水平嵌入橱柜,接缝光滑,犹如一体。无论是精致设计的爱好者,还是资深美食家,都创造一种极佳的烹饪体验。


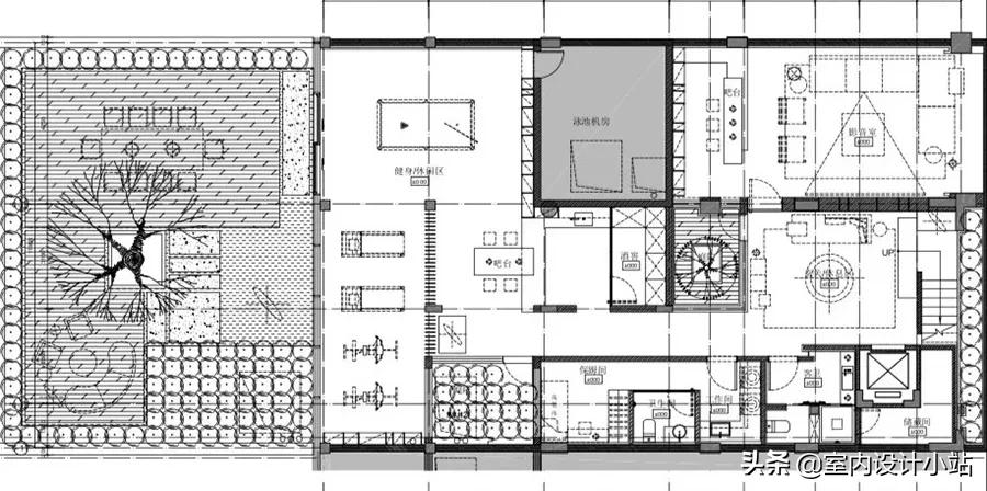
-2F为整栋别墅活跃性最强的一层,品酒、健身、娱乐汇聚一体。具有恒温条件的酒窖,超强视觉体验的影音室,各式各样的健身器材。

浮世喧嚣,或许我们需要一处简单的美好,可以卸下各种社会角色,让所有的浮华,都变成清欢。对比客厅‘当阳光照在白墙上’,这里是设计师认为的关于居的另一层要义,一种回归。

4F整层都是主人的使用空间,主打舒适以及安静私密。主卧室空间布局上有所变化,他将更衣间和书房合并在北面的房间,南面则单为居住,更加纯粹。

主卧室床头背景采用浅米色调的皮革结合金属铜与浅色橡木的床背板,平添一种奢华简约之感。


就好像老舍先生理想中的房子:不需奢华,空间大就好,有时候简素也是一种美。


主卧卫生间同样采用浅色系的材料,为了空间更为宽敞明亮,也为了营造氛围放下内心,安放灵魂。

“我们采用现代简约风格,让所有的细节看上去都非常简洁,大气。从简单舒适中体现生活的精致。”

但在3F的客卧区,以丰富别墅空间的质感,呈现静默的美感,创造一个含蓄内敛的生活氛围。其实,最好的家是清风明月为友的心安处,与自然为邻,却也活在生活里。

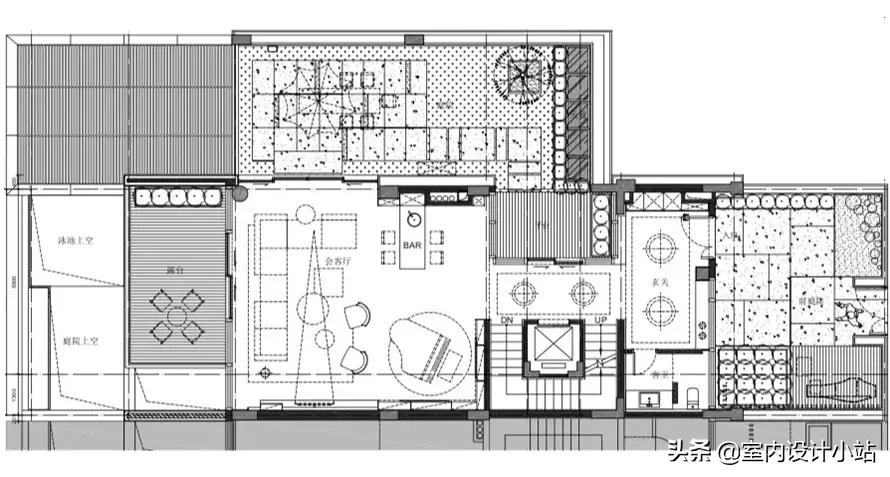
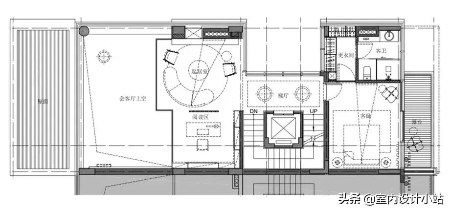
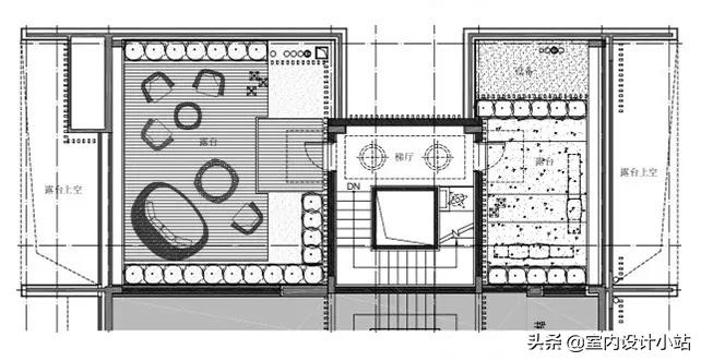
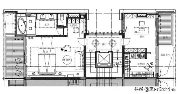
平面图

△1F设计平面图

△2F设计平面图

△2F设计平面图

△3F设计平面图

△4F设计平面图

△-1F设计平面图

△-2F设计平面图
项目名称:深圳汉京九榕台别墅6#F户型样板房
开发建商 : 汉京集团
项目地点 : 深圳