能温暖人心的家,绝不是靠豪装来实现。快节奏的生活给人带来压力,人们开始向往轻松自然的居家环境,以寻找内心的舒适与宁静。简约的装修似乎更符合现代人的需求,这次分享的是一套50平的两居室案例,屋主坚持素色主义,虽说装修不华丽,但简洁大方,居家氛围超轻松,进门一眼就喜欢上了。(图源:梵之设计骆健)

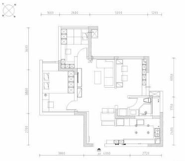
平面布置图,50平的两居室格局。

入户进门,定制组合式鞋柜,满足对鞋的收纳,同时也拥有换鞋凳,进出换鞋更加便利舒适。鞋柜中间和底部掏空,增加隐藏照明设计,保持进门舒适与空间整洁。

干净整洁的厨房空间,米白、原木和浅灰色结合,简约大气有质感。定制橱柜极大的满足了厨房收纳需求,吊柜底部增加了照明设计,避免背光操作。嵌入式冰箱与隐藏门把手设计,提高空间美观又不影响实用性。

客厅坚持素色主义,简洁自然氛围很轻松。没有过多的装饰造型,一切简单的不能再简单。舍弃常见的布艺窗帘改用百叶帘,空间更显简约美,灵活的控光效果,可以营造不同的居家采光氛围。


客厅一分为二,一半客厅一半书房。半墙隔断设计,既保持了功能区的独立,又不影响空间采光通透。利用横梁安装吊灯,不仅为书房提供照明,还可以当作沙发背景装饰。

客厅看向全屋,坚持素色主义,色调高度统一。客餐厅一体吊顶,延伸视觉空间,让原本紧凑的空间也不那么拥挤。简洁的家具布置,占用空间少,提高空间通透。

地面满铺地板,自然的木色与天花板白色形成呼应,简洁自然。利用吊灯的不同,区分各个功能区。


简易实用的餐厅,没有多余的装饰物品,一套木质高脚桌椅,提高空间通透效果。拆除部分墙体,扩大空间感,让空间不那么闭塞。

合理利用过道内凹空间,布置了洗衣机和烘干机,剩余的空间设计成储物柜,可以收纳洗衣用品和一些居家杂物,一点空间也不浪费。

卫生间空间有限,因此舍弃玻璃淋浴房设计,采用防水条和浴帘做灵活隔断,空间更显开阔。悬挂式浴室柜与镜柜结合,实用又提高卫生间收纳。


卧室整屋定制,白色和原木色为基调,营造自然舒适的睡眠环境。没有安装床头灯,而外做吊灯反光灯槽,见光不见灯空间更美观,暖色的光源夜晚起来也不会刺眼。床位定制衣柜改善卧室收纳,简易桌子充当梳妆台,实用又省空间。


次卧同样的整屋定制,让有限的空间发挥最大的利用价值。榻榻米设计不仅满足了睡眠需求,还提升了些许收纳空间。简易的书桌和吊柜设计,满足了日常办公和学习的各种需求。柜子底部做了补足照明设计,暖色的光源多了一份温馨舒适感。看完这套50平的两居室,发现简单素色装修还是不错的,简洁自然居家氛围超轻松。