地 址:俊发九夏云水
风 格:清新小美式
设 计师:赵国娟
面 积:241m2
造 价:60万
设计师:赵国娟
设计理念:热爱与诚心,是我信奉的真理。将所有生活的细节与琐碎用设计呈现家的美好和仪式感。


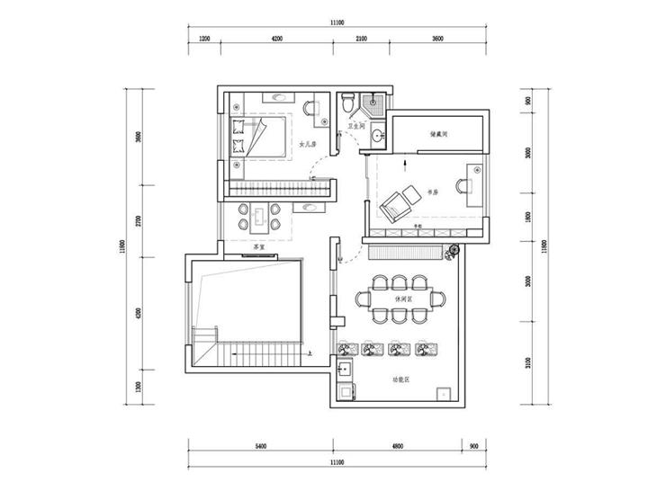
平面图展示
本案的小美式风格用温和的颜色基调,强调空间的明亮清透,大胆鲜艳的色彩打造一个生机勃勃,自然舒适的空间,意在体现生命的生生不息和家庭的生命力。

小美式在一定程度上融合了美式的自然、单纯、个性化的特点,同时也避免了千篇一律的风格。

小美式可以说是现代美式风格的缩小版,甚至在一定程度上混搭了各种风格,以达到个性的特点,没有人喜欢撞衫,而小美式就能满足这一点。


小美式在装修上不同于其他风格,它重装饰、轻装修,硬装部分尽量简单,减少壁纸、墙围之类,吊顶也很平常,无论墙面、地面、门窗,大都以浅色为主,重点在后期的家具和饰品搭配上下工夫。

你必得一个人和日月星辰对话,和江河湖海晤谈,和每一棵树握手默语,和每一株草耳鬓厮磨,才能顿悟宇宙之大,生命之微,时间之贵,死亡之近。热爱与诚心,是我信奉的真理,不盲从,不跟随,保持真我和初心。
昆明家天下装饰,中国整装行业领先品牌。
致力于为您提供更优质的产品和服务!