独居的安全感,从买房开始。
对于大部分年轻人来说,都会经历租房生活,但总感觉少了一份安全感。本期女主,经历了7年的租房生活,从租房的第一天起就决定要攒钱买套属于自己的房子,终于在今年实现了这个目标。
虽说房子不大,只有38㎡,但也算在杭州有了“一席之地”。买这套房子时,女主已经花光了大部分积蓄,想要节省开销,装修就只能靠自己了。为了装好这个家,女主可谓是拼尽了全力,从设计规划到联系工人,再到购买材料,都是她一个人完成的,也太厉害了吧!

▲装修实拍图
//设计亮点//
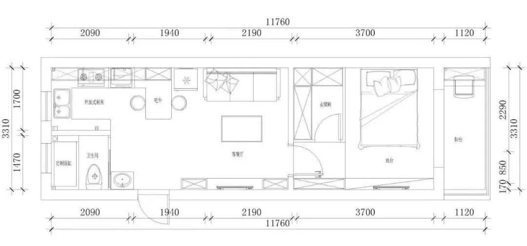
整屋面积约38㎡,是“一字户型”,采光和通风性都比较差。为了提升居住的舒适度和空间利用率,女主做了如下重点改造:
①客厅和卧室之间设置隔墙和移门,以划分动静区,既节省空间又能保证通透性;
②卧室隔出空间做衣帽间,来代替衣柜,以提升功能性;
③在阳台内规划办公区和晾晒区,营造安静放松的工作环境。

▲装修平面图
玄关
原本的入户门是最常见的“猪肝色”,和屋内的装修风格不搭,女主自己动手把入户门和门框改成了灰蓝色,并在门上贴了金色的『SUPER HOME』,营造回家的仪式感。玄关的右侧,是卫生间的外移洗手台,不仅保证了卫生间的干湿分区,也能方便女主每天回家后及时洗手。

▲玄关实拍图
入户门的左侧,摆放了一个黑色的中古风鞋柜,搭配金色的拉手,质感十足。柜子的高度约1.2米,台面空间刚好可以用来摆放一些装饰品,手机、钥匙、钱包等小物件也能随手放置。墙上安装了装饰画和置物架,扩充了垂直收纳空间,美观又实用。

▲玄关实拍图
客厅
客厅面积不大,为了减少拥挤感,在挑选家具时,女主特意选择了一些小尺寸的款式。客厅的亮橘色皮质沙发,尺寸只有1.4米,紧挨两侧墙壁摆放,剩余的空间刚好放下置物架和冰箱。沙发左侧的墙面上,安装了两排原木置物架,上面摆放着唱片、绿植和音箱,增加了空间的层次感。

▲客厅实拍图
43寸电视机悬挂在墙面上,插座和电线都隐藏在电视机的后面,视觉感更加整洁。电视机下面没有放电视柜,而是用黑色的隔板代替,可以节省使用空间。

▲客厅实拍图
客厅和卧室之间,安装了吊轨式谷仓门,颜色和入户门保持一致,和普通的平开门比起来更节省空间,而且隔音效果也不错!

▲客厅实拍图
餐厨
餐厅和厨房是开放式设计,和客厅在同一个空间内,保证了公共区域的采光和通透性。餐桌是由厨房的橱柜延伸出来的,做了类似吧台的设计,平时一个人用餐也足够了。女主特意把餐桌吧台侧面的墙壁,刷成了墨绿色的防水漆,和餐布颜色相同,提升了用餐的精致感。

▲餐厨实拍图
餐桌上方安装了两盏复古风吊灯,是女主从京东上选购的,款式非常漂亮。吊灯打开后,会散发出柔和的暖黄色灯光,在纯铜配件的映衬下,点亮了浪漫的用餐氛围。

▲餐厨实拍图
为了方便日常下厨,女主在厨房做了高低台的设计,烹饪区的台面比其它部分要低10公分,避免了弯腰洗菜和架着胳膊炒菜的窘境。灶台的上方,定制了一组白色的吊柜,在不影响采光的前提下提升了厨房的储物空间。

▲餐厨实拍图
女主在厨房的另一侧墙面上,整齐地安装了洞洞板、置物架和一字型挂杆,通过垂直收纳,把调味料和厨具一网打尽,有效释放了操作台面的空间。

▲餐厨实拍图
吊柜内部空间,借助收纳盒、置物架等物品,把食材、锅铲和杂物都整齐地排列放好,看着就非常治愈,日常拿取也很方便。平时,女主很喜欢自己做饭,晚上一般会煮粥喝,比较养胃。

▲餐厨实拍图
橱柜的抽屉内,借助白色的分隔板,把抽屉的内部空间进行分隔,有效提升空间利用率。隔板是PVC材质,可以根据需求自由调整长短,使用起来非常方便。

▲餐厨实拍图

▲餐厨实拍图
主卧
主卧是女主休憩的空间,私密安静,自带一个独立的大阳台,采光非常好。室内的主色调以橘粉色为主,搭配墨绿色的床品和窗帘,营造浪漫舒适的睡眠环境,也能给女主带来满满的安全感。

▲主卧实拍图
主卧的床采用了定制设计,取消了床头靠背,直接做了一个与墙面同宽的黑色背板造型,厚度约10cm,台面的空间可以用来放一些小物件,代替了床头柜的功能。背景墙的两侧对称安装了金属色壁灯,中间悬挂着两幅装饰画,以丰富卧室的层次感。

▲主卧实拍图
床是榻榻米结构,下方有储物空间,里面收纳了一些过季的被褥和衣物。由于女主家地处南方,为了避免榻榻米内的物品发霉,她会提前用密封袋把衣物和被褥都包装好,然后再放进去。

▲主卧实拍图
床尾空间,简单地布置了穿衣镜、挂钟和装饰品,为女主日常生活带来了方便。

▲主卧实拍图
衣帽间
主卧内的衣帽间,也是全屋设计的一大亮点。女主把主卧分割出一部分面积,用来做独立衣帽间,并用玻璃半墙和玻璃门做隔断,兼顾美观和通透性。

▲衣帽间实拍图
衣帽间内部是开放式设计,内部按照女主的穿衣需求,把衣物按照颜色、种类整齐地悬挂起来。剩余的墙面空间,借助铁艺网格做垂直收纳,可以挂一些女主的包包和帽子。

▲衣帽间实拍图
阳台
阳台属于赠送面积,大概有两三平米,虽然面积不大,但也为居住增加了不少实用的功能。女主在阳台内规划了隐藏式晾衣架,方便日常晒衣服;并在阳台的侧面,定制了书桌和书柜,营造安静独立的工作环境。

▲阳台实拍图
办公区的墙面刷了天蓝色的墙漆,是女主最喜欢的颜色,能让她心情放松愉悦。除了吊柜和书架板以外,女主还特意买了一张白色的洞洞板,借助墙面空间来收纳文具。窗前安装了白色的百叶帘,质感轻盈,女主可以根据需求控制自然光的亮度。

▲阳台实拍图
卫生间
卫生间的面积非常小,不到2㎡,为了确保能够正常使用,设计师把卫生间的洗手台做了外移设置,同时也能实现干湿分区。内部配色以简洁的白色为主,墙面铺着浅灰色纹路的墙砖,搭配金属色的五金配件,让小空间也能呈现出高级感。

▲卫生间实拍图
马桶和淋浴之间用透明玻璃做隔断,可以避免溅到马桶上,利于女主日常清理卫生。

▲卫生间实拍图
【本期总结】
回顾本案,整屋设计紧凑精致,在有限的38㎡空间里,实现了最大化的空间利用率,值得学习!如果你也喜欢本期内容,欢迎点赞收藏!
#生活好物分享##梦想点亮生活#