什么样的设计可以称为“神设计”?在我看来,除了要满足居住者的需求之外,对空间的细节优化也要到位。也只有这样,新房装修好之后,才能更加贴合居住者的生活方式。
本期带来的这套案例,就可以毫不夸张地称为是“神设计”,在空间面积仅60㎡的情况下,不仅解决了三代人的居住需求,在收纳规划,居住体验这块,也优化的十分不错。同时,温暖的空间氛围,还让人一进门就能感受到家的温度,非常值得我们来学习。
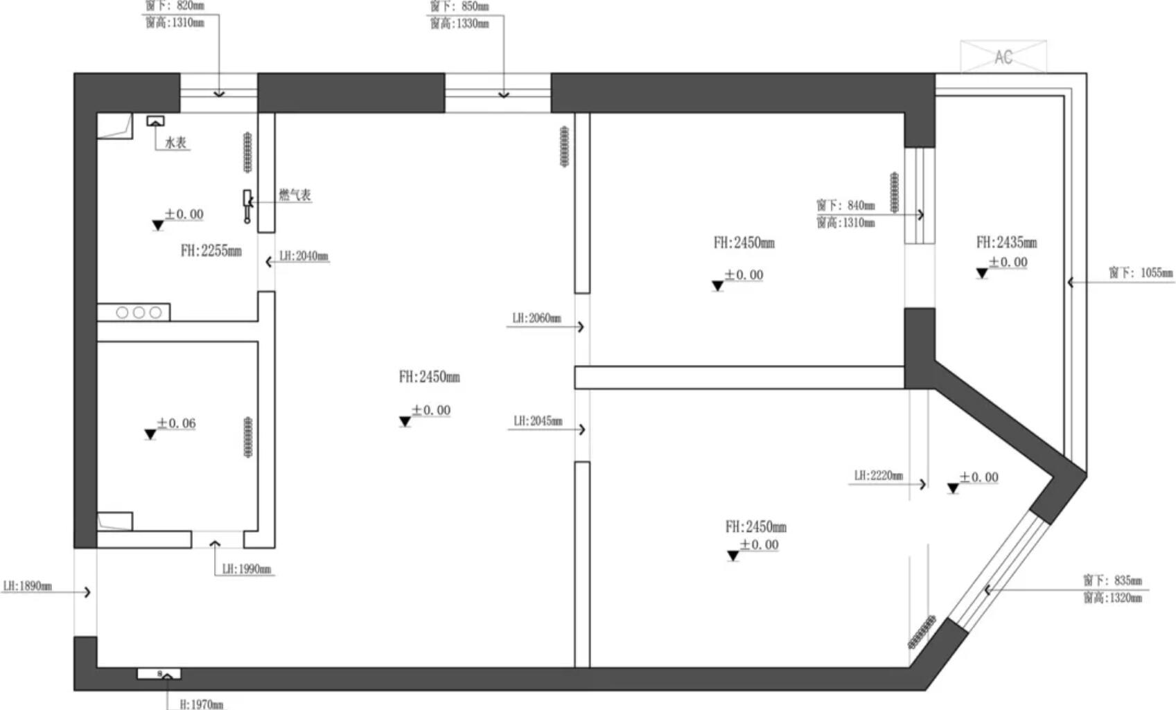
平面结构图

本案坐标北京,两室一厅一厨一卫的格局,由于屋主夫妇有二胎的计划,需要老人偶尔过来帮忙,所以至少需要满足5口人的居住需求。因此,在原空间只有两间卧室的情况下,显然是无法满足居住需求的。同时,空间本身存在的硬伤也非常多。比如缺少收纳空间、厨卫面积太小,客餐厅通风、采光差等等。
平面方案图

结合现有的空间情况,布局这块也做了比较大的调整。比如儿童房与客餐厅对调,并重新分配空间面积,从而解决掉客餐厅采光、通风差的问题。同时,异形阳台采用榻榻米设计,为空间延伸出第三个房间,解决老人的居住需求。
在厨卫改造这块,则将厨房做了扩大处理,并做了分离式设计。这样既能提高空间的使用面积,也能彻底地解决油烟问题。而卫生间在扩大之后,则采用了双动线设计,以便最大化提高空间的使用率。
玄关

当空间结构重新调整之后,进门右手边则设计了整面墙的储物柜。这样既将空间面积充分利用了起来,也可以在功能上做到各自独立。比如隔层抽屉与高柜组合的玄关柜,就满足了日常鞋子的收纳需求,并保证了使用的舒适性。
而将柜体底部悬空,以及中间位置镂空,并暗藏上暖色的灯光,不仅在视觉上做到了轻盈,又为空间增添了一抹温度,从而让回家更有归属感。

紧挨着玄关柜,就是一组功能柜,高柜底部内嵌洗衣机,上面用来储物,完美兼具了家政区的功能。而旁边的矮柜,在预留插座之后,也满足了水吧台的使用功能。同时,为了不浪费柜体面积,柜体全部用抽屉来设计,也是相当的细节化。
客餐厅

客厅看向入户视角,整体采用纵向的结构来改造,相较于之前的横向客餐厅,无论是空间感,还是通风采光,都得到了很大的优化。
定制结构的沙发,搭配上一张1.6米长的餐桌,既满足了全家人的用餐需求,也瞬间让客厅形成了多功能性。比如亲子、手工、活动、休闲、接待等,都可以在这里实现。

原异形阳台,则是采用榻榻米来设计的,并且还给两边都打上了储物柜。这样一来,既满足了老人的居住需求,平时也可以用来储物,以及给孩子玩耍。

都说电视的使用率越来越低,但在家里有老人的情况下,还是必不可少的。而旁边一架钢琴的存在,也立马让空间多了一些娱乐气息。

餐厅看向阳台视角,空间采用无主灯设计,可以让氛围表现更加温柔、舒适。而将阳台上的折叠门帘拉上之后,也彻底保证了隐私。
主卧室

考虑到主卧外面有一个阳台,所以在原有的空间结构基础上,稍微做了一些缩小处理,以释放出部分面积弥补儿童房。空间布局依然以榻榻米为主,充分利用每一块的面积。


阳台与卧室连通,在打破空间边界的前提下,最大化为室内引入采光。同时,在功能定位上也十分的丰富,满足了办公、阅读、休闲、健身、以及日常晾晒等功能。
儿童房

儿童房采用高架床设计,上面用来休息,下面用来储物,既有趣味又有强大的收纳能力。同时,橘色与白色的结合,也让空间彰显出了活力与童趣。当然,临窗设计的书桌,也为后期保留下了基本的学习功能。

厨房

厨房在原有的空间结构上,也做了扩大处理,并以分区的结构来设计的。内部为日常的炒菜区,可以彻底隔绝油烟,外部则为梳洗区,并与客餐厅实现了贯通。

卫生间

卫生间设计算是全屋最大的亮点了,空间一分为二,一边为梳洗、淋浴区,一边为梳洗、马桶区。这样一来,既让两块空间各自保持了独立,也做到了灵动自由。当然,最重要的还是在家庭成员多的情况下,改善了早起梳洗时的局促性。

整个案例看下来,最让人惊喜的就是空间布局了,不仅做到了合理,人性化,还完全没有一点小户型都普遍存在的拥堵感。虽说效果表现比较一般,但在空间布局比较小的情况下,用氛围感来弥补,也算是一个很不错的处理手法了。对此,你们怎么看呢?
图源:设计师Ryan