会“呼吸”的美宅,大量木作装饰,把岁月和大自然沉浸在生活里
房主一直以来都是相当憧憬原始自然的生活状态,也因此希望在自己的家中也融入更多的自然生态的元素。而在看之前的类似设计的过程当中,房主忽然有了灵感,想要用一些原木材料有一些斑驳痕迹的质感元素,去对空间进行妆点。设计师对这个想法也很感兴趣,在两个人的共同努力之下,这个生态自然家设计出炉。
案例: 93平简约自然风空间
居住成员: 三人
房屋面积: 93平
房屋类型: 三室
空间格局: 客厅、餐厅、厨房、卫浴、书房、阳台、卧室×2
主要建材: 石材、皮质、藤编地毯、木作等
预算: 20万以上
设计师: 王鲁平
本案在木作元素的使用上是相当多的,可以说是贯穿始终的,但是深浅不同和纹路多变的木作材料也为空间带来了不同的层次表现。
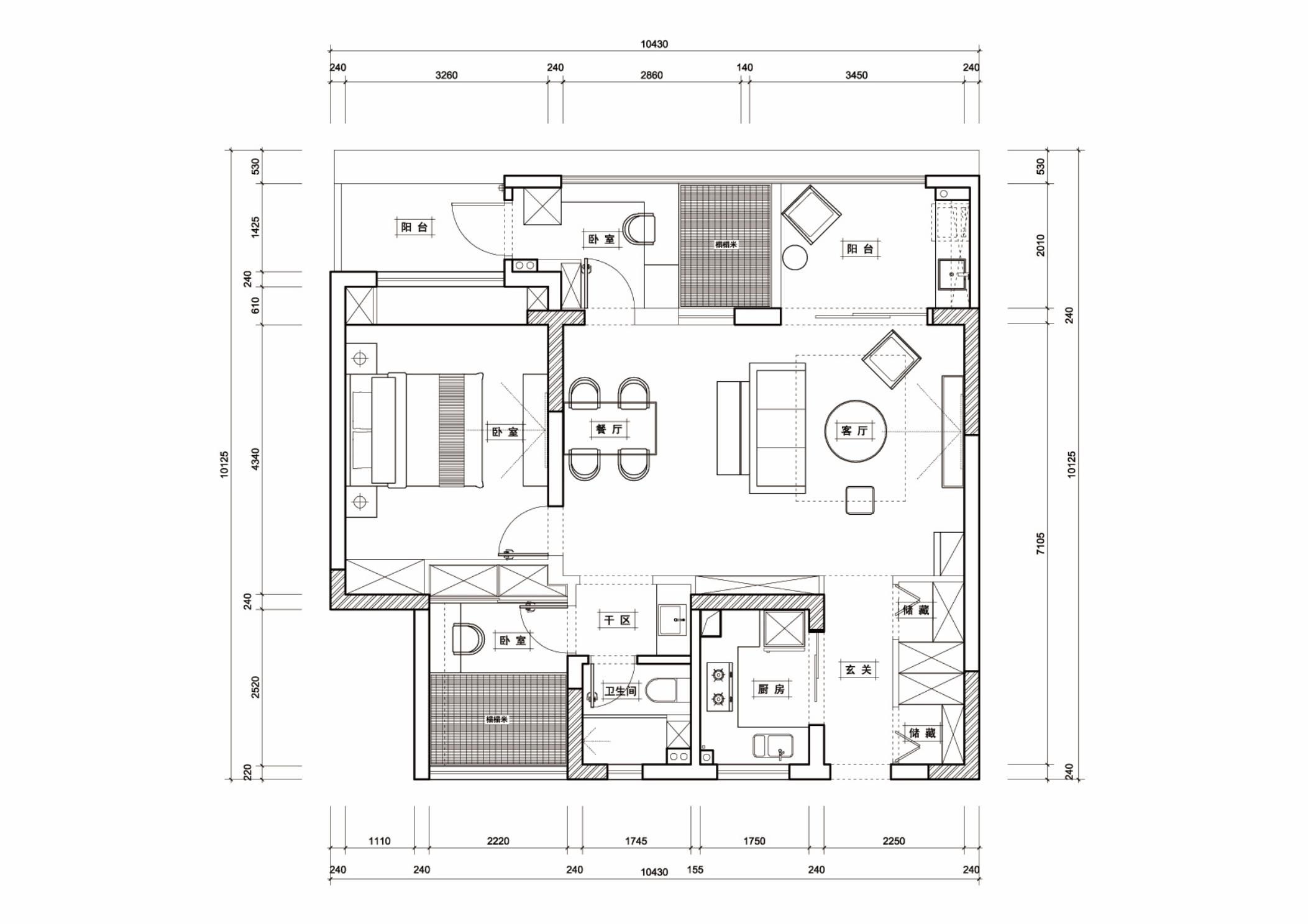
【户型图】

房间原本是一个大三室的设计,设计师将之前相连的主卧和次卧之间的墙面敲掉,将次卧空间改造成为餐厅,让房间的空间分区更加规整。同时将原本的餐厅空间改造成为储藏室,利用赠送空间作为另一个机能性空间。
【玄关】


设计亮点:百叶门
从门口一进来就是一个长走廊空间,地面选用菱形彩色的花纹瓷砖。一侧的墙面是两个白色的百叶折叠门,其实这里是通向两个储藏室的门片,百叶门片有比较好的透气性。在进门的第一个储藏室当中就是一个换鞋的场域。两个木作的鞋架,一边的高凳既是鞋架同时也是换鞋凳。
【客厅】


设计亮点:自然简约
客厅的设计其实是比较简单一些的,整体运用了很多原木色的木作材料,也因此在沙发茶几这样的家具选择上就偏向于深色系更多一些。纯黑的沙发加上大理石面的茶几,深沉一些的配色,反而和大量的木作材料起到一定的中和作用,让整体感受更加和谐一些。


设计亮点:造型柜
客厅当中的造型柜设计比较多而且也是用木作材料打造的,像是位于电视下面的电视柜还有一边的半高储物柜和靠墙面放置的大型的一体酒柜。老松木的柜体背板加上水曲柳的实木柜门,木作纹路的差异也为空间带来不同的变化效果。
【厨房】


设计亮点:清新砖面
厨房的墙面用薄荷绿的九宫格砖进行铺贴,和原木纹路的橱柜门片形成一定的对比效果,在沉稳的空间当中增加了一些活泼跳跃的气息。
【餐厅】




设计亮点:轻薄桌椅
餐桌椅都选择了较为简约轻薄的款式,让整体空间显得格外的通透,借着从书房的玻璃门片和窗户透过来的阳光,让整体空间都显得格外的明亮轻盈。
【卫浴】


设计亮点:三室分离
卫生间采用了三室分离的设计,这也是一种比较好的划分干湿的设计方法。台盆柜的柜面是一整块的实木打造的,下方悬空比较方便打扫。淋浴区和如厕区都用了白色 的小方砖进行铺设,让空间显得格外的明亮干净。
【卧室】





设计亮点:沉稳意境
卧室选用了大量的沉稳木作材料打造擦护功能组和柜体,空间的整体氛围显得格外沉稳厚重。但是绿植的加入却也为空间带来了更多的活泼生机,注入了一些轻灵的气息。


设计亮点:儿童房
次卧的机能配置较为全面,这也是考虑到之后孩子长大的一系列功能需求,兼具睡眠、收纳、阅读为一体的空间。
【书房】



设计亮点:两用空间
书房不仅是男主人的工作场域,同时也可以作为客房去使用,对面的榻榻米能够让暂住的客人休息。
【阳台】



设计亮点:自然休闲
阳台用了大量的原木元素,打造了一个生态自然气息的休闲空间。
总结点评:
自然风的设计在这两年获得了不少的拥趸,这种更加纯粹简单的生活方式或许也是很多身居大城市当中的人们所梦寐以求的。
【文案编辑】目海居沐天