一、前言
每次在与亲友们聊天中提到家里新房装修,都说我这装修也太久了吧,都超过了一年。其实我和老婆也有讨论过原因,除了疫情3个月影响之外,就是我和老婆对房子都有比较复杂的要求:颜控+自动智能+强迫症+懒癌+养宠……

回想我们如此多要求,当初是很需要一个设计师来完成房子装修的,只是小城市很难找到合适的设计师,外地或者有名气的又请不起;收费便宜的“设计师”往往是绘图员,可能懂的东西还没你自己多。

最后自己和老婆只好边学边做,虽然踩了一些坑但目前整体还算满意。最近就趁着硬装完成软件进行之际,将自己关于全屋智能搭建的经历分享给大家,顺便将之前撰写的进行补充和更新,也希望能为有类似装修需求的朋友一些帮助、交流或参考。
二、智能家居
首先想明确的是你对新房的期望或打算是怎样的 ,毕竟每个人的想法都不太一样。 很多人买房只是为了投资或者拿来出租,或者家里有人想法和习惯比较传统,那智能家居可能不一定适合你。
“有人说智能设备用不来/不习惯——其实智能设备通常并没有剥夺原有传统的控制方式,只是让你有更多更便利的选择。”
说到智能家居就不得不提小米,小米在这10年的时间里,确实将自己的产品做到了各个行业和领域,智能产品的颜值、丰富度以及智能化也是在领域内最好之一。我在装修之前就明确了要做全屋智能,而我老婆算是一个米粉,所以在新房智能设备选择上自然是优先考虑米家。 不过近年多家品牌开始意识到家居家电智能化是未来的大趋势,不少品牌纷纷开始大力研发和发函其自家的智能生态和相关智能产品。

自己本不是米粉,没想到如今家中有如此多联入米家的设备(后期还会买不少),当一个个智能设备搭建成全屋智能家居之后,特别是房子比较大的情况*体下**验确实很香,颜值也在线。下文我就将它们分为灯光、家电两个部分进行分享。

三、智能灯光
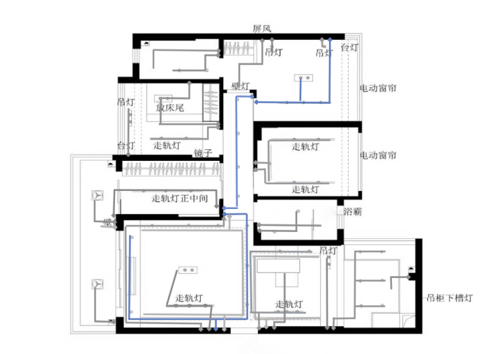
写文的时候我将家里所有的智能开关和智能灯光画了一下:

整个家的颜值其实都是需要较好的光线作为支撑的,自然光是由户型、天气等因素所决定已基本无法改变,所以说室内的灯光照明真的很重要。而灯光的控制则可以通过智能设备加入而变得智能化。 装修是越早确定方案,就越容易避开不必要的麻烦和浪费。我之前曾在硬装阶段分享过自己关于灯光、开关、水电、家具内容的文章,这里不再重复只做补充。
- 灯光现状
虽然当时也已经考虑到了智能灯光和智能开关,但实际情况还是有一些出入(考虑不周或产品换代升级)。

开关的选择我基本都是绿米的零火版本:D1单键、双键、三键以及S1面板开关。



家里采用无主灯的设计,由大量射灯、筒灯和灯带组成,射灯和筒灯都选择高显指的4000k色温,不过像我家偏现代的风格也可以用4000-5000k更白更冷的色温,3000-3500色温的灯比较适合偏日系/温暖风格的家庭,或者作为床头灯、餐厅灯这些区域。


我家灯带除了客厅与餐厅是主要照明之外,家中其他灯带的作用主要作为轮廓光、氛围灯来使用。比如在床底、窗帘盒、吧台、电视柜、衣柜内、展示柜、玄关柜、电脑桌等位置。

可以看到我后期还会购入不少的灯带,不过yeelight的灯带有个问题让我目前迟迟没有推进继续:像客厅使用的泛影色温调节版本,只能变压器接线使用,工作发热比较明显且灯带比较粗; 彩灯版本才有插头连接版本,虽然灯带自身也比较薄,但是彩灯版本所发出的灯光很难达或接近于到泛影白光版本,两者灯光始终有较为明显的色差,只能RGB而无法很好实现日常白光。 最近听大佬说几光的灯带表现不错,估计之后我也会少量购买一些进行尝试和比较。
86盒预留:我客厅原本是4路灯光,所以当时预留的2个86盒,选择2个绿米双键开关;后来绿米推出了三键开关,于是改成了1绿米3键开关+1yeelight旋钮开关(注意版本)专门控制yeelight灯带。

被偷工减料的零线:原本以为开关零火线、插座零火地三线是标配,后来在和很多装修群友交流的时候,发现不少地方的装修施工是默认不铺零线的(你发现或要求另说),装修的时候需要注意。就绿米的智能设备来说,零火双线的版本稳定性和价格都比单火版本要好。
双控还是智能灯:如果按传统灯光控制来说,一些地方会需要双控开关的布置,这样比较合理符合动线方便操作,比如入户门—走廊—卧室这样的动线。 而选择智能灯光则是将原有的双控变成了N控(手机、声音、感应、开门等),不过在电路上需要保持通电的状态,从而与双控的电线有所冲突。所以即便是按双控的铺线,最终双控的另一头的线也需要连接起来,从而造成一定的人工与线材的“浪费”。 所以确定要做智能家居的可以不用铺设双控线路,当然成本不高的话铺了也没事。

关于成本: 当然智能灯光相关的产品通常比普通的要贵,所以我们需要考虑是选择智能灯、普通灯、智能开关、普通开关的搭配。像我家基本大多数是普通射灯+绿米智能开关、少部分yeelight智能灯泡+智能开关或yeelight智能灯泡+普通开关:
1.绿米智能开关+普通射灯——智能调节每组灯光的开与关; 2.智能灯具+智能开关——不仅是调节开关,还可以调节灯的亮度、色温等,如果yeelgith智能灯连接普通开关使用,同样会涉及到前面提到的断电掉线问题,在使用过程中需要保持长期通电而失去物理开关功能,需要配合凌动开关才可以在保持通电的情况下,给你假物理开关的效果。
关于插座类型的选择:如果事先对用电设备做好统计的话,可以一定程度避免浪费。就我目前安装而言,感觉客厅沙发/卧室的四孔插座用得较多,而像厨房/电脑桌的五孔插座用得多一些。而像相对易坏的带开关插座和不支持快充的USB接口插座,我个人建议是少量配合使用。

四、智能家居——家电
正如前面所说,家里的智能设备主要都集中在米系产品上,一个米家APP控制所有固然好,不过大多品牌都有自己独立的APP,产品兼容性和支持功能会更丰富,所以还是需要*载下**多个APP。我目前还没有正式入住,主要分享觉得不错的产品,智能场景的设置与应用下次再作分享:


1.小米
小米大师电视
我既然选择了小米的智能系统,那么小米电视也是顺其自然的,电视自带小爱同学和接入米家APP,无论使用和智能系统参与都很方便。
只是之前小米主打性价比产品,而我对电视的要求比较高,所以客厅的电视之前一直空着就等一款合适的产品。好在小米最近在高端电视领域发力,oled大师电视不仅外观极简,画面表现也是极好。

如今XSX宣布售价499美元,港行价格也已经公布,年底最具性价比的真香组合即将诞生:XSX+XGP+小米大师oled ,4K120帧畅玩。 石头扫地机器人 扫地机器人是属于用了就离不开的,每天有事没事让机器人出来把家里打扫一遍,能够比较有效的将全屋地面卫生保持比较干净的状态。我家大多数家具在选择的时候就都考虑了扫地机器人,基本都给机器人预留足够的扫地空间,也在电视柜下安排好插座。

自己虽然用过不少扫地机器人,但石头毕竟能联入米家,操作便捷;而且机器人无论是扫地表现还是智能判断表现上都是能让人满意的,性价比很高。

家里室内的监控主要作用就是云吸猫,新房延续了出租房的传统而已,之前用的小米1080p云台版,现在看到2K版本更新,顺势入了两台,可云台转动、带麦克风和扬声器,绝对是看家、云吸猫的利器。


而大门与娱乐室的监控才是威慑和安防作用,这里选用海康POE供电的摄像头,不过海康系统价格偏贵、不支持手机控制云台、不带发声功能。海康视频录制相对稳定,只是性价比相对一般。

2.绿米
家里除了大多数绿米的智能开关之外,自然也购买了不少绿米的其他产品: 不过绿米的产品线真的相当庞大,自己接触比较多的都是线上产品,实际上线下还有不少款式。
网关
智能设备通常是这几种形式入网或连接:WIFI、蓝牙、网关。而网关的作用类似于家里的路由器,家中无法直接上网的智能设备需要通过它来入网。通常网关支持设备多达32个,而且网关的覆盖范围很广(即便穿墙),所以基本一个屋子只需要1个网关就基本足够。 在选择购买智能产品时要注意设备是否需要网关入网、以及支持的网关型号,不同网关涉及不同的网关协议。(无法确认的可以联系客服咨询)。

目前绿米的Zigbee网关是支持米家APP和HOMEKIT的,但是不支持一些新品和线下款式;而像M1S和M2网关支持更多新品,但目前都不支持米家APP连入和控制。 一些设备是支持两种网关协议的,但注意一个智能设备无法同时连接绑定两个网关(解除绑定后才可重新连入),这也就意味即便某个开关兼容两个网关协议,但如果通过M2网关连入AQARA APP,得先从之前绑定的网关上解绑(米家离线)。

当然有一些设备(摄像头、空调伴侣等)还附带了网关功能,合理配合选用也能达到更好的智能效果。 智能窗帘 智能轨道窗帘我也直接选择的绿米,绿米窗帘不但有多种开合方式,而且运行噪音较低,整体性价比不错。

在电机型号选择时需要注意,各款电机轨道通常需要定制,各型号轨道似乎并不兼容,我家主卧选择的B1电机、客厅和娱乐室选择的A1电机。

两款电机的差异其实并不大,B1相当于A1的带锂电池版本,对于L型轨道和插座要求更友好,A1性价比更高。新装修的朋友如果选择这两款的话,在窗帘盒预留一个4孔插座即可。B1拔掉电池也可以使用电源适配器连接使用,米家APP里两者使用页面虽然不尽相同,但使用上几乎没什么区别。

智能系统需要注意的是A1是通过WIFI直连进入系统,但是AQARA APP 目前不支持这款电机,B1则通过网关接入,通过M1S或M2网关可连入AQARA APP。 绿米自动晾衣架 家里衣服是使用烘干机烘干的,而且烘干取出后预计会放置衣帽间晾挂折叠在放入衣帽间,所以景观阳台很少甚至不需要晾晒衣物,即便不设置晾衣架应该也是可以的,不过当初也预留了电线并买了绿米的自动晾衣架,不用的时候折叠收纳影没有什么影响。 不过一直都没有安装,如果重新选择的话,我估计更偏向后来新出的lite版本。

3.yeelight
yeelight主打产品就是灯具,除了我买的比较多的灯带之外,灯具还有星辰落地灯、星辰台灯,这两款产品是从老罗直播里购买的,其实性价比和实用性都不错,两款都是白色简约风格,且可以连入APP控制。

落地灯除了可以实现日常照明之外,还具备氛围彩灯的功能,而且灯本身占地较小且方便移动,无论是放置在电视柜、沙发、床边等位置都比较适用,


星辰台灯本身可以作为小台灯来用,顶部还有一个天使环光圈,十分讨喜。控制也很简单:短按控制灯的开关,长按可将灯切换日月光模式。

关键是灯底座还带有无线充电器,非常时候放置在床头柜使用,既能提供温暖的局部光线,睡觉还能随手给手机充电。

无线充电功率大概在10W左右,充电速度还不错,而且LED本身就非常省电,月光模式下甚至只有不到2W,整夜打开也不用担心。

浴霸、凉霸 浴霸大家都懂的,冬天洗澡暖和点,如厕有味道换换气(别说了,有画面了.jpg),这两点可以说是我的基础需求了。当然,在实现过程中,会涉及智能化带来的家居生活的便捷。比如yeelight的这款智能浴霸,支持接入米家系统,也可以由独立的App控制。而凉霸则可以和皓白智能面板灯协同,风向可以控制在65°-120°之间,装在厨房区配合家里空调还是比较清凉的(不过yeelight的联网真心麻烦),购买还需要注意吊顶尺寸,浴霸是30*60、凉霸是30*30。

来看看yeelight浴霸的App界面,四种模式的切换是基础功能了,也可以自主设定时长和亮度、色温等参数。App的应用,比较直观和方便,比如下班途中先开浴霸,回家就可以洗澡之类。我还促狭地想了个用途:冬天开着浴霸,如厕正在状态,突然觉得有点热,但是总不能起身按开关吧?手机则总是很随身,在App上操作一番,适宜的如厕环境就营造出来了,哈哈哈哈哈...

浴霸凉霸都配备了遥控,即便手机不在也不用担心。

其实我觉得yeelight的这款浴霸和凉霸性价比不算很高,不过像浴霸的夜灯功能还是很具人性化,配合人体传感器、灯带灯设备,半夜上厕所既不用抹黑也不会被亮到睡意全无,而且浴霸还能会连续工作XX分钟后自动关机,人可以在离开厕所之后让它继续工作。

4.青萍
宜居室内环境,少不了对当下空气指数的掌控,空气质量检测仪对于新房入住来说绝对是非常实用和常用的产品。当然,老派的工业产品,即便能达成监测空气质量的目的,也难免流于操作老旧、样式粗蠢、检测项目不多等。 青萍空气检测仪,则是一款我觉得跟现代家居环境很搭的颜值产品,充满科技感的家居好物:3.1英寸超清IPS电容式触摸屏,直接显示空气指标,亮度可调,wifi联网...... 而且机器不仅可以type-c直连充电还自带电池,方便家里各位置进行检测。

青萍自家的APP支持度以及功能是最丰富的,APP首页可以直接看到所有设备的检测数值,家中空气状况一目了然,而且还有非常人性化的建议和提醒:

可以查看近24小时详情以及30天内所记录的数值大小变化:

还可以检测柜子里的数值,提醒我新房哪里地方需要经常通风换气。

APP可以联网同步当地空气质量,有非常详细的空气以及气候信息。

触摸屏的触控操作很是流畅便捷,页面和APP的信息都十分丰富,可读和可玩性都很强。


家用绝大多数指标(pm2.5、tvoc、CO2、温湿度等)都能直接读取,青萍空气检测仪不仅能做到如实记录存储,方便查看。而且对于污染参数本身定义,就有相关的查阅页面,这对于用户的日常使用,可以说很友好了。

青萍空气检测仪的监测之外,青萍空气检测仪还可以接入米家、小京鱼、智家等多个智能家居系统。与新风机、空气净化器、加湿器、*湿机除**、空调、暖气等空气设备联动。

用户可以根据自己对室内环境要求设定各参数的理想值,而在高或低于该值时,界面都会以不同的颜色直观呈现当前空气状况,灵敏方便。当然,青萍空气检测仪呈现这些数据的同时,可以通过连入米家系统进行新风机/空气净化器/空调/加湿器的操控,做到发现问题并自动解决问题。


当然,如果你身处空气质量长期优秀的地区,那么空气检测仪可能就不是很切合你的需要(比如南方的某些地区)。但是,而像日常的温度、湿度监测直接选用青萍温湿度计即可,随时随地掌握温度、湿度,联动空调、*湿机除**,完全智能自动化。

青萍的这款蓝牙温湿度计,售价更加友好,颜值相当OK,采用电子墨水屏、磁吸墙贴和隐藏支架,可以通过网关接入米家系统,用来监控室内温湿度状态以及控制空调、*湿机除**、加湿器工作,都很方便。 我家除了多个房间放置它之外,还有一些柜子、米桶、猫粮罐里也经常会用到。

青萍还有一款惹人喜欢的闹钟,外观可爱小巧的还有点复古风。 通过按压的方式来关闭闹钟以及打开屏幕灯光,操作还是挺人性化的,但是闹钟设置需要在手机APP上进行,要是闹钟本身就能直接设置,我感觉可能会更方便一些。

五、懒人的小幸福
虽然有些设备不是智能联网家电,但是在我们这两个赖人家庭中还占据了举重轻重的地位,所以还是要简单分享一下。 1.惠而浦独立热泵烘干机 烘干机不仅可以给新房大大削弱晾衣架的存在,还不惧户型阳光、南方回南天气的影响。 原本觉得戴森是养猫家庭的必备,后来发现独立热泵烘干机才是,尤其是像我们这种小猫咪侍寝的家庭。所以对于养宠家庭的建议就是务必买一台大烘干量+多重滤网的独立热泵烘干机,好用、省事、省电。

可以看到仅仅是一次四件套的烘干就能过滤这么多的绒毛,再也不用担心床上满是猫毛的问题。

2.慧曼洗碗机
有人说几个碗筷随手洗就好了,可洗碗机从来没有禁止你随手洗的勤快,反而能在你最忙或最疲惫的时候,不再需要为了谁洗碗这样的矛盾话题而徒增烦恼,宝贵的时间应该更多的留给更珍贵的人和更重要的事(也许就是懒)。

洗碗机,当初为什么选这款洗碗机呢?其实是有几个打动我和老婆的点: 第一个虽然家里只有猫儿子,但始终会有娃的,选购洗碗机时就考虑到时宝宝餐具的洗、消、烘、存,慧曼清洗时,宝宝模式下不会投放洗碗粉,也就不用担心残留问题;然后是相比于普通杀菌的70℃,<2min,宝宝杀菌可以做到在75℃下维持20min以上,消杀效果不言而喻。但是需要注意放入的物品是否能承受75℃高温。

猫咪餐具清洗前

猫咪餐具前洗后

第二个是慧曼旗舰版的自动开门和热风烘干功能,这样的结合方式据我所知,一般只在高端机型中采用,效果的话主要是蒸汽排出快,烘干效果好,也更节能。

第三个是分层洗。因为两口之家大多数时候待洗餐具比较少,分层洗的效率更高,也更省水省电。

然后还有紫外保管,清洗结束不需要立马将餐具碗筷拿出来。

当然,最后的最后,吸引我和老婆的,其实还有一个原因...没错!还是颜值!钢化玻璃面板、樱桃木纹、内嵌无把手,和我家厨房的配色也很搭。

如今用了一段时间感觉真的很香,懒人必备神器,老婆都迫不及待想赶紧入住新房了,哪怕睡沙发也愿意。 3.大白(diiib)
虽然感应龙头不是什么智能设备,但是大白的产品不仅颜值高、好用,性价比还很高,我就不得不提了。 第一次打开我老婆这个颜控内心喜欢的就是这款龙头,它集好用、好看、好价于一体,用料质感看起来就很高级,直接把厨房的颜值在拉高一把。很多装修师傅来我家都对它赞不绝口,其实价格只需要几百块,绝对是家居过生活的经济之选。

龙头可以感应出水(电池供电),很有科技感还能实现误触碰开关水。颈部能固定/拉伸状态切换使用,配合背后按钮切换两种出水模式,满足日常各类使用需求。按朋友说的:几百块钱的龙头使用起来和几千的龙头也没有什么区别,关键还那么好看。
而后一直寻找的黑色花洒也在大白这里找到,黑色磨砂材质加上多种出水模式切换,还配备了放置杂物的小平台,性价比同样突出。

于是后来我们家花洒、浴室柜龙头全都是选购它们家的,只是目前家里的浴室柜还没有完全确定下来,所以一直还没有安装。

另外之前喜欢的恒洁智能马桶标价贵就算了,每次活动价格都控死,主卫的马桶迟迟没有买还冒着下水道气味。而且家里客卫恒洁的坑也没有很理想,多少有些解毒吧。所以之后可能也会购入大白的智能马桶,也是保持了高颜值和高性价比的产品,真正集齐大白厨卫全家桶。
六、小遗憾
装修至今多少难免会有些遗憾,之前我也总结了原本因踩坑而后悔的合集,而在智能电器方面我稍后悔的也有那么几个:
- 电动窗帘&开窗器
其实原本按老婆的意思,最好家里的窗户和(百叶)窗帘所有都能做电动的,只是像厨房的百叶窗安装位置只有7cm,电机位置不好安装,最终采用立川手动百叶窗。

2.智能门
要说相见恨晚的话,那不得不提智能门。硬装的时候其实一直纠结要不要换入户大门,当时是找不到比较合适的款式索性就不折腾更换了。 可惜最近小白智慧门才推出,3999的价格连门带锁都换了,性价比和质感都不错,无奈我家装修已经是即将完成状态,再换门的成本就变得很高,只能眼馋着别人家换这个门,而我只能选择换智能锁+改色。

现在客厅这猪肝红的大门真的是最刺眼最不搭的部分,不过现在已经买了改色贴膜,最近就打算把它解决了。


智能锁也是智能系统非常重要的一环,米家的智能设备可以很好的实现从解锁开始就实现整个智能设备的控制和智能场景,目前看中并打算下单N200(下图是绿米和米家一些主流锁参数对比),像小米手机、小米手环即可实现开锁,预计不久后即可安装完工。

3.中央空调智能化
中央空调品牌自家的智能模块很贵,而且一个模块还只能控制一个内机。据我了解绿米线下店铺有中央空调模块,价格在2000块一套,不过多方询问都没有弄清楚相关型号支持、控制情况以及如何接入安装等信息,然后就没有什么然后了。 由于中央空调几乎覆盖了全屋的冷暖,所以没有智能化的加入多少还是有些遗憾吧。
七、未完成
装修就像谈恋爱一样,如果你没有一点要求的去找个异性其实很容易;装修要想快速完成入住,没有感情的买买买同样简单,花钱而已。 但真正想选到符合自己家中风格,韵味契合的却很难,越是在收尾阶段越是如此,毕竟还涉及到各种尺寸的问题。 如今我家还剩三大方向没有完成:阳台柜、猫墙、娱乐室 1.阳台柜+洗手台
懒人神器不只是扫地机器人,拖地机器人也是必不可少。目前最好的清洁效果就是扫地机器人纯扫地+拖地机器人纯拖地。 云鲸拖地机有很好的算法和自动清洗拖布功能(虽然APP方面有些不如),几个月使用下来一直很好,把它放在客卫门口虽然方便更换净废水,但我家全屋拖地一遍往往需要中途加水/倒水一次,这显然不够理想。


于是我琢磨着将拖地机器人的位置进行更改,然后进行自动加水/倒水改造,最终发现阳台的位置比较合适:有上下水口,然后还是尺寸的问题。

为了两个儿子能舒服的拉SHI,新房自然要专门安排一个更大更宽的猫砂盆,早早就在阳台给安排了。

于是现在阳台柜就承接了洗手台、拖地机、净水机、猫厕所、猫咪饮水等多种功能。在我之前应该没有人这么做过,加上这里的地形和结构也是最复杂的,所以也只能自己测量和设计一番,自己设计的H点就是将所有的目标和期望都安排得妥妥的,然后一点点的尺寸都完全利用上,最近准备本地找一家做柜子的落实。


现在老婆已经开始锻炼两儿子在垫高15cm的猫砂盆上厕所了,好在对儿子们并没有什么不便影响。 2.猫墙、置物架+沙发后储物柜
要说我们家装修的小任性部分,自然是为两猫儿子而设计的部分(客厅砌墙猫洞、主卧改门砌墙猫洞),而核心部分就是沙发后背后猫墙——沙发旁猫洞——阳台猫墙的动线联动。

装修总是在不停变化,比如客厅沙发背后、侧面都增加了收纳柜,好在都在可控范围内的优化补充。这里需要结合墙面的强电箱、投影机、沙发、插座的位置、猫咪三围设计猫墙,还要注意的就是猫墙固定点背后是否有线管经过。

最近在娱乐室里试水几块白蜡木板材,现在猫墙的板材、尺寸、固定方式也基本确定,相信很快也能完成,然后年底小猫咪就能入住新房。

八、尾声
人们装修都说金厨银卫,我家里最贵的房间其实是面积最小的工作间(多功能娱乐室),它虽然只有8-9个平方大小,但却集家中的网络、数据、工作、娱乐、杂物储藏于一身,所以上个月我几乎都是在打造娱乐室。这篇文章也是跟着装修一拖就拖了近一个月,智能设置也还没有认真去弄所以也没法分享。 文章总体写得有些乱,还请见谅,如果有写得不够准确的地方,以官方解释为准。

娱乐室面积真的很有限,所以设计和计划是尽可能的利用每一处空间,目前第一阶段打造即将完成。不久将单独与大家展示和分享,这里就不再展开,欢迎关注。 最后,文章中涉及的智能产品表格以及图片也将与大家分享,有需要的公众号自取。