高层办公建筑自19世纪末诞生以来,始终在提供审视和观测城市的独特视角,无论资本追逐效率的需求如何迫切,高层办公建筑都不应舍弃未来城市生活载体这一身份。百度国际大厦的设计初衷是让高层建筑重新参与到户外生活的日常中,重新成为引导空间使用的重要载体,相比创造一个精美但刻板的纪念场景,建筑师更关注这些空间的进化可能。
▼项目概览

▼鸟瞰图

▼西立面街景

设计团队设定了一个大胆而富有创造力的目标,为百度员工创造一个能够随时走出工作区,接触自然的全新办公建筑。为了实现这一构想,我们将核心筒偏置在平面的东侧,西侧以8层为单元植入一个12x18m的梯形空中花园,每4层单元交错叠加,形成一个上下连续的“绿色拉链”,这让建筑得到了一个非常独特的外观表情。不同的交错平台之间,观景阶梯将建筑的外部空间竖向串联,打破了层与层之间的壁垒,让空间得以自由连续,呈现出多孔、连续、开放的垂直缝隙。不需要解释空间的使用方式,使用者就能自发的探索其中,实现室内室外交互的即时性。
▼东塔立面图

▼建筑细部

▼梯形空中花园

平面效率依然需要被关注,建筑师从百度自身对办公的差异化需求出发,将传统中心核心筒大进深办公平面做了“切薄”处理。标准层南北两个长边确保了开放办公区的使用效率。配套功能环绕核心筒展开。与“活力核心”紧密连接,走出电梯厅即可进入阳光充沛的共享交流区,更可以随时走出建筑,办公区与户外花园仅一步之遥,体验空间的边界与效率空间最大程度接触,创造日常的随机性,最大化降低人们与户外接触的难度,这些空间从根本上改变了封闭办公室的行为模式。百度国际大厦通过空间创新,允许户外空间积极介入到垂直场景中,面对中国当下萌动的新问题和新挑战,这种空间策略将成为审视现实和未知的需求的最佳催化剂。
▼空中花园

▼观景阶梯打破了层与层之间的壁垒

▼办公区与户外花园仅一步之遥

▼由办公室看向观景阶梯

▼大堂中庭

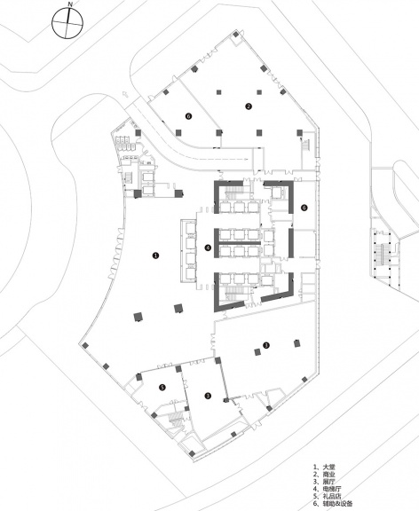
▼一层平面图

▼剖面图

设计方:悉地国际——东西影工作室
项目设计 & 完成年份:2011-2015
主创建筑师:王照明、颜世宁
设计团队:倪俍、凌子、丁屹、孙福梁、杨德位、朱永斌、王可湛
项目地址:中国广东省深圳市南山区
建筑面积:226000平方米
摄影版权:方健、颜世宁
客户:百度国际科技(深圳)有限公司