
「木兮测评」,带你看更真实的楼市!
高新CID板块的几个楼盘迟迟没有动静,大家关注也比较高。
我们前段时间测评了紫薇华发CID中央首府和中海寰宇天下,由于上次去的时候,新希望·锦麟天玺的售楼部没有开放,所以今天给大家补上。
楼盘基本信息

楼盘名称:新希望·锦麟天玺
楼盘地址:西安市高新区西太路与纬二十六路交汇处向南150米
产品类型:高层、洋房
容 积 率:2.8
绿 地 率:35%
总 户 数:1970户
停 车 位:约4094个
物 业 费:待定
装修情况:精装
开 发 商:西安锦谦置业有限公司
物 业:物业自持
01
项目概况
新希望·锦麟天玺 位于高新CID的住宅区,属于改善高端产品。
2020年5月8日,新希望地产进入西安以楼面地价12640元/㎡,拿到这块约177亩住宅用地。
新希望锦麟天玺 陕西省西安市长安区西太路与纬二十六路交叉路口南
小区规划楼栋23栋,有高层和洋房的产品。户型面积170-200㎡大平层,以及部分130-140㎡户型。
02
开发商
新希望地产 于1998年正式成立,是新希望集团八大产业板块的重要组成部分。
新希望 (主打改善、高端产品)基本在新一线、强二线城市布局地产项目,旗下有四大产品系: 天系,锦麟系,锦官系,锦悦系 , 本案为锦麟系 ,也是新希望地产 首进西安 的第一个项目。
同时,新希望也是“养猪”的龙头企业,最近猪肉市场有些低迷,加上企业的操作不当,企业的股票目前呈下跌趋势,一季度的负债达到了783.4亿元。
物业由开发商自持,目前已经上市,在各个城市的口碑褒贬不一。
03
周边配套
①交通:

距地铁6号线仁村站约50米,步行3分钟就能到达售楼部,小区门口就有公交站,有330路、337路、高新6号线、高新7号线,交通还算便利;
即使现在片区还未完全成熟,但下班高峰期车流量也不小。
②教育:
小区东北角有西安高新区第二十二幼儿园 (高新一幼直管,目前已经开学),周边2公里内有高新二十一小、高新二十三小、高新第十一初级中学、高新第五初级中学等。
③商业:

周边商业现阶段几乎没有,后期小区外侧规划有商业体,目前西安国际医学中心内部倒是有几家便利店和餐饮店。
4公里外有首创奥特莱斯商业中心,至于未来之瞳规划的商业,例如上林广场、兰桂坊等落地时间,目前还是未知数,需要慢慢等待。
④产业:
项目南侧2公里处就是板块核心未来之瞳,如今正在有条不紊的建设中。

西安电子科技大学南校区的对面,丝路 (西安)前海园项目,距离项目大约3公里远,预计今年5月上旬将全部完成主体封顶,6月底建成。这将是板块内最早投入使用的产业项目。
⑤医疗:
2公里内有国际医学中心、国际康复医学中心、国际医学院、西北大学附属第一医院 (公立,1500张床位)、高新区公共卫生中心、高新中医医院等。
⑦生态:
南侧规划有市政公园,目前进入勘测阶段。
04
户型点评
本案处于前期咨询阶段,开盘时间待定。

本次预计推出4#、5#、7#、10#、12#、13#楼 (具体推售情况还以售楼部为准,部分楼栋是否能赶上预售证下发,取决于工程进度)。
共有127㎡ (三室两厅两卫)、138㎡(三室两厅两卫)、163㎡(三室两厅三卫)、201㎡(四室两厅三卫)四个户型。
下面,我们来看具体的户型图。
1
127㎡户型
三室两厅两卫:

户型还算方正,入户没有标准玄关,厨房自带储物间,后期需要进行隔断处理,因为客卫的窗户与储物间相连,这个设计利弊都有,看个人接受能力选择吧。
2
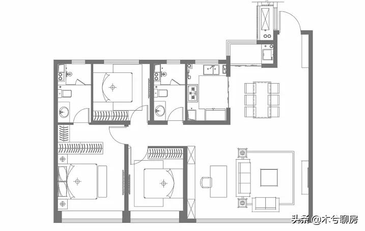
138㎡户型
三室两厅两卫:

这个户型,算是最近踩盘看到的比较好的一个。
户型全明,功能划分明确,南北通透,布局合理,有缺憾的是户型不够方正,没有标准玄关。
3
163㎡户型
三室两厅三卫:

入户有玄关,南北通透,南向次卧有暗卫,北向卧室带生活阳台,属于功能划分不明确,其他方面就还好,没有什么问题。
4
201㎡户型
四室两厅三卫:

入户有玄关,南北通透,除了东南角单独分开了一个带暗卫的卧室,使得户型动静分区不明确外,整个户型看下来,也没啥问题。
关于装修情况:
据置业顾问讲,目前预计是精装交付,不过还要看备案价的高低,来决定装修标准。
新希望的样板间需要填个人购房信息表,预约后等待通知,才能参观, 相当于直接筛选了客户。
05
房价对比
新希望·锦麟天玺 放风价大约在3w/㎡起,不过具体情况还是要以最终实际备案价为准。
目前区域内暂无二手产品,我们就以周边项目的楼面价和入市价格作为参考:
1、 紫薇华发CID中央首府 的1#楼,备案价已公示,最低16156元/㎡,最高19006元/㎡,平均1.75万元/㎡。
2、 中海寰宇天下 精装修房源,放风价2.2-2.5万元/㎡相比,价格可能会略高。
若是拿高新其他区域 (软件新城)同档次楼盘进行比较,比如 中国铁建·西派国樾 (放风价3w+/㎡), 隆基泰和·云玺领峯 (放风价2.9w/㎡),项目价格基本持平。
06
总结
优势:
1、标准地铁盘 (地铁6号线已开通),出行方便;
2、目前小区周边的学校、医疗配套已经落地;
3、项目体量较大,容积率低,舒适感高;
4、小区楼间距在56-96m间,采光较好;
5、小区规划有水系景观,分布较广,儿童生活乐园,小森林公园 (负氧离子树种)等。
劣势:
1、放风价3w/㎡,在目前片区内算是价格较高的一个项目;
2、目前市场限价,可能存在降标情况;
3、板块成熟需要时间,规划商业、产业、公园等配套建设周期长。
总之:
新希望股票呈下跌趋势,负债在逐渐累积,目前建筑原材料的价格在都在上涨,而市场又处于限价的困境中,本次新希望的住宅项目在西安首次落地,质量还有待考量。
其次就是片区发展问题,高新CID板块的地铁、医疗、教育目前都已经落地兑现,商业、产业的养成是最需要担心问题,规划确实很好,但发展周期也是非常考验大家的耐心。
下期测评:龙湖·天璞