对于大部分人来说,装修入住后,最后悔的事情就是柜子做少了。毕竟,家里的杂物总比想象种要多,尤其是有娃家庭,如果不在装修时提前规划好收纳空间,最后只会越住越挤!
本期屋主,在收纳空间的规划上,就做得非常好。她家的套内面积虽然只有75㎡,但柜子却做了很多,完全大户型。而且,女主家的柜子大部分都是隐藏式设计,不仅看起来简洁大气,还显得室内很宽敞,快来一起学习学习吧!

▲装修实拍图
//户型分析//
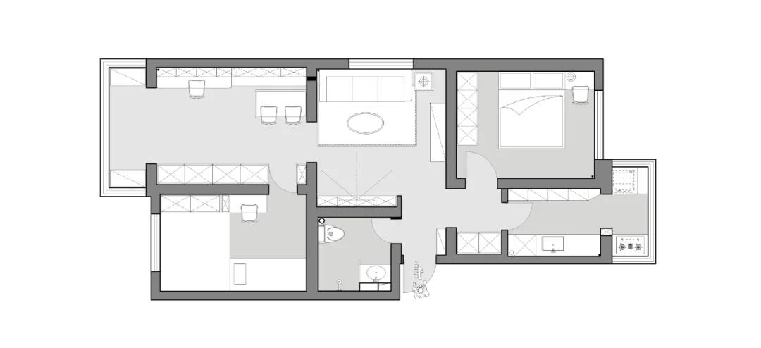
整屋面积约75㎡,是两居室的格局。户型的缺陷比较明显,面宽窄、进深长,再加上室内隔墙比较多,所以采光和通风性会差一些。

▲户型平面图
//设计亮点//
①把原餐厅改为客厅,原客厅改为“餐厅+书房”,两个区域之间用矮柜做隔断;
②餐厅一侧设计“长书桌+卡座”,另一侧做满墙嵌入收纳柜,并将儿童房的室内门也隐藏其中,保持视觉上的统一性;
③儿童房做榻榻米设计,并在侧面增加单人床,提升了空间利用率。

▲装修平面图
客厅
房子目前刚装修好,软装已基本到位,部分大家电还没有购置。现在的客厅其实是原户型餐厅的位置,空间不大,沿着墙壁刚好摆下双人位沙发和小角几。配色很清新,地板和柜子都是原木色的,搭配薄荷绿色墙面,营造出自然舒适的居住氛围。

▲客厅实拍图
客厅内取消了茶几的设置,把空间留了出来,这样看起来会更加宽敞一些。设计师在沙发的两侧,分别规划了矮柜和小角几,方便屋主随手放置水杯、遥控器等物品,不仅提升了储物能力,也能起到装饰空间的作用。

▲客厅实拍图
设计师用满墙电视柜代替背景墙,白色与木色搭配,视觉感自然简约。柜子是对称式设计,功能分区合理:①上下柜格安装了白色按压柜门,用来收纳生活杂物;②柜子的中间是电视区,柜板上提前预留好了插座;③电视机的两侧共设计了四个开放式柜格,用来摆放装饰品。

▲客厅实拍图
餐厅
餐厅是由原客厅改造而成的,与南向阳台相连,采光不错。改造之后的餐厅,融入了书房的功能,双人位大书桌和卡座是一体式设计,占据了一面墙的空间,可满足屋主一家人用餐、学习、办公等多种需求。

▲餐厅实拍图
书桌和卡座的上方,是一排高低错落的吊柜,是按照书柜的功能进行打造的,带柜门的柜子和敞开格相互搭配,屋主可以有选择性地收纳常用和不常用的书籍。

▲餐厅实拍图
书桌很长,可容纳2-3人,平时大人和孩子可以一起坐在这里办公、学习。设计师在书桌柜板和上方墙面,预留了10个插座,电脑、手机、台灯等都可以直接插电使用。

▲餐厅实拍图
四人位紧挨客厅的矮柜摆放,更节省空间。餐桌是抽拉式设计,平铺后可扩大桌面空间,最多可满足8-10人的聚餐需求,亲友来家做客也不用担心没位置坐。

▲餐厅实拍图
卡座底部也是收纳空间,采用了侧拉式抽屉设计,比翻盖式使用起来更方便。

▲餐厅实拍图
餐桌的另一侧,规划了隐藏式收纳柜,占据了一整面墙,储物空间非常丰富。柜子的深度在60公分,和常规衣柜的尺寸相同,一家人的换季衣服、被褥可以全部收纳进去。柜子的右下角,增加了八个柜格,用来收纳孩子的玩具。为了保证视觉上的整体性,设计师在儿童房做了隐藏门,空间感更加统一。

▲餐厅实拍图
儿童房
儿童房朝南,采光很棒,设计师定制了一体式榻榻米,完美地装下了床、书桌、书柜和衣柜。考虑到家里偶尔有长辈过来住,设计师特意在床的右侧增加了一张独立的单人床,兼顾了客房的功能。

▲儿童房实拍图
浅蓝色的主色调,是孩子最喜欢的颜色,能给他带来满满的安全感。墙面上的轮舵造型灯,是女主特意为孩子挑选的,为室内增添了一份梦幻色彩。

▲儿童房实拍图
床尾处的衣柜,侧面空间做成了开放式书柜,中间区域镂空了小房子的造型,趣味十足。

▲儿童房实拍图
主卧
主卧是女主和男主的休憩空间,主色调选择了女主最爱的浅粉色,搭配白色和原木色软装,点缀黄铜材质的壁灯,给人一种甜而不腻的温馨感。

▲主卧实拍图
由于空间有限,所以设计师取消了床头柜的设计,并用梳妆台替代,实用性会更强一些。

▲主卧实拍图
厨房
厨房是一个狭长的空间,自带生活阳台,设计师把两个空间打通以后,大大提升了厨房的使用面积。橱柜和吊柜都是“双一字型”格局,左侧的操作台会窄一些,不影响中间的走道空间。

▲厨房实拍图
橱柜的颜色很高级,选择了浅灰蓝色,柜门简单的凹凸造型搭配纯铜拉手,质感十足。设计师把灶台挪到了阳台,为了不影响采光,所以做了集成灶,下方内嵌了洗碗机,使用起来很方便。

▲厨房实拍图
厨房和入户之间还有一个小空间,被设计师做成了储物柜,并预留出冰箱的位置,简约又实用。

▲厨房实拍图
【本期总结】
回顾本案,全屋装修简约清新,实用性很强。设计师根据屋主一家人的生活需求,规划出了合理的功能分区和充足的储物空间,值得学习!如果你也喜欢本期内容,欢迎点赞收藏!
#冬日生活打卡季#