在中国元素风靡全球的当今时代,古典风格与现代风格的激情碰撞,衍生出了无数素雅含蓄、简约大气的现代风格空间,呈现出了异常浓郁的东方情调。以新中式为例,其格调典雅质朴,色彩稳重成熟,布局阴阳协调,韵味浓烈悠长,充分体现了中国传统美学的精神,散发出亦古亦今的层次之美。
房屋信息
风格:新中式
面积:165㎡
报价:60万元
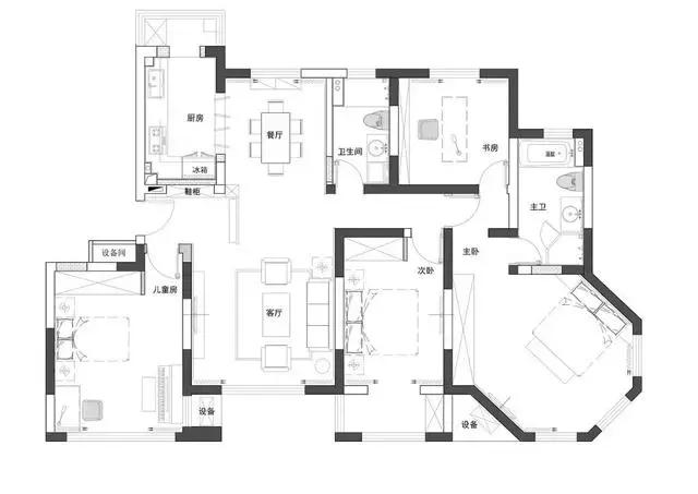
户型图

▲平面布置图
玄关

▲自古以来,中国人讲究含蓄内敛,格外注重门户隐私,因而人们在家庭装修过程中习惯于通过玄关的设计,对户外的视线产生一定的视觉屏障。

▲设计师在这一位置做了屏风阻隔。实体的墙面与镂空木质格栅,虚实相生,既做了隔断,又不阻碍通透。
客厅

▲新中式客厅贵在删繁就简,设计以方为主,方正的顶面设计与天然材料的互补,令人与自然和谐统一。落地窗成微微的弧度弯曲,方圆之间显现规矩的魅力。

▲定制家具以实木为主配以灰色软装,造型素简,整体空间典雅质朴,色彩稳重成熟,布局阴阳协调,韵味浓烈悠长,充分体现了中国传统美学的精神,散发出亦古亦今的层次之美。



▲通过空间的小摆设来营造中国传统文化的氛围。
餐厅

▲餐厅是开放式设计,与客厅隔着条过道。延续客厅基调实木餐桌椅,整个空间宽敞通透。
厨房

▲厨房下面一排深色的实木橱柜,上面一排白色的吊柜,整个空间收纳能力巨大,白色的操作台面看起来更干净、整洁。
书房

▲整个书房依然延续客厅的基调,方正的顶面设计搭配实木书桌、博古架。地面铺设的是木地板,整个空间典雅富有韵味。

▲博古架上的小东西装饰了整个空间,大而不空。正中一幅山水画,让人体会到中国文人雅士所称的诗意空间。
主卧

▲主卧依然选用原木家具,清新自然,有很独特的装饰效果,根据房间的格局吊顶设计成多边形,窗户也是三面,在窗边放上两把实木椅子和一把实木小几,整个空间给人一种清雅、淡然的感觉。
次卧

▲其中一间次卧作为老人房,整体色调以灰、褐色为主,在淡然中又有了一份成熟的韵味。
卫生间

▲卫生间面积很大,地面铺贴与客厅同款的瓷砖,玻璃门隔出淋浴区,实木的浴室柜上是白色的台上盆,大大的镜子更是显得整个空间更大。