
Address:保利华都
Square Meters:150㎡
Style:现代风格
Apartment:四室两厅一厨两卫
Designer:诗享家设计
Soft Decor:诗享家软装
*
这是一家三口的新家,夫妇两和可爱的孩子。
女屋主是英语老师,可能是和孩子们接触的比较多,她比同龄人更有青春活力,对新鲜事物也多了探索的热情。
“和孩子们在一起,会收获更多阳光!“
于是这一套新家,屋主决定把阳光和温柔装进家里☀️。

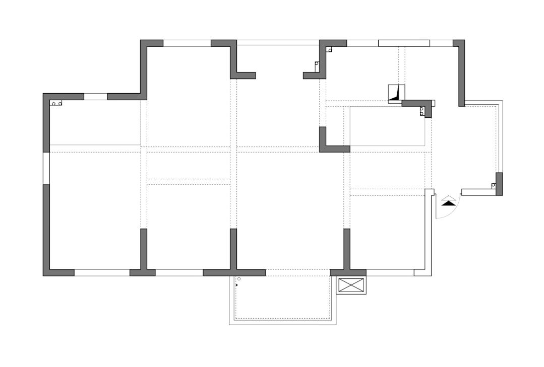
[ 原始情况
这套改善型住房,拥有150平的宽绰空间,原户型有4间卧室。考虑到家中主要是三口人居住,于是大胆拆拆拆!
拆掉鸡肋阳台、拆掉沉重的厚墙,用开放式的空间和流畅的动线,让家更明亮舒适。
变变变变变!



[ 他们的需求
❶ 只需要3个房间,主卧室、儿童房、客卧
❷ 需要摆放钢琴,便于孩子练琴
❸ 希望拥有中西厨,方便周末做烘培饼干
❹ 主卧和儿童房要有备课、写作业的地方
[ 设计亮点
❶ 借用入户阳台空间,增加公卫使用面积,并优化公卫和厨房间的动线
❷ 将生活阳台纳入厨房,拥有了屋主喜爱的中西双厨房
❸ 客厅旁阳台定义为休闲区,餐厅旁设置成洗衣区,让公共区域更宽敞明亮
❹ 优化卧室区域动线,将主卧设计成大套间,并利用走道设置柜子,满足收纳需求
*
奶油色,有着能包容一切的平衡感:温柔、优雅、安静、沉稳、气质。大面积运用,也清爽自然、不觉烦腻。
这个家运用简洁色系、柔和线条、细腻的材质,营造舒适、经得起岁月的、云淡风轻的美,让家富有「疗愈力」!





01
奶油色系
为家铺上温柔底色
—

・踏入客厅后,一个开敞通透的纯色空间跃然眼前。打开阳台后,宽绰感让家更为灵动,自然天光更为家镀上一遍滤镜。

・在冷静克制的基调上,糅合拉丝黄铜、牛油果绿、哑光黑等各色点缀,营造出纯净简约的氛围。
墙面的金箔装饰,造型轻盈而具有立体美感,不着痕迹的为家带来温润柔软的气质。


・得益于精致的施工技巧,空间在硬装上保持了细腻简洁。顶面、地面,有着细致的边角和收口,交织成一副纯净白底,留给软装恣意描绘。
米白色的沙发线条流畅,配合圆润茶几、单椅, 柔和的线条和细腻的质感,使空间自带时髦感。

・浅色系的大理石搭配细腻格栅板材,稳重却不会过于抢戏,恰到好处地融入在奶油色的家中。
轻盈的嵌入式电视柜,植入墙体后实现了悬浮效果, 摩登之余又极具层次, 视觉上也因此有了律动感。
02
弧形线条
为家注入宁静张力
—


・专注于细节,使得看似“平静”的空间,总在细节之处送来一份灵动的惊喜。 巧用弧形门洞为家注入柔和气质 ,透过弧形看客厅,有了画廊般的艺术气息。
走道尽头的大理石材装饰,浅色调和优雅的线条弧度,与电视背景墙遥相呼应,家更为协调统一。


・ 弧形线条从客厅延伸至餐厨, 一扇拱门链接餐厅与厨房,分隔出西厨水吧区域,在空间里穿梭,多了探索的趣味性。
・格栅材质为简洁的墙面带来更细腻层次,搭配柔和弧形餐桌,空间将温柔的高级感贯彻到底,生活在其间,感受的均是温暖、放松。
03
流畅动线
为家带来充裕呼吸感
—


・重构空间后,主卧成为带宽绰衣帽间、卫生间的舒适大套间。 睡眠区域被设置在整个房子的最角落, 衣帽间则成为动区到静区的缓冲,居住更舒适。


・因有了充足的储物收纳空间,加之合理的动线,睡眠区能轻松 实现舒缓、无压的氛围。
浅灰色的墙面点缀细腻的线条,勾勒出优雅气息。轻盈的细腿家具,家多了灵动、少了厚重。


・ 低饱和度的灰色系点缀其中 ,加上大面积的留白,套间内处处皆是优雅感。精选顶天立地的白色柜门,配上灵巧拉手,开合之间皆能享受生活的惊喜。
天然 大理石纹理从墙面延伸至地面 ,流畅的纹理排列,加之黄铜泡泡灯点缀,让家如同置身云端。
04
细腻童趣
让家更添生命力


・儿童房运用脏脏粉,描绘出如云朵般的床头,起伏的柔和线条,让家充满童趣。黑白奶牛纹理,既有了动物的元素,又不会过于具象,孩子长大后、依旧会喜欢这样的细节。
卧室的灯具多了梦幻气息,折纸元素、泡泡装饰,伴着柔和灯光,今晚做个好梦吧!
-THE END-
[ 往期作品回顾







