
墙柱面装饰工程是在墙柱结构上进行表层装饰的工程,分为“内墙面装饰工程”和“外墙面装饰工程”。下面我们为大家总结了7点此方面的施工工艺手法。

1、轻钢龙骨石膏板隔墙施工工艺
2、卫生间镀锌方通隔墙施工工艺
3、石材灌浆施工工艺
4、墙面石材干挂施工工艺
5、顶面石材干挂施工工艺
6、吊顶玻璃/镜子安装施工工艺
7、墙面瓷砖铺贴施工工艺
01、轻钢龙骨石膏板隔墙施工工艺
1、节点大样:

2、施工工序:
隔墙放线定位→安装天地龙骨→安装竖向龙骨→安装横向龙骨→龙骨内敷设隐藏管线→门洞口、窗台口加固→封一面石膏板→填充隔音棉→进行隐蔽验收→再封加一面石膏板

3、重点说明:
(1)常规竖龙骨为3000mm,如超过3000mm或小于3000mm建议采用定制型竖龙骨。
(2)门洞口、窗口内侧须预埋基层板材加固,并做好防腐、防霉、防火处理。
(3)天地龙骨安装前先把橡胶垫安装在天地面线位上,再将天地龙骨放在橡胶垫上安装。
(4)未找平的地面封石膏板时下口150mm处应先安装水泥纤维压力板(防潮、防水),而后再封石膏板,封第二层石膏板时下口不应直接落地,应平地脚线上口高度安装。

(5)自攻螺丝应陷入板材表面0.5mm-1.0mm深度为宜,且面纸不应破裂暴露石膏。
(6)石膏板与石膏板接口预留3-5mm缝隙为宜。
(7)封纸面石膏板打螺丝前须进行弹线。
(8)高度超过4m隔墙,应用100系列隔墙龙骨,或者按设计要求增加钢架。
4、施工图片:



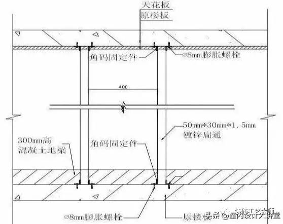
02、卫生间镀锌方通隔墙施工工艺
1、节点大样:

2、施工工序:
隔墙放线定位→焊接钢架→焊口防锈处理→捣制混凝土地梁→封硅酸钙板→挂网→水泥砂浆批荡→涂刷防水涂料→铺贴石材

3、重点说明:
(1)方钢骨架采用镀锌成品,焊接点涂刷防锈漆。
(2)镀锌方通两侧每隔600mm钻透气孔。(避免电焊时高温没透气孔造成镀锌方通变型)
(3)钢架焊接完成后在底部浇筑300mm高混凝土地梁,宽度根据设计要求。

(4)内层封硅酸钙板采用自钻螺丝固定 ,然后进行挂网,挂网采用自然平整安装法(即不要太平整,要有一定的起拱度)。
(5)水泥砂浆批荡,先在硅酸钙板上刷一层加胶状的素浆,然后再进行水泥砂浆批荡,水泥砂浆批荡层控制在距石材背面7-10mm。
(6)水泥砂浆批荡层干透后进行防水施工。
4、施工图片:



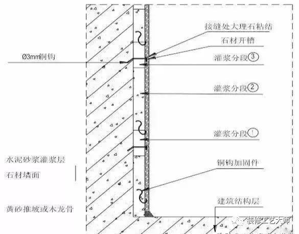
03、石材灌浆施工工艺
1、节点大样:

2、施工工序:
石材排板放线→预排石材→板材固定→灌桨→嵌缝

3、重点说明:
(1)石材采用湿挂灌浆施工时,固定石材的钢筋网应与预埋件连接牢固;每块石材与钢筋拉接点不得少于4个;拉接用铜丝具有防锈性能。
(2)深色石材采用32.5MPa普通硅酸盐水泥混合中砂或粗砂,(含泥量不大于3%)1:3配比。浅色系列石材采用32.5MPa白水泥砂浆掺白石屑1:3配比。

(3)灌浆前应用填缝材料临时封闭板缝,避免漏浆;灌浆时应分层进行,每层灌浆高度且不超过板高的1/3. 插捣密实,初凝后继续灌注,灌浆距板材上口50mm处为止。
4、施工图片:

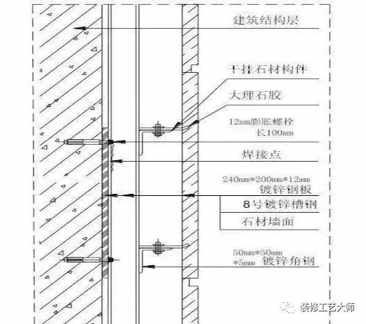
04、墙面石材干挂施工工艺
1、节点大样:

2、施工工序:
石材排板放线→安装钢骨架→石材安装→打胶收口

3、重点说明:
(1)所有型钢规格符合国家标准,热镀锌处理,焊接部位采用防锈处理。不锈钢石材连接挂件采用钢号202以上、沿海地区采用钢号304。
(2)2500mm高以内的墙体,竖向须采用5﹟镀锌角钢,横向采用40mm×40mm镀锌角钢,间距根据石材的横缝排版确定, 2500mm高以上的墙体,竖向须采用8﹟镀锌槽钢,横向采50mmx5mm型镀锌角钢,间距根据石材的横缝排版确定。
(3)应按石材排版图进行现场钢架布置;挂件与钢架连接应正确(反向、焊接)。

(4)干挂石材单块面积一般不超过1.5 平方,室内干挂石材厚度应大于20 mm,室外干挂石材厚度应大于25mm;石材板面较大且薄的板材应在背面粘加固背条,防止翘曲变形;干挂石材墙面无透胶污染。
(5)干挂石材孔、槽的数量、深度、位置、尺寸应符合设计要求;避免钻孔或开槽加工时出现位置不正、数量不足、深度不够或孔槽壁太薄等质量问题。
(6)立面垂直度1mm/2m 垂直检测尺;表面平整度1mm/2m 靠尺和塞尺;阴阳角方正1mm/直角检测尺;接缝高低差0. 5 mm /钢直尺和塞尺;接缝直线度1mm/拉5m线和钢直尺,不足5m 拉通线;接缝宽度1mm钢直尺。
4、施工图片:

05、顶面石材干挂施工工艺
1、节点大样:

2、施工工序:
石材排板放线→安装钢骨架→石材安装→打胶收口

3、重点说明:
(1)所有型钢规格符合国家标准,热镀锌处理,焊接部位采用防锈处理。不锈钢石材连接挂件采用钢号202以上、沿海地区采用钢号304。
(2)应按石材排版图进行现场钢架布置;挂件与钢架连接应正确(反向、焊接)。
(3)干挂石材单块面积一般不超过1.5 平方,室内干挂石材厚度应大于20 mm,室外干挂石材厚度应大于25mm;石材板面较大且薄的板材应在背面粘加固背条,防止翘曲变形;干挂石材无透胶污染。

(4)干挂石材孔、槽的数量、深度、位置、尺寸应符合设计要求;避免钻孔或开槽加工时出现位置不正、数量不足、深度不够或孔槽壁太薄等质量问题。
(5)顶面石材背面周边退进5mm,四周铲网40mm宽,背不小于3#镀锌扁铁,采用石材干挂AB胶粘贴,当石材边长大于600mm时中间须增加扁铁与周边扁铁连接成网状。
(6)顶面石材两端连接采用干挂件挂扣(石材侧面挂件位开槽),采用石材干挂AB胶粘结;石材边长大于600mm时中段点再用石材干挂AB胶将挂件与扁铁粘结;末端石材须搁置在墙面上,采用石材干挂AB胶粘结牢固;表面平整度1mm/2m靠尺和塞尺。
4、施工图片:


06、吊顶玻璃/镜子安装施工工艺
1、节点大样:

2、施工工序:
基层制作→放线→玻璃/镜子加工→安装玻璃/镜子→打胶收边→清理

3、重点说明:
(1)基层采用多层板(背面做好三防处理)制作,须平整牢固,平整度允许误差1mm,避免安装不平整造成破损,安装前基层必须清理干净。
(2)背面先贴好专用保护膜,周边退进10mm黏贴3mm厚海绵贴(宽度视玻璃/镜子尺寸而定),长边相隔300mm条状黏贴3mm厚海绵贴,起到定位校正作用。

(3)玻璃/镜子面无固定件安装的采用结构胶粘接在基层板上,胶干前下撑支架固定,胶干牢固后拆除支架。
(4)玻璃/镜子安装完成后进行保洁时严禁使用酸性洗涤剂或含研磨粉的去污粉清洗。
(5)玻璃/镜子采用中性耐候胶收口。
(6)玻璃/镜子面有设备安装时,须测准开孔位置及尺寸,周边为防止镜子开裂,背面四周采用AB胶黏结。
4、施工图片:


07、墙面瓷砖铺贴施工工艺
1、节点大样:

2、施工工序:
处理基层→弹线→瓷砖浸水湿润→摊铺水泥砂浆→安装标准块→铺贴地面砖→勾缝→清洁→养护

3、重点说明:
(1)铺贴瓷砖前须先检查原墙体是否存在空鼓现象。
(2)铺贴釉面陶瓷地面砖前,应先将陶瓷地面砖浸泡阴干。(浸泡至不起气泡即可取出阴干)。
(3)同一空间饰面砖色泽应一致、套割边缘应整齐,大面无小块,开孔位置尺寸应正确,无裂痕和缺损;墙砖无掉角、爆边,结合处无三角洞及方形洞。

(4)粘贴应牢固 (单块空鼓小于 15%,且每自然间不超过总数的5%)。
(5)排砖应符合设计要求,当设计无要求时,应根据现场实际情况进行调整,避免出现板块小于整砖1/3 边长的边角料。
(6)立面垂直度1mm/2m 垂直检测尺;表面平整度2mm/2m靠尺和塞尺;阴阳角方正2mm/直角检测尺;接缝高低差0.5mm/钢直尺和塞尺;接缝直线度1mm/拉5m 线和钢直尺,不足5m 拉通线;接缝宽度1mm/钢直尺。
4、施工图片:

免责声明:文章部分文字、图片来源于网络,如有侵权,请联系删除。
看完之后觉得对大家有帮助的话麻烦多多转发,收藏,让更多的人能学到这些专业知识,非常感谢大家,如果有更好的建议意见麻烦评论区留言,我会挨个回复,谢谢大家。
请关注“装修工艺大师”每天推送关于装修文章,让您快速的了解装修,学会装修。