今天小编为大家带来的一套建邦时代汇的跃层效果图,最近有很多小伙伴向小编咨询小户型到底怎么装修才能更好的利用空间?下面就和小编一起来看看设计师是怎么规划的吧~

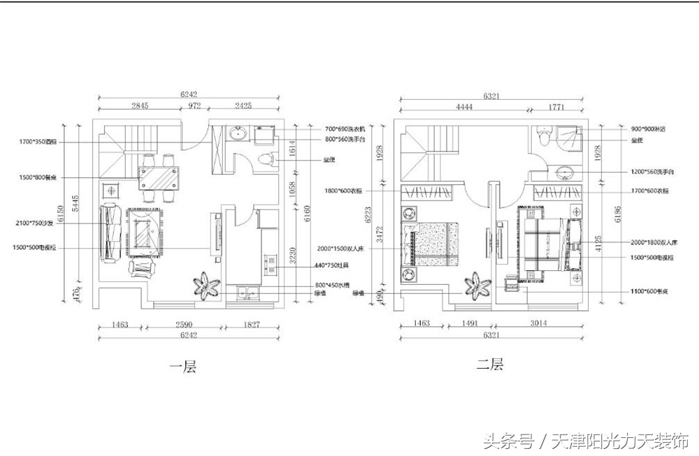
平面布局图
从入户门进来,映入眼帘的是客餐厅,右手边是上二楼的楼梯,往前就是客厅,感觉空间不是很大,另外还有一个刀角,窗户也小了点,影响采光,总体来说还算可以。入户门左手是客卫,比较方正,但没有窗户,后期要做好照明和通风。客卫对面就是厨房,之间隔个过道,厨房比较宽敞,结构合理,通风和采光都不错。
二楼楼梯上来对着的是主卫,没有窗户,隐私性较好,也得做好通风和照明。右边是次卧,有个刀角,采光一般,整体还算宽敞。次卧旁是主卧,空间较大,采光良好,非常舒适。该户型单面朝阳,动静分布合理,流通性好,采光通风一般,整体布局合理。

客厅餐厅

客厅

餐厅
先说客餐厅,客餐厅的地面用的是浅咖色复古砖,采用斜铺的方式,搭配拼花,彰显自然复古的特点。吊顶采用普通石膏板吊顶,白色乳胶漆饰面,倒圆角处理,搭配黑色的铁艺吊灯和风扇灯,显得简单大气和自然。墙面以白色为主,装饰非常讲究,沙发背景墙用绿色条纹壁纸饰面,白色拱门装饰,再加上墙上的装饰画和船舵,地中海气息十足,电视背景墙也是采用连环拱门设计,文化砖装饰,和沙发墙相呼应,亮点是蓝白色的马赛克拱门柱,非常的个性。家具也很讲究,餐桌的色调以原木和白色为主,搭配蓝色座椅,对比鲜明,茶几和电视柜是绿色和原木色搭配的为主,线条简单且修边浑圆,协调统一。沙发是蓝白米色相间的格子布艺沙发,比较素静。整体风格非常舒服浪漫。

厨房
厨房地面采用棕色复古砖,斜铺的方式,好打理,墙面采用蓝色小格子砖,也是斜铺的方式,颜色比较单一,简单好看。白色的橱柜和台面简单干净,给主人带来不一样的烹饪体验。

卫生间
卫生间色彩以蓝色为主,和厨房相呼应,地面和墙裙采用蓝色的防水复古砖,上围采用米黄色的砖斜铺,在搭配花色的腰线,给人一种深处大海的感觉。

卧室
卧室简单大气,蓝白色为主,地面采用原木色地板,搭配海洋气息地毯,顶面石膏板吊顶,白色乳胶漆饰面,金属的吊灯,简单大气,蓝色的床头波浪板和床头的船舵和装饰品很显眼,白色的大床配上蓝白抱枕,和窗帘相互映,整体搭配浑然天成。

看到这里,你是不是对小户型跃层的装修有了更多的建议和看法呢?如果你家也是小户型的房子考虑装修,或者你家也是跃层却不知道选什么风格,欢迎随时联系小编,阳光放扉er竭诚为您服务~
想了解更多,欢迎戳以下链接:
静谧与雅致,稳重与奢华,贴近自然的装修风格
轻奢,让时尚与品质兼得,带给你不一样的体验
回归自然——最适合年轻人居住的风格
欧式风格这么装 好看又不贵
改良后的舒适——小三室老房该怎么装?