
项目 NAME | 运河铂湾澜庭 方案 DESIGN | 居上软装设计 面积 AREA | 142m²
“ 项目空间 ” 分析

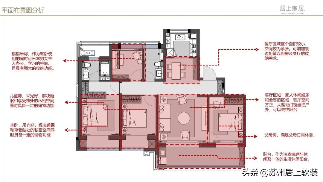
户型 :四室两厅两卫一厨
优点: 1、客厅区域空间方正,有落地窗和大阳台,采光和通风都比较好; 2、朝南卧室都带阳台飘窗,居住舒适度高; 3、双卫设计保证家庭成员之间适当的隐私。
缺点:
1、餐厨空间比较小,收纳不足; 2、靠入户的房间开门即是客厅,隐私性差。
“ 空间布局 ” 方案

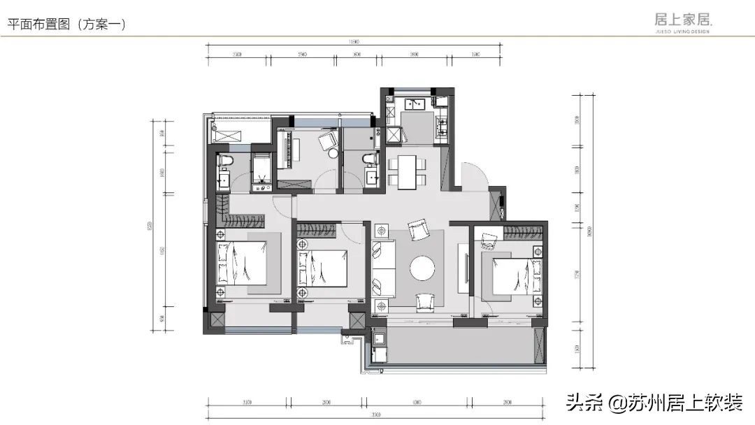
方案一
入户即是开放式客餐厅,餐厅 原始布局是没有收纳区的,我们可以在靠墙区域去增加一些收纳,满足一些个性化的需求,比方说后期需要洗碗机、蒸烤箱或者是红酒柜,可以在这个区域去做一些补充。
保留三个朝 南卧室 满足一家五口的居住,入户那间作为长辈房,中间的房间作为儿童房,最里面的套房作为主卧。北边的小房间可以作为孩子的兴趣休闲房,放一架钢琴和增加书桌椅,是孩子独立的学习空间。
阳台是没有做太多的空间改造,可以后期增加一些收纳区,在这个空间里边,如果平时有喝茶的习惯,或者是养花草的习惯,这块空间也可以打造的比较偏休闲一些。

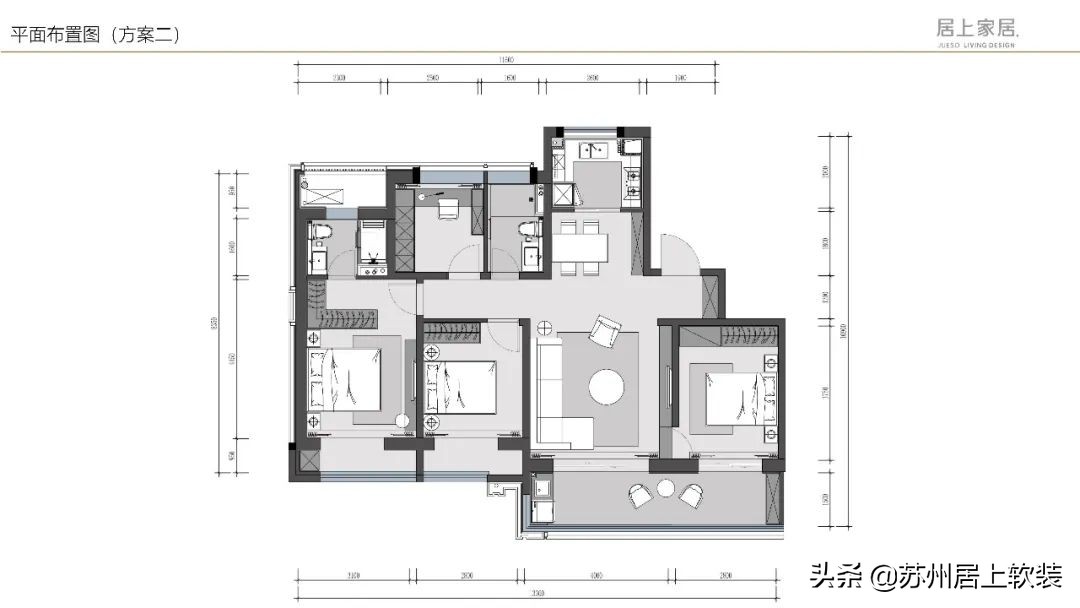
方案二
与第一种有所区别是将北房间作为独立 书房 来使用,因为客厅空间比较小,无法做开放式书房。业主如果需要经常在家办公的话就需要一个独立书房,这个房间平时也可以用于孩子的学习空间。
如果收纳需求比较多,也可以将 电视背景墙 做成收纳式,隐藏式柜体+展示柜+电视的组合搭配,可以让整面墙看起来更“整齐划一”,非常有品位。封闭式的柜子内可以存放一些比较散乱的东西,而开放式的格子就可以摆放装饰品、书籍等,让别人在客厅能够感受到你的艺术品位。

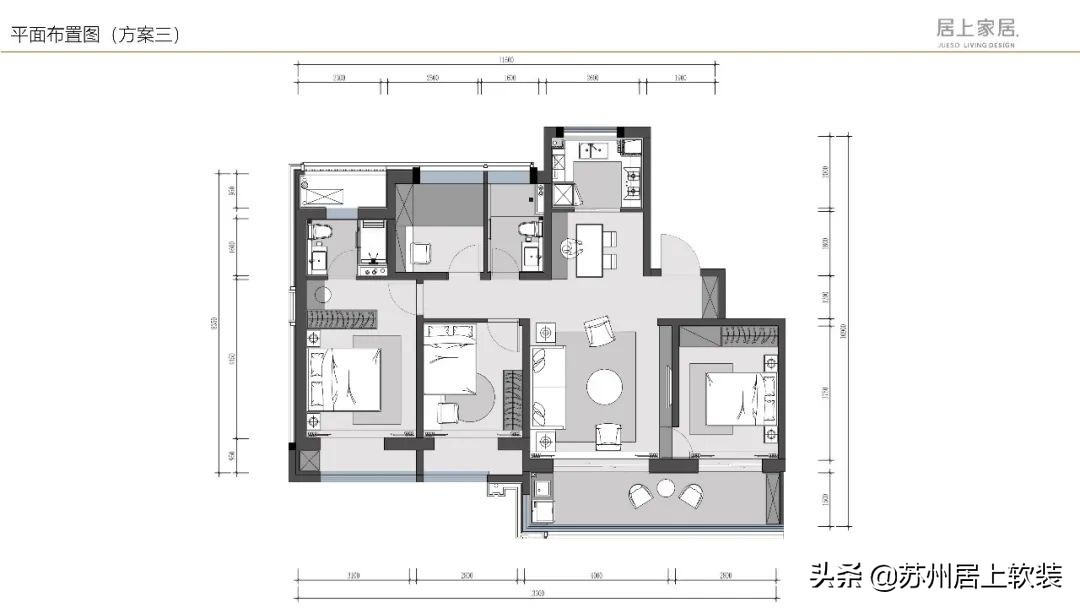
方案三
儿童房 空间还是蛮小的,但对于儿童房来讲,不建议去选择常规的一米五的床,可以选择比较偏小的尺寸。布局方式,我们可以选择这种南北向的去摆放,这样子能够更有效的去节省空间,让空间不会那么的拥挤,同时有一个学习的区域和收纳的区域。
主卧 利用L型衣柜拜访增加梳妆台,既可以充分利用房间的每一寸面积,又能满足各种需求,十分便捷的设计。
北卧室改成 榻榻米 ,实现了一房多用,集学习、储物、休息等功能,让房间突出便利性,内在的收纳设计又能增强收纳功能,让空间避免凌乱,保持整洁。柜体与悬浮式书桌相融合,让空间显得更为开阔,还能方便清洁,平时打扫起来也不用发愁!
“ 软装意向 ” 效果图

现代风格外形简洁、功能强,强调室内空间形态和物件的单一性、抽象性。在室内设计方面,不是要放弃原有建筑空间的规矩和朴实,而是在设计上更加强调功能,强调结构和形式的完整,更追求材料、技术、空间的表现深度与精确。
· 客厅 ·



客厅是一个家的中心,一个家庭的公共活动空间,讲究布局合理,还要搭配好软装。
客厅选择 组合式电视柜 可以和装饰柜、酒柜等家居柜子组合在一起形成。组合式多采用回字形布局。独具匠心的电视墙。也有较大的储物空间,扩大客厅视野,客厅选择 无主灯 设计,皮质沙发的慵懒随性,搭配单人椅的位置,在回家后给予人以解放的放松。
· 餐厅 ·



交付时厨房空间稍小,需要在餐厅位置补充收纳,在餐桌旁增加收纳柜。用来收纳餐厅中杂乱的物品,收纳能力完完全全大大提升,再放置一些小电器,缓解了拥挤厨房的压力。餐边柜 开放式和封闭式相结合,开放式可以放厨房里容纳不下的电器类,比如壁挂式饮水机、微波炉、电饭煲、烤箱等;封闭式柜子则收纳不常用物品。
· 主卧 ·


对于主卧的整体规划,尽量以简洁大方为主,墙面装饰尽量少些,不需太过于复杂。飘窗上可以放置一些飘窗垫,平时可以喝茶看书,这样的也不为是个好的选择。
梳妆台 可和电视柜组合做成多功能的悬挂式展示柜,不仅能够解决化妆品分类摆放的难题,而且梳妆台和电视柜结合具有简约清爽的视觉效果,清洁起来非常方便,呈现一个简约干净的台面。也可与床尾斗柜相结合,整体看上去大气又美观。
· 次卧 ·

老人房 安排在朝南的房间,有利于老人入睡,色调应以淡雅为首选,适于营造和缓放松的气氛。家具尽量靠墙有序摆放,所有轻便却不常移动的家具,如板式的五斗柜、鞋帽架等,需要避免倾倒对老人的安全造成威胁。


儿童房色彩的选用上避免过于单调,最好选用三种或者三种以上的颜色,有助于刺激儿童对于颜色的认知,营造平和安静的环境。儿童房一般较小,只有充分利用空间,增强储物功能,才不至于让人压抑。、吊柜式储物格、飘窗柜、到顶式整体衣柜都是绝佳的收纳利器。
在家具选择上,要尽量选用圆弧形设计,且必须坚固耐用,避免碰伤砸伤。并且学习区应尽可能利用自然采光,才有利于保护孩子视力。
· 衣帽间 ·


狭长的 多功能空间 可以选择平行而立的二字型,为中间的行走与换衣空间留出足够的距离。一边可以做成带有梳妆台结合的衣柜,当作衣帽间;另一边可以放置书柜和书桌满足日常的学习与办公,一房多用,并且还可以互相陪伴。
· 阳台 ·

设计师选择 封阳台 装阳台柜,一面整墙柜+一排矮柜,收纳抵得上5㎡的储物室。洗衣区一般要有洗衣机、透水池、台面、收纳柜。并且最好能配备一个工作台,洗晾熨收一次性搞定,洗晾晒都很便捷不用来回奔波。