
撰文:佩奇 美编:刀妹 校对:紫藤
当郑州开始批量式地开沟挖渠,天然缺水的城市逐渐在拉近与水之间的距离。
作为与“水”共生的自然资源,山川倒成了郑州人的奢望。遥想古人,闲暇时必游览名山大川,山与水几乎有着相对等的关系。
随着,更是流传出了“山不在高,有仙则名;水不在深,有龙则灵”的名篇。
其实,郑州并不缺山,多因为平原城市的概念深入人心,再加上过去数年一路向东的探路,让多数郑州人忽略了山的存在。
郑州向西,不论是沿着中原路或是陇海路,山峦的起伏愈发明显。
郑州西、郑州西南,是嵩山的支脉伏羲山。

其实对于大多数郑州人而言,从小生活在城市当中,对山并没有特别的感情。特别是一提到山或者是山居生活,必然与交通不便利、配套不齐全联系在一起。
而事实上,即便你不想常驻山中,如果能在家中阳台远眺山峦,也是开阔胸襟的一件幸事。
工作日地铁、高架快速路上班通勤;休息日静卧在阳台的摇椅上,观山揽湖。
生活,舍弃一些名利,自然会获得一丝安逸。
-1-
致热爱生活的人
纵览全国、甚至于全世界的改善盘,甚至于豪宅,不仅占据城市优质地段,而且有山有水。
比如,位于深圳的半岛城邦,占据南山核心地段,背靠南山,面向大海,与香港隔海相望。

▲半岛城邦背山看海
再比如上海早期的佘山度假庄园,成为上海本地豪客的心头好,一栋栋价值超过亿元的独院别墅伫立在这里,观山揽湖。
再看看国外诸如比佛利山庄等亦如此。
回顾前不久获得奥斯卡的韩国电影《寄生虫》,你会发现这样的房子有几个共同性:坡地、生态资源良好、与城市核心区通达性强。
在全国一二线城市当中,可以做到既观山、又揽湖的楼盘,少之又少,且基本都位于城市的核心地段,在国外亦然。
可见,全世界对山水资源的眷恋有着一致的追求,也正是因为这一致的追求,使得山水楼盘一路走俏。
我们再看看郑州及周边,哪里具备这样的先天条件和后发制人的能力。是雁鸣湖、凤湖、绿博还是洞林湖?
而其实综合以上,唯有洞林湖符合以上所有条件。既有山水桃源,又有世俗雅致,洞林湖或是个不错的选择,1000亩洞林湖、约1600亩湿地公园、农夫乐园等丰富的生态资源全部集聚于此。


▲洞林湖自然及人文风光
洞林湖组团,可以说是如今郑州都市圈一片少有的“山水自留地”。
到2021年年底,地铁6号线将会连通市区和洞林湖组团,这里将不再是改善客独享的一片天地,这里将会更加热闹和繁华。
-2-
洞林湖的嬗变
由陇海高架一路向西,到新田大道,逐步进入了洞林湖组团,新田大道沿线密集排布了“南山洋房节”的广告。
特别是沿着新田大道一路进入洞林湖腹地,环境越来越好,两侧绿化、景观等让人有种进入南方度假小镇的错觉。
而如今,不仅洞林湖组团内部的路网在不断完善,洞林湖与外部区域和组团的路网同样在不断完善当中。
连通常西湖新区和洞林湖组团的“警官大道”如今已经通车,待西四环地面工程完工,从常西湖新区到洞林湖组团的直线距离,也不过几公里。

沿着新田大道前行,看到了新田美爵酒店,就是到了洞林湖组团的腹地。
-3-
视野超40公里的小高层?
如果单看洞林湖,的确是一个好玩、有趣的玩乐地,而到2021年年底,地铁6号线更将拉动这里与市区之间的距离。
未来,不论是到CCD、三环、北龙湖的时间均在可以控制的范围内。
除了具体之间的拉近,更友好的则是南山府即将推售的小高层产品,其总价可控,不会占据过多资金。
特别是其小高层临湖瞰山的宽阔视野,更是让人神往。
未来,南山府小高层南侧为低矮洋房+幼儿园,对视野、采光的影响几乎可以忽略不计,未来站在小高层的阳台上即可看到大面的湖水,稀缺至极,这是北龙湖南岸豪宅都无法拥有的享受。
在湖水涤荡心情之后,更是可以远眺40公里之外的伏羲山,山峦若隐若现,对于工作一天的都市人而言,这是绝无仅有的享受。
小高层的景观视野和高性价比等因素将成为重要的选择。

更重要的是,南山府小高层拥有四大核心竞争力。
1、距离地铁直线距离约700米。
能观山揽湖的房子,不一定必须要脱离地铁这类城市资源,南山府做到了。南山府距离在建地铁6号线“洞林湖”站直线距离约700米,是地铁盘。

据郑州市轨道交通公司网站消息:地铁6号线一期工程,也就是贾峪站到临湖路站,将于2021年11月15日竣工;全线工程将于2023年底竣工。

2、与洋房同社区,更低密。
众所周知,南山府是以洋房为主的社区,小高层只有三栋。社区整体容积率仅1.8,这个容积率指标仅略高于北龙湖南岸核心区的豪宅。
密度低的结果就是更少的人,享受更多的资源,每个人的资源占有率更高,自然生活起来更加舒适,包括会所等多项改善盘的配置,南山府的小高层均可以享受。
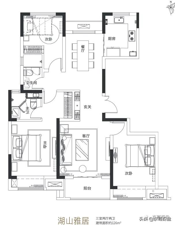
3、户型方正,梯户比低。
小高层总高18层,均为两梯两户的设计,除部分低楼层外,高楼层几乎可以做到全天候采光。
南向更是面对一汪湖水,这样的密度、采光、邻水的享受,郑州市区有吗?
此外,其户型设计也相当给力。
三开间朝南,南北通透,建筑面积约126㎡的三房,居住起来相当阔绰,即便 除去 公摊,也丝毫不会有拥挤感。

4、区域配套、教育、商业等资源已集中兑现。
教育资源的兑现。
郑州宇华实验学校、北大路小学已经投入使用。公办性质幼儿园—洞阳幼儿园已经开建,位于南山府附近的洞阳小学也即将开建,未来教育政府层面进行教学管理。后期,还会有大量的教育用地推出。

▲宇华实验学校
交通资源的兑现。
地铁6号线西段,官方最新消息将于2021年底开通试运营,全段将于2023年底开通运营。
商业配套的兑现。
维他左岸商业街,成龙影城、宝乐迪KTV、还有首创奥特莱斯,均已建成运营。
此外,根据最新规划,新田360广场洞林湖店也已经开工建设。

▲新田360广场
玩乐享受设施的完善。
洞林湖可以说是郑州周边最好玩的地方。
新田城松鼠部落已然开门营业,这是郑州首个集生态、娱乐、教育于一体的户外亲子乐园。新天成农夫乐园,一座以农耕文化昭示、农事生活体验、私家农场认养、有机果蔬采摘等为一体的都市休闲农业公园。

▲农夫乐园实景图
-4-
世茂、福晟强强联合

在世茂与福晟达成战略合作之后,世茂的优势将与福晟的强项相结合,从而进行优势互补,打造更好的南山府,构建1+1>2的全新格局。
世茂30余载匠心筑家,超120城,近400个臻品项目。上海佘山世茂洲际酒店、深圳世茂深港国际中心等城市符号誉满中国。上海世茂滨江花园、上海世茂佘山庄园等住宅革新人居标准。
2020年,世茂福晟合筑南山府。世茂的品牌影响力加持,以及雄厚资金的注入,想必也将会为南山府带来更高品质的标准和要求,为业主呈现更好的居住产品。
未来,南山府由世茂品牌带来的加持,更值得期待。
就南山府而言,更是度过了洞林湖组团前期大发展期,如今可以直接享受各项资源与配套。
交通、医疗、教育、商业等诸多层面的区域利好将集中迸发,加上地铁6号线地段官宣2021年底运营,全面利好的春天要来了!
微信公众号ID:donggetanpan
备注:本文部分图片和信息来源于网络,仅为示意。关于楼盘一切最终信息以开发商公布为准;
内容及观点仅供粉丝置业参考,根据个人需求而定。
【注:本文作者原创,未经本平台允许禁止抄袭,侵权必究!全网追踪】