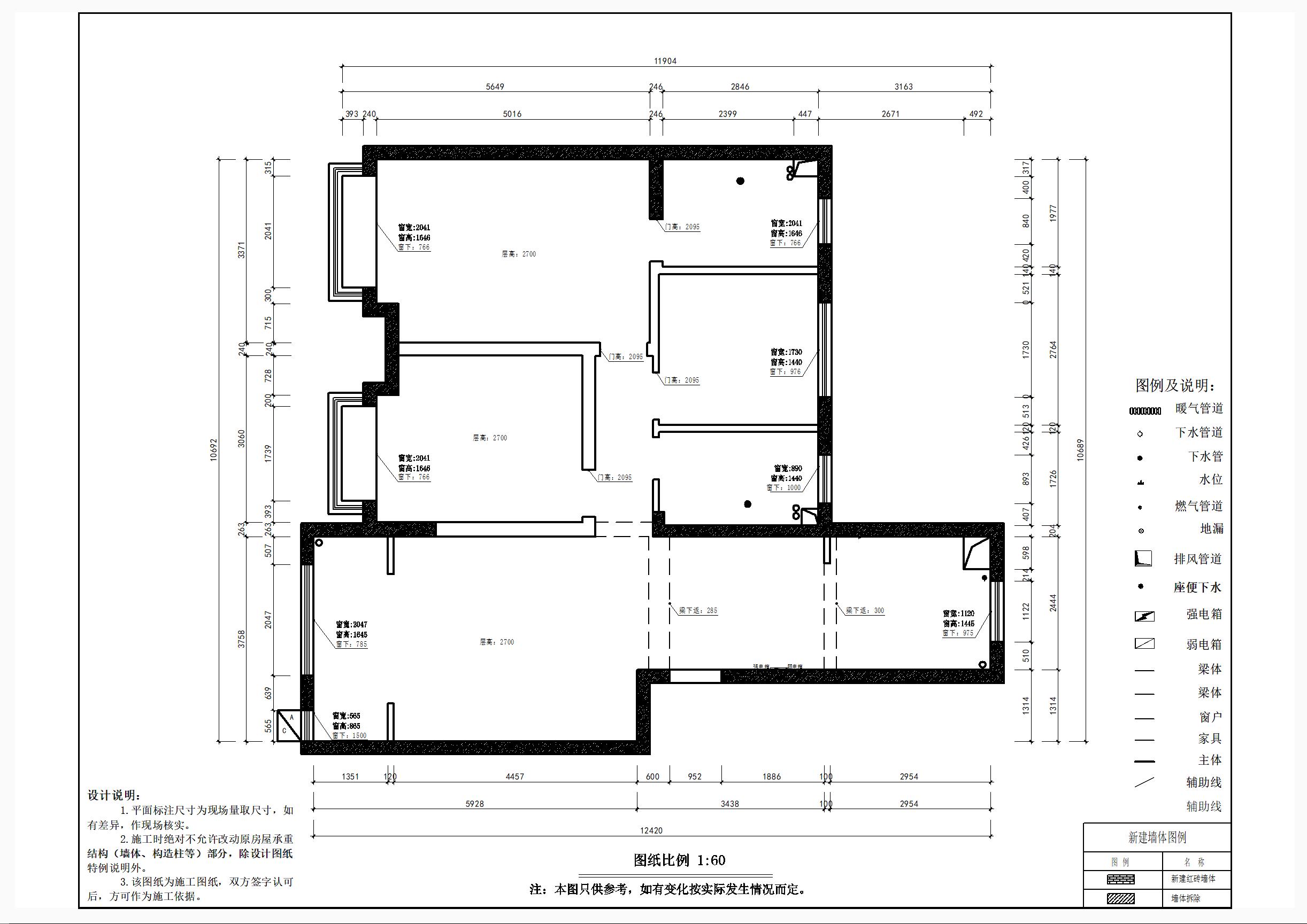
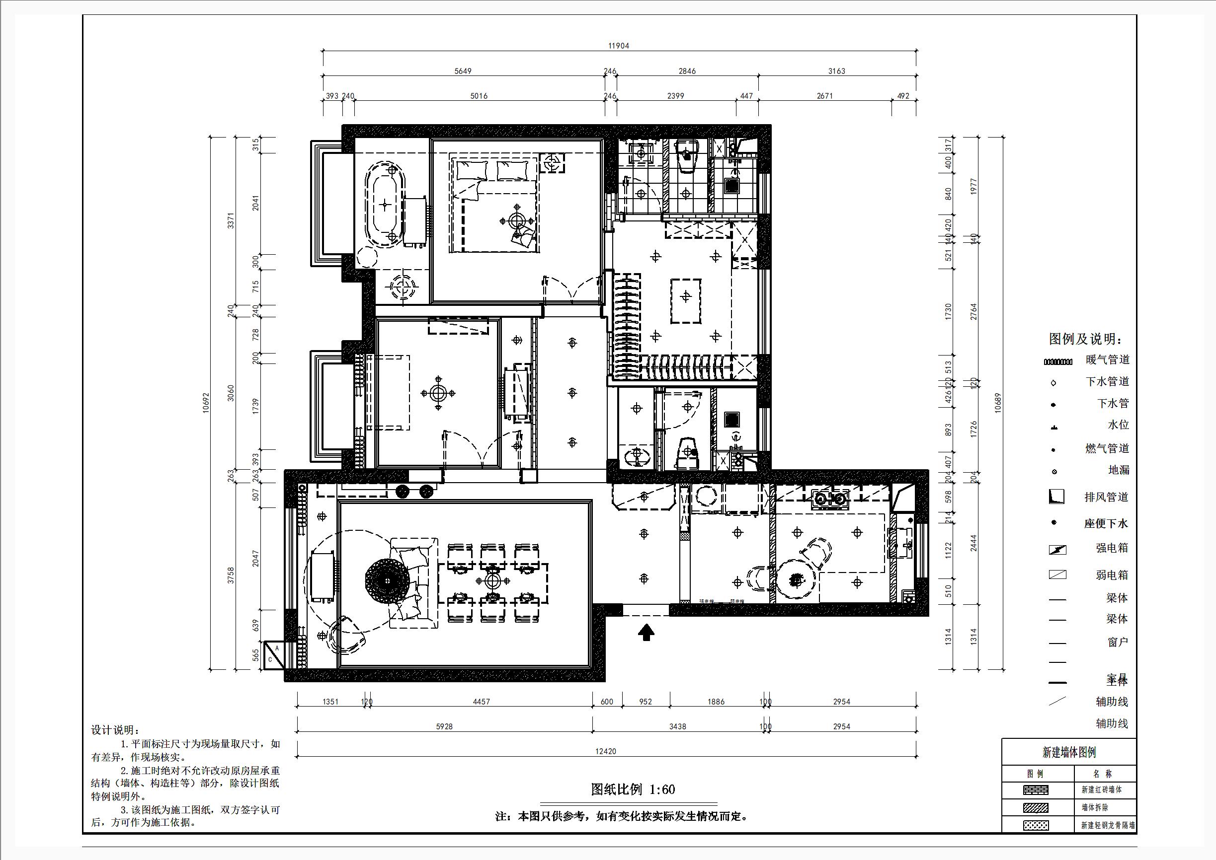
户型解析
结合业主的喜好与需求,定位法式中国风,其设计思路是在经典的法式家具里面,将法式的精髓提炼到极致,与中国文化相结合,创造出拥有中国文化底蕴的时尚空间。
前后对比


本案客户是一位独立女性,将三室的房子改为一室的 法式混搭风格 1.将厨房扩大,做开敞式厨房,与餐厅区域融为一体,同时与玄关融为一体,让整个空间更贯通。 2.将南次卧拆除作为开敞式书房,与客厅相呼应,拱形门的造型以及法式石膏线相呼应,优化了一入户看见的视野,室本案的亮点 3.从书房步入进入主卧,增加了进入卧室的仪式感,主卧门的另一侧做了造型门来呼应。 4.因女主对仪式感的要求比较多一些,所以将浴缸放在了阳台上,窗外是海景,所以视野性比较好
客厅

客厅的装修说起来也是“面子”工程,宽敞明亮的客厅让人一看见就身心舒畅。空间的合理利用让客厅变得不仅仅是个摆设,还赋予画龙点睛的功能。
餐厅

大到整个餐厅,小到所有餐具,每一处都是精致且典雅。对于餐厅里的设计,设计空间以奶白、复古,浅蓝系为基调,奢华妩媚,以暖色为主的家具和摆设成为点睛之焦点,清透清爽的新鲜空气在室内流动,配上温馨宁静的灯光,使空间既温馨又迷离,让我们以最和谐的心境迎接生活的精彩!
厨房

厨房装修最重要的一点就是空间的规划,试想,在一个没有合理布局的厨房做饭,会让人忙得晕头转向,工作起来也缺乏条理,久而久之,厨房就变成了灾难现场。
主卧

设计师考虑到在不改变空间布局的前提下,让主卧空间拥有更多的通透性,利用局部墙体+长虹玻璃屏风的形式作为卧室空间的功能区隔断。