- Hair salon-美联社美发 时尚轻奢风 |
转载

对于美的追求,一直都是艺术永恒的主题。当某个设计作品,以其独特的美将你我打动,则它是具有独特艺术品质的,美联社,便是如此。
▼ 空间改造

▲店面原状
自然中的所有物质,山、水、空气、都是光所赐,他们中的所有皆有影,影属于光。光是万物之源。

原有店面二楼全部为暗房,无任何采光和通风,我们设计根据业主需求,直面空间痛点,反复推敲后考虑打通室外廊道夹层空间,引入阳光和自然风,并将夹层空间利用成茶室和休息室,用根本上解决原有空间的暗黑格局以及功能叠加的最大化。

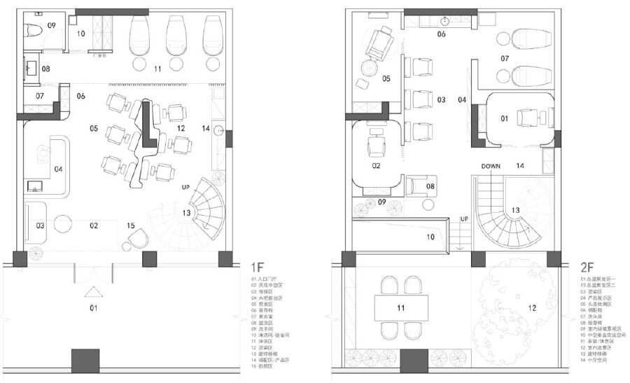
▲平面布置图
设计秉持着“人应是空间核心”的理念,调整原有的楼梯位置,左右互换,让空间充满互动感,成为一个不可多得的空间亮点。

▲施工过程

▼ 实景呈现

门头设计采用大面积留白,将美联社logo衍生而来的弧形造型贯穿全案,全尺度的落地玻璃门窗,打破了空间中的距离感,无意间拉近了某种互动感,也为整体视觉感受注入了几丝轻盈透亮的气息。

推门而入是美联社的等待区,设计师采用了挑空设计的方式,在增加与楼上空间互动的同时,也添了不少趣味性。




一楼大厅的设计依旧承袭了整个空间主题,整个方案的配色多采用浅淡轻盈的色调,以乳白色水磨石为主体,辅以浅灰色大理石地砖,与零星散落其间的烟灰金属边框座椅,共同营造出充满现代感的简约氛围。



剪发区的弧形立面墙体,巧妙地隐藏了空间的承重柱,同时承担起区域分割的功能,并与右侧的转角楼梯相呼应,极大地丰富了视觉效果,更显现出设计师的匠心独运。

空间中楼梯承担着沟通与联结的使命,美联社的弧形楼梯,外观颇具现代风格,弧形蜿蜒的侧边扶手,营造出一种奇妙的灵动感,像是在引导人们,去探寻更深处的秘密。



这个角度的楼梯,能更加直观地感受到艺术吊灯的整体设计,造型圆润可爱却不失时尚感,在装点空间的同时,也增加了空间延续性。


在总监室这个独立的空间里,你可以体验到美发总监为您带来的尊崇服务。经典的黑白配色悄然提升了空间质感,金色的艺术雕像静置其间,恰好成为这一方小天地的点睛之笔。