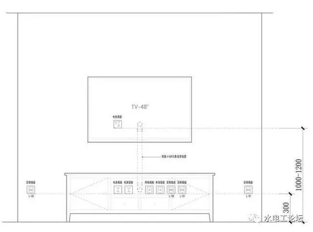
餐厅/客厅
1、 除设计要求以外,客厅的插座一般距地300㎜比较合适。

2、背景墙插座

2.1、如有隐藏电源线、视频线需安装在电视柜柜面的下面,一般距地200-300㎜位置。
2.2、壁挂电视的电源高度根据空间大小及电视尺寸确定,一般高度为1000-1200㎜。
2.3、预留一根50PVC管,作为影视穿线管,隐藏影视线达到美观。
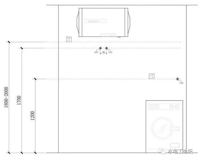
卧室/书房

1、床头双控开关及插座安装在床头柜上面,距地600-750㎜是比较合适的距离。
2、空调挂机插座距地1800-2000㎜,应安装16A三孔插座。
3、电脑桌和其它桌上面的插座距地900㎜。

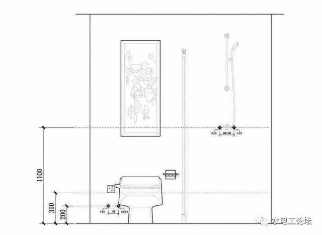
卫生间

1、洗衣机插座可安装在1200㎜处或者低插350㎜。
注意:低插不要安装在洗衣机后面。
2、电热水器插座可安在1800-2000㎜处,建议用16A带开关三孔插座,并加装防溅盒。
3、马桶后插座建议在距地350㎜安装,并加装防溅盒。

4、洗脸台盆处要预留两个插座(吹风机、消毒牙刷架),高度与开关一水平1300-1400㎜。
5、照明开关距地1300-1400㎜,距门边100-200㎜(同一房间内高度一致)。
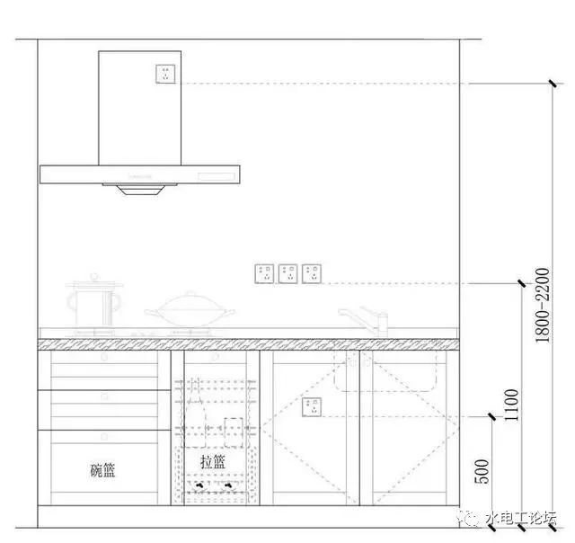
厨房

1、厨房所有台面插座距地1100㎜比较合适,建议安装带开关五孔插座。
2、抽油烟机插座一般距地1800-2200㎜,或放在烟机不锈钢围板里距地2200㎜,结合灶台、操作台的高度来选择最佳的位置。
3、燃气热水器插座一般距地1800-2300㎜,插座要考虑离烟道的距离。
4、冰箱插座最好放在冰箱两侧距地高插1300㎜,或者低插500㎜。
5、迷你烤箱/微波炉,一般插座距地面1600㎜。
6、净水机、小厨宝距地面500㎜,放在水槽柜里,插座加装防溅盒。
7、燃气报警器预留一个插座,安装高度根据燃气现场实际情况确定。

附:电路改造注意事项
1、开关和插座的安装位置和数量,是布线时应慎重考虑的,原则是宜多不宜少。
2、一般情况下,零线为蓝色,火线为红色,地线为黄绿双色线。
3、进户线截面不应小于10平方毫米,灯具用1.5平方毫米的线,开关、插座、接地线用2.5平方毫米。安装空调、热水器等大功率电器的线路则应单独走一路4平方毫米,插座使用16A三孔插座。
4、同一房间的开关或插座的高度要一致。
5、在铺设电线的过程中,要遵循“火线进开关 ,零线进灯头”的原则;插座接线要做到“左零N右火L,接地PE在上”或是“上火下零”。为防止儿童触电、用手指触摸或金属物插捅电源孔眼,一定要选用带有保险挡片的安全插座。另外,需经常开关电源的电器,考虑使用带开关的插座。
6、网络线、电话线、电视线不能同电线穿在同一管路内。
7、新做暗盒线管和线盒连接处要用锁扣进行连接。
想了解更多,请关注室内设计叔,壹品唯创设计机构创始人,8年只专注做好装修设计1件事情。
微博不定期分享装修设计干货,也建了纯装修设计交流群,随时聊聊你家装修事(一对一问诊)
关注微信公众号(ID:shineishejishu)