古老的波尔多是法国第五大城市,18世纪时,波尔多曾被称为“小巴黎”,古城区现今保留着古典庄重的18世纪古建筑群,随处可见的石头建筑也透露着岁月的沧桑痕迹。城区附近的圣埃米里翁小镇,保存有完好的中世纪古镇风格,与优质的葡萄庄园连在一起,在略显古旧的城堡里飘来馥郁醉人的葡萄酒香,正是波尔多历久弥香的气质所在。

维克多·雨果说:“这是一座奇特的城市,原始的,也许还是独特的。把凡尔赛和安特卫普两个城市融合在一起,您就得到了波尔多。”与其他大都市的浮华相比,波尔多是沉静的。
故,青岛的这座波尔多小镇延续了正统的沉静安然,地处崂山山脉以西,大自然为邻,生活在此处的业主定会感受到优雅从容的生活,期待着入住的那一刻…
大咖设计师游学归来
为您定制最流行的大宅方案
设计预订专线:13296392803/15668078957(官方微信)

下面跟随小编一起去这座“小镇”走一走吧……

❆
海尔波尔多小镇-海尔地产崂山区TOP系首发纯墅社区,坐落于崂山前海,项目五山环绕,内揽一湖,近城不亲城,以山林湖海城之势,占据城市上风上水、生态宜居绝版地块,引领金家岭商务区的后花园,打造贵胄领袖的终极居所,1.0的容积率打造 30万方纯墅社区,以纯正法式建筑演绎欧式经典。
日常所需
别墅地处沙子口区域,周边有很多空地待开发,最近的是一些小超市和药房,紧急需要去不了商超的时候倒也可以满足急需。

附近逛逛
附近有银行、特色餐馆、加油站、汽修服务网点以及据说很有名的烧烤店,夏天的晚上闲来无事可以和家人溜达下来撸串呀~

商场超市
距崂山区近年开业的利群金鼎、金狮、百盛、丽达等商超开车20分钟左右的路程,里面餐饮、健身、娱乐应有尽有,是岛城新近的休闲热地。

教育学校
崂山区高校云集,私立学校到公立学校,还有各名牌大学,教育氛围浓厚,文化环境居青岛各区之首。

周末崂山游

站在山上看沧海,山海相接、海天一色、气象万千,享有“海上名山第一”的美誉。
周末家人欢聚时光,距离青岛著名风景区崂山开车只有20分钟的车程,不到10公里的路程,得天独厚,和家人一起感受大自然的灵气......崂山是自海底拔海而起的一座名山。
大宅定制设计完美之家
汇巢别墅装饰是为全球顶尖人士实现环保理想居所的唯一高端品牌,深耕别墅装饰18载,在全国拥有6家高端别墅装饰分公司,累计为5000余户别墅家庭提供了专业的高端环保家装服务,
汇巢别墅装饰秉承环保别墅家装的设计理念、臻选全球顶级环保材料、以纯正德国工艺标准为品质保障,为全球别墅业主带来全案高端家装的服务体验。
大咖设计师游学归来
为您定制最流行的大宅方案
设计预订专线:13296392803/15668078957(官方微信)
目前我们拥有多套波尔多小镇别墅优秀案例。接下来我们就欣赏一下本小区经典设计作品:
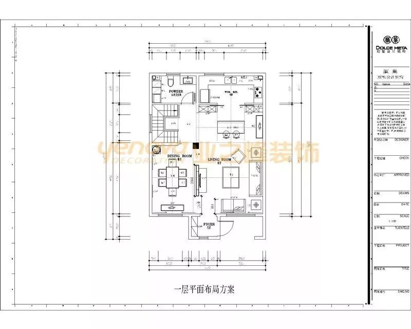
户型面积:下叠 200平
设计风格:简欧
高级设计师:王建
平面方案图

效果图

欧式客厅非常需要用家具和软装饰来营造整体效果。深色的橡木或枫木家具,色彩鲜艳的布艺沙发,都是欧式客厅里的主角。

浪漫的罗马帘,精美的油画,制作精良的雕塑工艺品,都是点染欧式风格不可缺少的元素。

户型面积:上叠 170平
设计风格:现代港式
高级设计师:王建
平面方案图

效果图

布艺主要是沙发靠垫和床上用品在发挥作用。一般港式家居的沙发多采用灰暗或者素雅的色彩和图案,所以,沙发靠垫应该尽可能地调节沙发的刻板印象,色彩可以跳跃一些。

床上用品可以运用多种面料来实现层次感和丰富的视觉效果,比如羊毛制品、毛皮等,高雅大方,既调节卧室或者客厅的整体印象,又与整个居室协调一致。

港式家居设计大多采用黑、灰、白等内敛色调,因此,您的灯具可以采用一些较为丰富的色彩来中和这种灰暗的色调。

2019
青岛业之峰装饰开年钜献
诚意奉上
新年装修大礼包
别墅装修更有定制豪礼
大咖设计师游学归来
为您定制最流行的大宅方案
设计预订专线:13296392803/15668078957(官方微信)

更环保的高端装饰
2009年,推出“环保预评估系统”,旨在对装修污染早知道、早控制、早预防,给客户进一步的保障;
2010年,研发出“环保三重防护体系”,包括“防累积”、“防源头”、“防残留”,将环保落实在装修的前期、中期和后期,环环相扣,为消费者打造放心的环保家装;
2013年,又推出“全环保家装体系”,将空气、用水、电磁辐射污染一并纳入解决方案,为消费者创建一个空气环保、用水环保、装修环保和辐射环保的全方位环保空间。
2006年,推出“蓝钻工程”,包含工艺、材料、环境、管理四大质量保障系统,专注于整个施工过程的系统化,这也是目前国际上最新的和最具系统性的家庭装修施工和管理标准。
2016年12月,“蓝钻工程”全面升级为“蓝钻超级工程”,加入“11大蓝黑科技”,覆盖水、电、木、瓦、油、察6大方面,它们全部是业内领先的最新材料和工艺,能让您的家装更加安全、美观、耐用。

企业荣誉
欧盟SWITCH-Asia可持续装饰装修示范项目
由中国建筑装饰协会授予全国住宅装饰装修行业百强企业;
由北京建筑装饰协会授予3*级A**信用企业;
“业之峰”在商标争议案件中,被认定为“驰名商标”;
获得北京商报评选的中国家居产业“十大家装品牌”;
中国社会福利基金会全球暖流计划公益基金授予“暖心企业”
国际空间设计大赛艾特奖最佳别墅设计奖;
获得中国建筑装饰协会颁发的全国建筑工程装饰奖;
获得中国建筑装饰协会颁发全国住宅装饰装修行业明星标杆企业
【爱·回家】
一样的春节,不一样的年味
1、2019青岛家居圈视频大拜年,31家团拜,这年拜得也太硬核啦
2、忙年,忙点花事,逛逛花市,2019青岛春节花卉选购指南(附地址)
3、都9102年了,今年过年咱家里不扔东西了,时间紧任务重,赶紧的,藏!
4、别跑空!青岛家居卖场、家装公司、建材商2019春节营业时间表!
5、今天小年,明天就要迎来一个像“打仗”一样的过年操作
HAPPY
2019
NEW YEAR
新年快乐
Happy new year
(我们致力于保护作者版权,部分作品来自互联网.无法核实真实出处,如涉及侵权,请直接联系小编删除.转载请标明出处,谢谢!)
·END·
青岛家居网友福利群
分享:装修攻略、经验干货
免费送:地漏、甲醛治理、整屋壁纸等
加小淘微信拉你进群啊
你随手转发的样子真迷人
大家可以添加
装小妹儿(qdzx888)微信、小淘(taoqingtaojj)
留言“我要加装修群”
小编看到了,就会把你拉进群啦~
>>>>回复关键词查阅相关文章:
①回复【验房】,家居小编为你免费验房,报名即享;
②回复【报价】,直接在线算你家装修需要花多少钱;
③回复【招标】,免费获取3套原创设计方案;
④回复【工长】,轻工辅料靠谱工长等你挑;
⑤回复【逛店】,看小编给你搜罗了哪些好物;
⑥回复【维权】,装修遇到奇葩商家,我们用媒体的力量帮你维权;
⑦回复【0】,获得小编私人微信号,与小编一起谈谈人僧