这是我见过最有“温度”的家,不知再用什么华丽的辞藻形容它,53㎡的面积,屋主过着一人一猫的生活,全屋空间利用到极致,动线优化到极致,却依旧能保持“纤尘不染”的效果。
这套案例呈现了这位成都姑娘家中的精致场面,我认为家的“温度”,并不受限于居住人口有多少,而是第一眼看到就能让人无比欣赏和喜爱,即便一个人住也充满温馨气息,这套案例正是如此,堪比文艺电影中的场景,一起看看吧!(图片及案例来源:屋主阿阅,设计师何雨晴、吴晨)

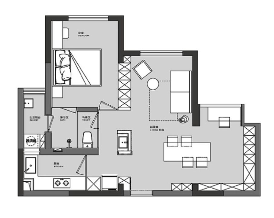
53㎡为房屋的使用面积(数据已扣除公摊),原始户型是一个标准的两室一厅格局。

结合屋主阿阅的生活诉求,设计师做了如上改造,平面设计图和原始户型图已经做了详细的改造对比,所有改造都结合了屋主本人的生活需求,以下请看实景和文字注解,我们一一描述装修细节。

一进屋就被这层次丰富的木色系给彻底吸引了,地面人字拼的实木地板,复古又大气,层次感超强。入户处用到了木色护板把墙面完美包裹,耐脏又有质感。大门左侧是一组中部镂空的鞋柜,采用无拉手设计,完美隐形。

此处利用了房型的下沉区域,在这里打造了独立的洗漱台,并居中布置,四周形成洄游动线通道,让功能和动线四通八达,用起来超级方便。

屋主是个旅游摄影师,平时经常去在国内外不同地方出差,在成都的时间就喜欢宅在家里,享受独处的安静。她的客厅,没有电视机、投影仪,独处时光她更喜欢看各种书籍、文献,提升格局眼界。

客厅是公共区采光最好的位置,阿阅在这里为自己打造了一个小小的阅读角,一张方桌一把软椅,安静又舒适。


背后的木质百叶窗帘可以完美的控制光线,或明或暗,随心掌控。左侧的木色护墙板背后,实际是朝向主卧的衣柜,而最右侧朝向客厅打造了一组壁龛书柜,常用的书籍就可以随手存在这里,方便存取。


灰色的布艺沙发耐脏又耐看,右侧的小斗柜,则能存放很多常用的随手件,陈列挂画丰富层次,款式也非常复古耐看。


而沙发背景墙则留白,白色给人无限遐想,简单干净,未来也有无限可能,随着心境的变化可随意搭配喜欢的饰品。餐厅除了用餐也可临时办公,餐桌底部的地板留有地插。

打通次卧后,整个公共区扩大了,模糊了客厅、餐厅、书房之间的界限,同时增加了行走活动的动线,空间也随之瞬间变得宽敞大气,采光效果也倍增。

虽然是一人一猫的生活,但自己最要好的几个朋友,也住在这个小区,平时经常来家里串门,所以并不孤单。餐桌椅居中摆放,沿着餐桌椅四周的动线在墙面布局了一圈收纳区域,让空间灵动又实用。地面安装了地插,可以给电器通电,朋友也是自己的创业合伙人,来家中办公此处也能充当会议桌。



由次卧改成的开放式书房,靠窗区域是一个手工区,右侧洞洞板陈列了各种景物,方便屋主平时拍摄用。热爱生活的屋主喜欢原木,木头是一种有灵性有质感的东西,温润又耐看,出差时她也经常收集零碎的小物,有闲暇时间她也会动手自己做一些手工,一个人住生活也丰富多彩!

尤其是搭配了木质百叶窗帘后,在光影的作用下,随手一拍都堪称文艺电影当中的场景。

洞洞板细节,可以根据自己的喜好组合各种挂钩、小隔板,用于陈列不同的物品。

书房过道是半圈收纳柜,一部分做了隐形柜门,一部分做乐猫道。

猫咪也是家庭的成员,给它打造了一个属于自己的小天地。



猫道从转角区域的柜子,一直通向顶柜当中,柜门采用了透气的钢化网,到了夜晚这里也是它的猫屋。

而猫道下方则是存书区,这里摆放了一组成品大书架,存入了满满当当的书籍,好友来家中也可以一起阅读。虽然家里有猫还有大量书架,但只要阿阅在家中,就能保证处处纤尘不染,生活非常自律。

客厅左侧就是卧室了,我们门洞紧挨着洗漱区洄游动线。


此处和墙面结合起来,打造了隐形门,简约不简单。

洗漱区左侧,为入户打造出了一个小型的玄关区域,这里也是进入厨房之前的缓冲区和收纳区。

牵一发动全身,改造后,厨房也被一分为二,内部为中厨区域,有玻璃门隔开,外部为过道收纳区,左侧紧挨墙体摆放冰箱,周遭还有隐形备用收纳柜,储物功能强大,条理清晰。各个空间联动性也超强,生活效率极大提升。

柜子最左侧紧挨入户门,侧面还有一组全身镜,方便进出门整理仪容还能拉伸空间。利用实木地板抬高地面的小错层,门口做了一个小型的入户下沉区,摆放地毯,让灰尘停留在门口。

从这个角度,就能彻底清晰洗漱区和周边区域的关系,外置的洗漱台用起来十分方便,便利了自己也便利了客人,右侧就是马桶区和淋浴区。

此处用到了磨砂玻璃门,透光不透影。镜子采用了悬空的模式,双面都有镜面,设计感很强。

改造后的卫生间,现在变成了三分离式,淋浴房和洗晒阳台两两合并,可以从卧室进入。而洗手台和马桶区,两两独立,从外面的过道就能直接进入,这样一来干湿区域被彻底分离,干净卫生,且方便自己和客人使用。

而淋浴房和马桶区中间,用磨砂玻璃隔断进行了隔开,马桶安装了智能马桶盖,顶部安装了大吸力排风扇,不必担心有味道。

L型的橱柜布局,平时较少做饭,出差时会提前把锅具洗好晾干,都收纳到抽屉当中。

地柜专门预留了一个抽拉凹槽,这里可以陈列电饭锅以及备用的蒜头、葱姜。

床头用到了非常复古的纯实木板铺贴,打造了半护墙板。

右侧搭配中古高脚桌,相当复古耐看。

这里也兼备梳妆台功能。


床头小细节,左侧的床头柜是屋主自制的,用了一个废弃的柜体加上报纸拼接起来,看上去好个性。

床对面就是前面提到过的衣柜了,全部采用隐形门设计,内置弹簧器,按压就可以开关,完美弱化了柜子的存在感,看上去就像护墙板一样充满质感。

阳光洒进卧室,太美了。

从卧室门口看洗漱区。

洗漱台右侧的小隔断墙壁,做了一组壁龛,这里可以存放常用的漱口杯、护肤品。
本案就分享到这里了,这样一个以原木色为主充满温馨感的家,你喜欢吗?感谢各位的阅读,在这里也感谢设计师的优质装修案例,祝福屋主越来越幸福!