今天大兰液压小编给大家简单介绍下甘蔗联合收割机液压系统
甘蔗收割机分整杆式和切断式两种机型。本文介绍的甘蔗联合收割机属于收割青叶整杆式机型,它可与多种中型马力轮式拖拉机配套使用。一次可完成切稍、扶倒、底切割、喂送剥叶、清理分离、集堆卸蔗联合作业。其结构简图如图1所示。机组外形尺寸为长8.5m×宽3.15m×高2.65m。机组重量为6350kg。

图1 甘蔗联合收割机结构简图

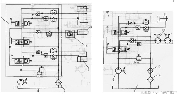
图2 甘蔗联合收割机液压系统图
液压操纵系统为两个独立的开式液压系统,如图2所示。一个系统由齿轮泵1从油箱8吸油向主油路供油,经三联多路换向阀2,操纵双作用缸6、单作用缸4、并联双作用缸3,实现收割机割台升降,切稍器升降,集蔗卡的转向等动作,其中单作用缸4的上升速度由调速阀5设定,系统回油路经过滤器7回油箱。
另一个系统由齿轮泵9从油箱15吸油向主油路供油,经双联多路换向阀10.操纵两个串联摆线液压马达12,及双作用缸11,实现切稍及集蔗卡升降的动作。由于多路换向阀为并联油路,每组液压缸和马达均可独立操作互不干扰。多路换向阀通往各液压缸及液压马达进出油口处都集成有液控单向阀,组成锁紧回路,可保证液压缸及马达位置固定。同时集成有单向节流阀,在液压缸下降时起到缓冲作用。集蔗卡升降液压缸11进口处串联调速阀,以控制上升、下降速度。系统最大工作压力由集成在多路换向阀中的安全阀调定。多路换向阀回油经冷却器13、过滤器14流回油箱。

大兰液压系统
感谢每一位阅读本文的朋友,您们的理解与支持是我们前进的最大动力。如果您觉得本文还不错,想要了解更多液压行业有关资讯,欢迎大家关注我们微信公众号大兰液压系统。
-----责任编辑:大兰企划部(大兰液压)