这套房子是我隔壁王老师的家,很荣幸可以和书生意气的隔壁王老师成为邻居。因为我们去年是刚交房的楼房,在装修时我们都回会隔壁几间看看隔壁的装修情况怎么样,装修的不错我们也可以参考。现在隔壁王老师的房子装修好了,叫我发出去给大家看看,希望大家雪亮的眼睛能给他的房子给一个评判!
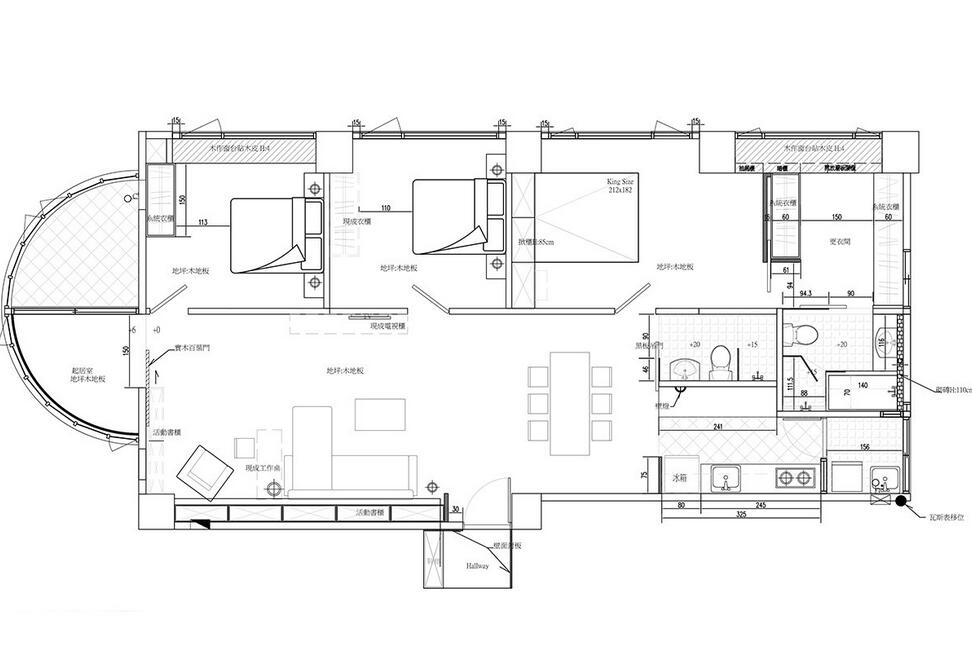
房屋平数:132平
风格:北欧风格
户型:3居
造价:9.8万
空间格局:玄关、客厅、餐厅、厨房、卧房×3、更衣室、卫浴×2
主要建材:进口彩色釉面砖、实木百叶、海岛型超耐磨木地板








———————分割线————————
这样的装修你喜欢吗?
装修其实很轻松!点击下方我们帮你搞定!
关注微信公众号获取更多咨询: zhuangxiudashen (家居装修大神)