
清凉山居
等风来,不如追风去
清凉山居项目位于城市主脉——朱雀大街与西部大道十字西北角,西安城区内的山体景观公园,清凉山森林公园内,公园占地564亩,绿化率90%,内含1.8万平米的大兴湖,开皇广场,安济桥,开皇盛世广场等景点;东临曲江新区、航天城,西接高新区,南依大学城,北近城南CBD板块,处在4大板块区域的核心交汇处。
产品户型分为上叠、下叠两种:下叠为1、2层加负一层;上叠为3、4层加阁楼层,面积区间为212—269㎡。今天主要针对上叠户型给大家做一详解。





清凉山居 别墅叠拼户型全案解析
A户型方案篇
此户型为上叠户型,共分为三层:三楼、四楼和顶层阁楼。
一层原始结构

此户型相对来说采光还是比较好的,户型也比较合理,但是唯一不足的一点就是入户直对卧室门,而且一层仅有的一个卫生间是个暗卫。
二层原始结构

二层各个空间户型方正,后期空间利用率高;整个户型空间布局合理,方便后期生活,各个功能区的尺寸比例规范。
三层原始结构

一层平面布局

一层将客厅与阳台墙体拆除,整体上扩大了客厅的空间,楼梯旁做了屏风,解决了入户直对卧室门的尴尬。
二层平面布局

二层主要是休息区,主卧配备了衣帽间和卫生间,次卧旁边设置了公卫,同时还增加了儿童房以及书房。很好地满足了日常功能需求,居住舒适度高。
三层平面布局

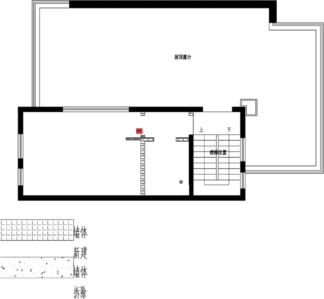
顶层阁楼室内空间并不是很多,除了保留原有的卧室和卫生间之外,增加了露台,方便平日的休闲和朋友的小聚,平添几分惬意。
设计参考配图









B户型方案篇
此户型也是上叠户型,共分为三层:三楼、四楼和顶层阁楼。户型结构与A户型大体一致,局部略有不同。
一层原始结构

二层原始结构

三层原始结构

一层平面布局

一层同样是在楼梯旁做了屏风,避免了入户直对卧室门。客餐厅原有的格局没变,只是将阳台作为了一个喝茶休闲的地方。
二层平面布局

二层的空间结构与A户型差别比较大,设计师并未增加过多的休息区,而是将主卧的空间及配套功能区扩大,提升了空间舒适感。
三层平面布局

阁楼层主要作为休闲娱乐区域,配备有健身区,娱乐区,多功能区:多媒体、手工、棋牌、烘焙、阅读……休闲娱乐于一体。
设计参考配图




清凉山居专案设计团队感兴趣请关注头条私信。
