意大利符号学家Umberto Eco在谈到意大利设计时说:“如果别的国家有一种设计理论,意大利则有一套设计哲学。”
传统的繁复与当代的简约均在这个艺术国度做到了极致,1956年诞生于米兰的家居品牌Rimadesio便承袭着终极简约的天然基因。

△Rimadesio米兰总部 ©www.rimadesio.it
意式极简遇上“淡妆浓抹总相宜”的杭州
从昔日文人笔墨下的天堂之境,到如今成为中国最具品牌意识的城市之一,杭州以人文厚度与时尚吸附力粹炼出“生活品质之城”的定位。Rimadesio将其全球第44座展厅选址于此,足见杭州作为新一线头部城市的购买潜力和辐射效应。

△Rimadesio展陈 ©www.rimadesio.it
作为杭州本土的室内设计中坚力量,GFD广飞专注服务于高端房企、酒店、商业,此次为全球各地豪宅项目中最受青睐的Rimadesio产品打造杭州展厅,是继零八年将意大利数个顶级家具融入九树,一五年将德国顶级橱柜bulthaup融入悦蓝会设计后,再度与世界级家具品牌的深度合作。

△公元大厦效果图
杭州Rimadesio展厅所在的公元大厦坐落于西湖区核心商圈,该大厦由德国GMP建筑师事务所操刀设计全程品控,是杭城利落理性的现代地标。大厦室内铺陈从建筑的基本架构出发,精工、严谨,与Rimadesio极简的意式奢华美学相得益彰。

△杭州西湖 ©Getty Images
以“家”的概念延展生活场景的无限可能
室内叙事有意营造亲和感的居家氛围,以展示Rimadesio覆盖近80%家居系统的高效性能。家的动线贯穿客餐厅、工作间、卧室及衣帽室等功能区,将直线分割的空间界面与美学的韵律节奏相结合,演绎出多元平衡的生活场景,也与静驻于每个角落的Rimadesio家具形成统一和谐的整体。




△起居室
透着自然肌理的大理石自成泼墨写意的背景,餐桌以圆形姿态寄寓中国人对于家庭祥和的美好向往,同时与办公长桌构成方圆之间的张弛之道。细部陈设有着艺术雕塑般的几何美感,壁面内嵌的隐性灯带烘托出柔性的氛围并扩增空间尺度,使一器一物如同生命体般呈现与隐匿。





△餐厅
木头与磨石面以自然原始的肌理,为约150平方米的有限体量注入无限生机,高度环保且极具可塑性的玻璃和铝合金与之呼应,以细腻的触感丰富了空间层次。无论建筑结构、室内装饰或产品系统,皆以流利笔挺的线条和低度的颜色,将品牌低调谦逊而臻于品质的气度娓娓道来。






△书房
极简之下暗藏玄机,细节落地精确到毫米
从自由组合的层架到步入式衣橱,度身定制的多元化体系为日常收纳与展示功能提供可能的方案。无任何多余套线的推拉式移门精准围合成隔断系统,墙体之间皆留有精确到毫米的空隙,在“落地无痕”的开合之间营造灵动的呼吸感。







△衣帽间
精细极简场景下是研究上大量的投入和近乎较真的细节落地,设计上从各处理性的推演出最优的空间细分尺度,使杭州Rimadesio以一种宜居的平静语境,完美诉说有关结构、材料和空间协调性的品牌故事。




△衣帽间

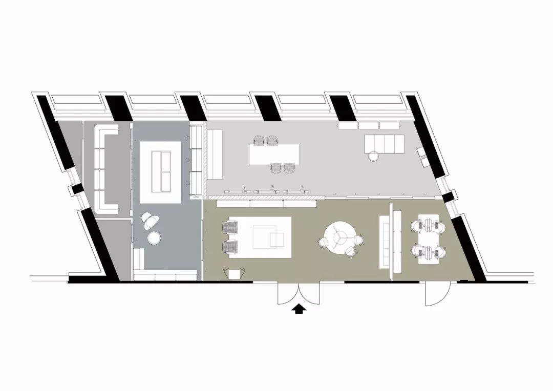
△平面图项目细则项目名称:Rimadesio杭州展厅项目性质:商业展厅设计项目地址:杭州市西湖区求是路8号公元大厦室内设计:GFD杭州广飞室内设计事务所设计协调:叶飞主案设计师:Lucia设计落地:刘骅莹项目面积:140㎡完工日期:2018.12主要材料:Techsize岩板、PERGO地板、EYCO涂料 业主:麦迪森集团摄影:刘钢强

GFD杭州广飞室内设计事务所GFD广飞设计,创立十余年,致力于专业地产/酒店/商办/高端私宅设计。两位设计总监均毕业于中国美院,深造于米兰理工大学和伦敦艺术学院,并有长期丰富的教学经验,主创团队皆来自于国内外专业设计院校。从空间到陈设,从方案到施工图,一体化设计品控,历年均有作品在国际专业设计平台发表,屡获国内外各类专业设计大赛奖项。旗下分设广飞设计与千渡家居,搭建整合优质设计跟全球产品资源,作品分布于国内各大城市,近年来亦在纽约/悉尼/温哥华/洛杉矶/香港分别有高端私宅一体化定制设计。代表作





德信九溪云庄生活





苏州运河与岸雅奢生活馆
(来源:GFD杭州广飞室内设计事务所,版权归原著所有,文章由中装协设计网整理)欢迎设计师投稿,邮箱:2733205157@qq.com