1、项目背景:妇儿医院里的口腔门诊
2015年,我们为大连美琳达妇儿医院提供了全案设计服务,助力其高分通过JCI认证。

外观夜景(2016年初,医院交付伊始)
5年之后,我们和美琳达妇儿医院再度合作,
在医院内部交付了一个200平米的口腔门诊——美琳达联合口腔,帮助业主完成医院运营策略的优化调整。

这个口腔门诊已于2020年12月正式投入使用
2、改造设计方案:功能和美学的融合
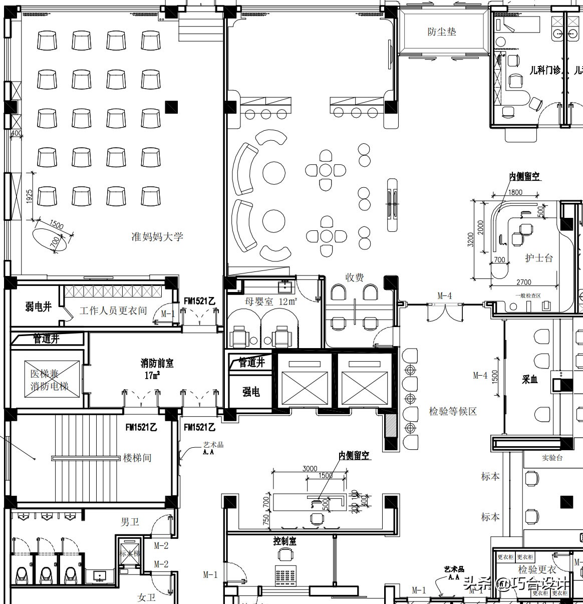
这个项目属于空间改造类,位于医院的B1层,原空间为准妈妈大学、儿童活动大厅及电梯厅。

原平面
改造设计的第一步,就是通过空间结构的打通和隔断,重构空间功能。
比如以数字化会诊室作为区域中心,分区设置接待、门诊、消毒、医技单元,做到医患活动流线不交叉,洁污分流。

平面调整
其次是室内环境的重塑。
现代科技是空间设计的主题诉求。所以,将纯粹白作为主题色,以强调稳重和平衡,并且在视觉上有提亮及延展空间的奇妙效果。

口腔接待设计方案
另一方面,空间稳重却也不失意趣:
玻璃隔断塑造出空间通透感,
吊顶照明流线灵动,
白色墙体暗戳戳地用上了装饰线条,用华丽的小细节为场景增添光彩。
还有拼色沙发椅的色彩应和,清新如春。

大厅等候角度1设计方案

大厅等候角度2设计方案
如果说简约和隽永,才能让空间审美历久弥新。那么医疗功能的安全保障,则是获得用户信任的底气。
所以,口腔治疗室区域的设计也是相当严谨和细致。
从日常清洁及院感防控的角度考虑,治疗室内的夹角采用弧线设计,建筑材料也都具有便于清洁消毒及耐用的性能。洗手台面则增设隔断,以防溅水。

口腔治疗室设计方案
另外,设单间治疗室,既有助于院感防控,也是创造舒适私密治疗空间的体现。

儿童牙科治疗室设计方案
3、项目落地:小而美的环境体验为医疗服务加分
当下的口腔医疗服务被赋予了消费属性,所以在空间设计上除了功能布局,还应该合理地表现环境美学。
美琳达联合口腔门诊的设计,以简约的设计手法完成空间功能的调整,并塑造出现代感的医疗氛围。
当项目完成施工,落地实景亦呈现出小而美的环境氛围。

入口接待

大厅等候1

大厅等候2

数字化会诊中心

儿童牙科治疗室
项目信息
项目名称:大连美琳达妇儿医院.美琳达联合口腔
项目面积:200㎡
设计内容:室内改造/软装设计
设计时间:2020年9月
专注医疗空间设计