三环内的白沙洲一直是武汉购房者主城选房的的热门区域,毕竟城市洼地不多,按照排队理论以及城市配套的建设速度,价格洼地区域会慢慢填平,所以武汉楼市价格洼地白沙洲一带的楼盘,刚需置业者也趋之若鹜。虽然现在白沙洲片区配套还不够完善,但是白沙洲不少楼盘并不好买,还需要手速。
不光价格低的“钢丝盘”难买,一些价格并不低的品质盘也同样呈现一房难求的局面。比如区域最高毛坯价的中建铂公馆,虽然所推毛坯价和周边的带装修住宅相差无几,但卖一次、光一次,十月份它又有新房源加推,所以刚需、品质刚需、改善客户需要早做打算。

本次加推房源
中建铂公馆预计10月加推1号楼和8号楼,建面约106平-160平,3-4房的毛坯户型,顾问宣称,项目本次均价预计16000—17000元/平(具体以备案为准)。
从楼栋分布位置来看,1号楼位于小区西北角位置,距离小区规划的商业地块较近。8号楼位于小区中间位置,在小区自带的幼儿园北侧。

从楼栋具体情况来看,1号楼共44层,一个单元,其中一楼架空为底商,8号楼48层,1楼架空。两栋楼都是3梯4户,都是1个单元,17、34层为避难层。
产品解读:
1号楼由建面约106平D1户型和建面约128平的D2户型组成。
建面约106平的D1户型为南向户型。
优点:动静分区明显,厨房带有南向生活阳台。客厅和阳台相连,面朝小区园林视觉景观效果较好。
缺点:餐厅采光略有不足,卫生间窗外是生活阳台,隐私性不足。
建面约128平的D2户型为南北通透户型。
优点:南北双阳台通透采光佳,主卧和北向次卧也可达到南北通透。入口处单独一间房可设计成多功能房、客房或者老人房,和另外2间卧室分开避免打扰,3间卧室均有飘窗赠送空间。
缺点:客卫位置有些偏入口处,不是居家使用的便利位置。入口玄关位置偏扁长,有一定的空间浪费。

8号楼由建面约111平C2户型、建面约136平的C1户型以及建面约160平的C3户型组成。
建面约111平的C2户型为南向户型。
优点:户型动静分区明显,主卧为带有步入式衣帽间和卫生间的套间。超宽阳台舒适大气。
缺点:和客厅相连的次卧隐私略不足。
建面约136平的C1户型为南向户型。
优点:户型方正,带有明显动静分区,客厅和阳台相连,客餐厅带有南北双阳台。
缺点:户型的走道位置有点多。
建面约160平的C3户型为南向户型。
优点:动静分区明显。厨房带有南向生活阳台。客餐厅和2阳台相连,通风采光和观景效果好。
缺点:没有单独的玄关空间,主卧内的储藏空间并不是很多人都喜欢,或许有人会觉得是空间浪费。

项目详情
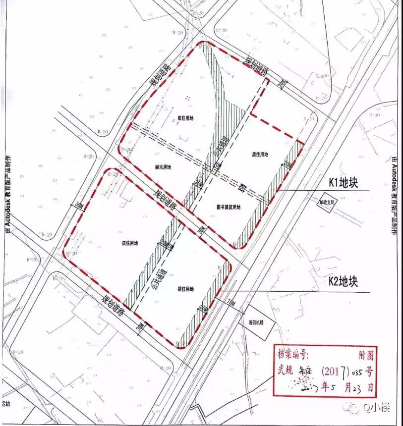
中建铂公馆项目位于洪山区白沙洲大道与八坦路交汇处,其所在地块为原长利玻璃厂片地块,处于白沙洲大道与杨泗港大桥相连处的门户地段。
2018年1月12日,中建三局以39.1亿底价拿下白沙洲P(2017)190号商住地块,成交楼面地价6528元/平。


P(2017)190号商住地块分为K1、K2两个地块,总用地面积174950平,2个地块内各规划有一所9班幼儿园。
中建铂公馆首推的K2地块占地面积74566.1平,总建面约392382.27平,计容建面约277886.22平,其中住宅建面约269370平方米,有2200户,算下来套均面积约122.4平,建筑密度在13.84%,规划机动停车位总数有2764个,其中住宅部分有2694个车位。


中建铂公馆K2地块的容积率为3.73,整体规划11栋楼,全部为34-48层超高层住宅。

(K2地块楼栋分布图)

(K2地块楼栋日照分析图)
另外,中建铂公馆K2地块自带一个9班幼儿园,中间有公共道路隔开。
所在区位
大区位:中建铂公馆在三环内,地处洪山区白沙洲,位于白沙洲大道与八坦路交汇处。

小区位:中建铂公馆K2地块北边为项目的K1地块以及八坦路、杨泗港快速通道;东边是白沙洲大道高架、武昌工学院和青润家园;西面是菁英城,南面是青青花园。

中建铂公馆属于二三环之间的白沙洲板块,紧邻白沙洲大道。虽然商业配套和环境不是特别完美,但是刚需楼盘集中,关注度一直很高。而且今年上半年整个白沙洲新推房源备案价都一直在攀升,购房门槛越来越高。
交通配套
地铁:中建铂公馆所在区域内规划有地铁5、11、12号线,其中5号线的江国路站距离地铁约1.4公里、12号线的罗家村距离项目约1公里,规划的地铁11号线张家湾站也在项目附近。

(具体地点站点位置以实际情况为准)
公交:周边距离最近的就是白沙洲大道张家湾站,直线距离不到300米,有10多趟公交,可去往经开方向的永旺梦乐城,也可以直达积玉桥、街道口、螃蟹甲等核心区域。

(周边公交线路及站点距离示意图)
自驾:中建铂公馆紧邻白沙洲大道,南北可以走白沙洲大道、白沙洲高架,连接二环与三环,可达武昌核心和光谷。
另外:规划中的新武金堤路,未来直接连接到和平大道去往徐东青山。从城投集团获悉,新武金堤路北段(武泰闸至江国路)项目已正式动工,道路全长3.1公里,计划2019年完工。

整体来说交通还比较便利,虽然从中建铂公馆小区小区不是地铁站口,但和12号线罗家村站相隔仅1公里,并且有白沙洲大道相连,可公交转乘到达。自驾出行的话杨泗港大桥距离项目很近,过江与白沙洲大道交汇形成八坦路立交,目前立交已预留有匝道口,待通车后交通将更为便捷。
生活配套
商业配套:中建铂公馆在K1地块规划的大体量商业街区,该地块用地属性为娱乐用地和图书展览用地。项目自带8万方商业算是一个较大优势。

(自带商业)
项目商业配套不只有自带商业体,周边还有万科云城,规划有5栋商务办公约12.8万㎡,情景式商业街区约3.2万㎡。

(万科云城)
另外,白沙三路以北的地块是居然之家白沙洲店,已于2018年3月正式签约。目前居然之家商业体已经在建设中,距离项目大约1公里远。其业态包含了酒店、写字楼、影院、家居卖场等。
居然之家白沙洲店在白沙三路与白沙洲大道交汇处,据说10月份要开业。居然之家南边地块则规划有一栋7层的商业体,规划显示1-5楼为商业,6-7楼为酒店。
与中建铂公馆距离大概3公里远有已经规划的清能清江锦城40万方商业,在未来可以做一个有力的商业补充。

(居然之家)
教育配套:中建铂公馆的K2地块自带有一个幼儿园,另外周边距离最近的就是张家湾小学,张家湾中学等,此外周边紧邻K2地块的位置还有规划的教育用地。

医疗配套:距离中建铂公馆最近的医院是武汉大学湖北省人民医院,直线距离约6公里以上;区域内规划有两所三甲医院,分别是武汉大学湖北省人民医院洪山院区和省妇幼分院,分别在白沙三路和白沙二路上。其中前者已经规划出炉,后者则还在前期规划中。

综合点评
1、项目位于三环内主城区,虽然目前配套不够成熟,但是周边居住小区集中,人口增长后配套变化会比较大。
2、目前交通状况一般,周边有地铁规划,但是非地铁口楼盘,距离最近地铁口约1公里需要转乘。
3、自身规划有8万方商业街区,目前周边大型商业匮乏,不少楼盘会依托此处商业,但是短期内估计商业街难以形成气候仅能满足居民日常所需。
4、价格方面,项目上次毛坯备案价已达到白沙洲片区最高点,预计下月加推很有可能还会略涨,直逼万科地王地块带装修项目的(前期均价16600元/平,含2500元/平装修)标准价格甚至比同区域正商带装修盘价格还贵,确实底气满满。
周边楼盘动态
万科云城:加推3#、7#楼,建面约118-171平非毛坯房源,前期均价约16623元/平米。
富强天惠园:预计下半年首次开盘,售楼部即将正式开放,首次推出建面约93-122平米高层住宅。
正商金域世家:加推3号楼,主推建面约115、127平房源,前期5、7号楼剩余少量建面108-127平房源在售,带装修均价约15020元/平。
东原启城:加推7号楼100、110、131平带装修房源。
融创望江府:融创望江府首推1、2、4号楼建面约92、115、128平带装修滨江房源。
景瑞·天赋滨江:3号楼少量建面约130㎡非毛坯房源在售,均价约14070元/㎡(含2500元/㎡装修费用),预计11月加推新品。
新力城:10号楼已于9月13日开盘,主推建面约122-132平非毛坯房源,均价约14070元/平米,其中含2500元/平米装修,目前尚有房源在售,前期16号楼少量建面约122平三房在售。
旭辉华宇江悦府:加推21号楼,主推建面约113、140平米非毛坯房源。
美好长江首玺·汉玺:预计10月加推建面约96-123㎡非毛坯房源;前期仅剩少量建面约212、256平非毛坯房源在售,均价约14000元/平,含2500元/平米装修。
楚天都市沁园:预计10月加推朗云系A2号楼,主推建面约109、127平湖景房,目前正在收资料中,前期均价约14700元/平米,含中央空调。