
「夯土为墙」
Rammed Earth Wall
夯土是一种建筑材料,是利用随处可见的土壤,经过加工之后而成。
土壤是一种随处可见的低成本和可持续的资源,将其用于工程建造可以最大程度地减少对环境的影响。

建造一个夯土墙,需要将含有正确配比的混合物(沙,碎石以及粘土,有时需要添加稳定剂)压缩进一个拥有外部支撑的模板或者模具之中,来制成砖块或者整栋墙。
红泥、粗砂、石灰的三合土中的空隙经过夯实的动作之后,会变得更结实。

在现代建筑工程中,则采用石灰,水泥或沥青乳化剂。一些现代建造者也混入染色的氧化物和其他物品,如瓶子,轮胎和木料来丰富结构的多样性。

整栋墙的建设从一个临时的模板开始,而模板通常由木材或胶合板制成,作为决定每段墙体尺寸和形状的模具。


模板必须坚实并做好支撑,墙体两面的模板也必须固定在一起,以防止巨大压缩压力所造成的膨胀和变形。

潮湿材料被倒至模板里,然后被压缩到其原来一般的高度,材料必须一批一批、持续挤压,逐渐建造到模具的顶端。

现代工程建设则采用十分有效率的气动夯实机来完成。

一旦墙体完成模具就可以立即拆除,特别是针对需要制作的自然表面纹理墙体,是普通工业化建筑材料没法达到的。

今天超过30%的全球人口,采用土壤作为建筑材料。从潮湿的北欧到非洲的干燥地区,夯土被广泛应用于世界,各地的各种气候环境中。

下面是 5 个部分采用或全部采用了夯土墙的别墅案例,希望你能从中领略到夯土墙别样的美。
01.
Spring Ranch
设计丨Feldman Architecture

美国建筑公司 Feldman Architecture 在加利福尼亚山谷中的一个农场上,建造了这个静修的别墅。
你能看到这栋别墅的外墙是夯实的土墙,拥有红色和灰色的分层色调。另外还有不同的石墙卷附在夯土结构上,构成了房屋的其余部分。


室内的部分,还以木材制成了人行道、台阶和天花板、楼梯,用来补充夯土的色调,另外用了黑色的 Y 形钢柱来作为支撑。

夯土墙面在阳光的照射下,与其他的线条共同形成了一个朴实、舒服的视觉效果。






02.
A Pavilion between Trees
设计丨Branch Studio Architects

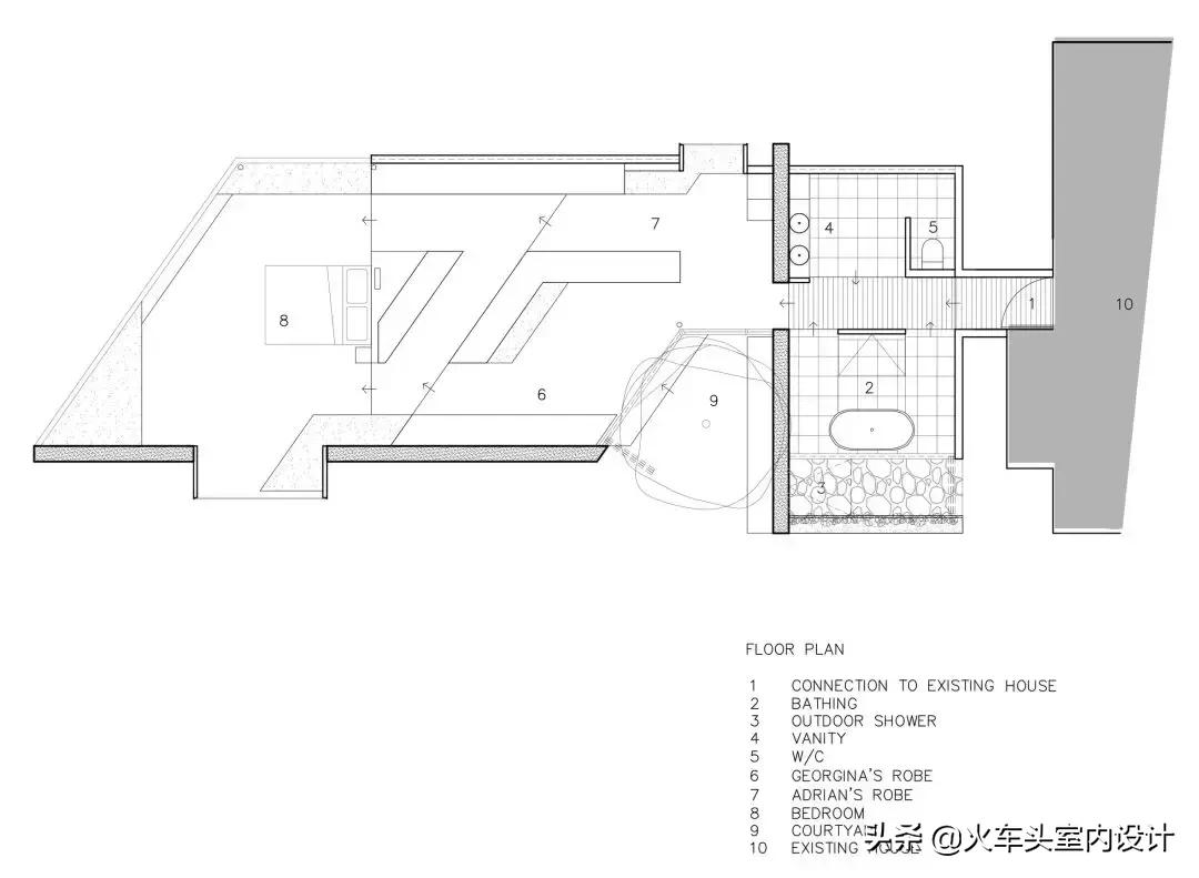
这栋位于墨尔本的房屋拥有深沉浓郁的气氛,由当地工作室 Branch Studio Architects 扩建。
他们利用了深色的夯土为建筑立起了具有低调纹理和层次感的墙面。


深色的夯土墙面为整个室内提供了非常沉稳、平静和亲密的空间感。



夯土材质的粗糙与浴室镜面的光滑形成对比,室内还采用了青石砖、混凝土、钢材与木头等材料,与夯土共同融合为一幅美好的画面。


浴室的淋浴区、浴缸区是露天的,与室外的空间连接起来,在这里沐浴就如同在大自然中沐浴一样,天然而坦然。








03.
Secular Retreat
设计丨Peter Zumthor

来自瑞士的知名建筑师彼得·卒姆托,也利用过夯土来做自己的建筑。这座名为 Secular Retreat 的别墅已有 10 多年的历史。

夯土的材料在英格兰南德文郡的山顶上,与周围乡村的美丽景色一起,将空间、光影融合得非常舒适而自然。


别墅本身的布局还是相当简单,风格也非常朴素,有着现代主义简约的美感。这栋房子目前还处于提供短期租赁的阶段。


04.
Vineyard House
设计丨Blaanc

建筑公司 Blaanc 在葡萄牙的葡萄庄园中,利用层层压实的夯土墙,为这座 319㎡ 的别墅点缀出自然、和谐的氛围。

这栋单层建筑名为「Vineyard House」,由三个相互连接的建筑组成,将卧室和家庭、办公室的居住空间分开。


夯土墙与板条天花相结合,有助于在夏天提供两双的室内环境,而冬天的时候也能提供温暖的环境。
夯土在整个充满大自然气息的环境氛围中,营造出了独属于绿意盎然的自然美学。


室内的部分则是能看到大片大片的白,而夯土墙的存在为整个空间又提供别样的美。





05.
Tucson Mountain Retreat
设计丨D U S T ®

这栋立于沙漠之中的房屋,是由 D U S T ® 设计的度假屋,在这里能欣赏到原始广阔的沙漠景观,看到众多高松的仙人掌。


别墅以夯土为主要材料,是一种对沙漠、对自然的致敬,通过夯土柔和的色调和丰富的质感,让整栋别墅与景观几乎融为和谐的一体。










