



未来壹号在总体布局、立面形式、景观设计等诸多方面体现出对城市环境和人文内涵的尊重和关注。 建筑师在设计的过程中不断拓展当下和未来的时空维度,通过合理的布局策略、独特的形式语言,让建筑成为城市形态的有机组成部分。


山水风和:重构诗意生活
项目位于济南东章锦片区——济南向东发展咽喉地带。项目依经十路城市交通大动脉、坐拥多维度立体交通网络。区域有济南最大商业配套用地“文旅城”,可享受约26万平方米的商业综合体,更汇聚高端企业上千家,是济南的“科创产业聚集地”。项目西侧还规划中小学,教育资源丰富,周边规划配套较为完善。


济南东部生态群山围合的环境是项目的景观屏障,藏风聚气,自然资源丰富。土河自西北向东南流经整个社区,项目尊重城市的自然肌理,将建筑沿土河两侧规划布局。已经建成的部分位于土河北岸,是项目一期。建筑师对整个社区的风场进行模拟计算和综合分析,并结合日照分析,采取通透开阔的大尺度间距的建筑布局,让居民尽享广阔的蓝天,沐浴温煦的阳光。

土河边的小路,呼应了河道及地形特点,与绿荫掩映的小桥一起,营造一种“山水田园”的诗意意境。 建筑融于自然,赋予都市治愈而充满生机的能量。 让年轻人在追逐梦想的同时,能够回归从容舒适的生活节奏。

未来社区:科技与人文的碰撞、融合
建筑师通过东西向折板设计将建筑进行视觉分割,打破了很多住宅同质化的立面表达。 竖向线条营造了建筑的秩序感,而横向线条的细化处理创造了建筑精致的轻盈感。建筑转角处iPhone标志性的圆角曲线,柔化了建筑的刚性特征,使建筑整体极具“未来感“。

建筑立面采用非轴对称和轴对称两种设计方案

同时,灵感源自于后印象派修拉作品的iPhone圆角所带来的艺术美感,呼应了“山水田园”的柔美意境。 而建筑师对于莫兰迪高级灰色的大面积的应用,铺陈于建筑的每个细节之中,也为项目增添了人文内里。


建筑师抓住了多数现代艺术家所追求的简化之美的精髓,摒弃繁复的装饰,追求简洁、干净的立面视觉效果。 以简约又不失内涵的建筑语言,传达了建筑整体宁静、典雅的质感,契合城市精英从容利落的生活态度。 科技美学与人文美学在这里碰撞、融合,带动项目成为未来城市社区的典范。


时空流动:空间在时间中流动、生长
4栋小高层,3栋洋房周边式布局,围合而成了中庭空间。建筑师设计了供居民漫步的慢行步道,以及开放的多主题共享公共空间,供休憩、纳凉、社交、亲子玩乐。社区邻里客厅,链接儿童乐园、林下会客等多维度绿色生活体验,满足不同年龄段的居民对于室外空间的需求,促进邻里互动和社区融合。


项目户型设计采用客餐厨一体化设计,空间得以互通互联、功能多变,让生活场景更丰富,为家人提供多场景的交流时间。

超大宽厅,空间多场景的自由组合、切换,从二人世界到三口之家乃至四世同堂,能够实现人的全生命周期的转换。居民的一次购房可以解决其一生对空间的需求。


这种流动的、贯通的、隔而不离的空间理念实际上源于中国古代文人和园林工匠对于空间的处理。

T2双拼墙身细节对位原则

开放式的超大观景阳台赋予空间以无限想象,布置不同的使用场景来匹配不同特点的家庭,让居民足不出户便可尽享阳光权。 居民可以在这里阅读、玩耍、瑜伽、交流,让空间在时间中流动、生长。

T2双拼墙身墙垛对位图



此外,建筑师团队还运用“海绵城市”的理念,设计多种透水地面与雨水处理系统,降低径流流量,缓解城市排水压力,同时涵养水源,促进河水资源循环系统生态平衡。


项目还赢得了专业平台的认可, 荣获第六届REARD全球地产设计大奖金奖(居住类建筑)和第六届REARD全球地产设计大奖-杰出设计师奖。 Cendes将持之以恒地推动住宅设计变革,开拓更具高度的人居设计典范。


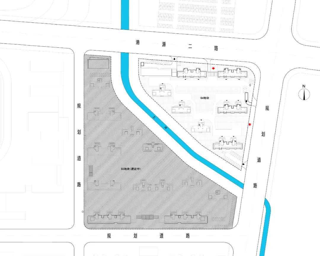
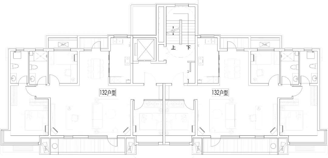
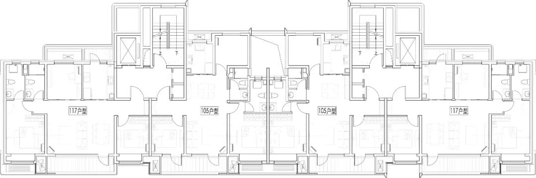
项目图纸

总平面图

132平方米户型

105和117平方米户型
融创未来壹号2020-2023山东济南
基地面积:18258 ㎡建筑面积:55227.71㎡项目地点:济南市历城区章锦片区业主:济南历城控股,融创中国•北京区域济南公司建筑设计:华图山鼎设计股份有限公司施工图设计:同圆设计集团股份有限公司景观设计:凯盛上景(北京)景观规划设计有限公司
摄影师:吴江区松陵镇云青天亮摄影工作室
资料来源/版权所有:山鼎设计