
近段时间,为大家展示了许多木结构建筑的制造工艺与优秀设计。随着木结构越来越普及,其优越的 保温隔热、防风抗震 性能也被大家所熟知。
作为21世纪最宜居的绿色建筑,人们对木结构的接受度越来越高,我们的后台已经收到了好几位用户咨询木结构产品。
其实,除了世界知名的特色商业建筑、现代木结构已经应用在了许多领域,比如 大型公共建筑、特色民宿酒店、自建别墅 等。

木结构建筑性价比怎么样?施工周期长不长?适不适合投资?可以买来自己住吗?
今天,我们就以 麓上住工 旗下的 “麓宿”系列 木屋建筑为例,给你全方位解构木结构建筑,给以上问题一个完美的回答。
麓宿·帐下姑娘
麓宿系列木屋

房型编号:LS-04
别墅层数:一层
占地面积:27.19㎡
建筑面积:27.19㎡
抗震级别:大于6级
建筑结构:木结构
使用年限:50年
功能间:露台 娱乐室
建筑整体为田园风格,建筑层数为一层,建筑结构为木结构。建筑外观造型独特,屋顶呈现帐篷形式,造型美观独特,性能优势。建筑采用木结构的组合式框架,结构稳固安全,抗风性强。

270°观景玻璃墙面,幕天席地,亲近自然。

麓宿 · 帐下姑娘系列帐篷木屋采用膜结构和木结构组合式框架,结构稳固安全,抗风性强。
整体流线型外观和内部装修都围绕自然、生态、野趣、便利的设计原则,突出返璞归真的自然生态质感。

/室内装饰

/智能化观景家居

还有更多户型可供选择
豪华版· A户型

”
1.8M双人床+床尾靠凳+双床头柜组合
独立茶室(榻榻米)
独立设备间
干湿分区卫生间(带洁具)
2M组合柜(衣柜、行李架、茶水柜)
浪漫双人吧
阳台全景豪华大浴缸
全屋智能系统(灯光+窗帘+影院模式)

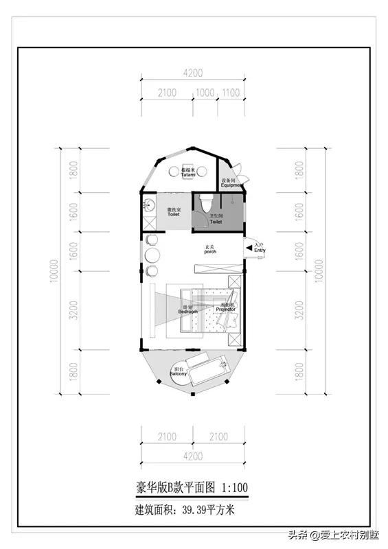
豪华版· B户型

”
1.8M双人床+床尾靠凳+双床头柜组合
独立茶室(榻榻米)
独立设备间
干湿分区卫生间(带洁具)
2M组合柜(衣柜、行李架、茶水柜)
浪漫双人吧
阳台全景豪华大浴缸
全屋智能系统(灯光+窗帘+影院模式)

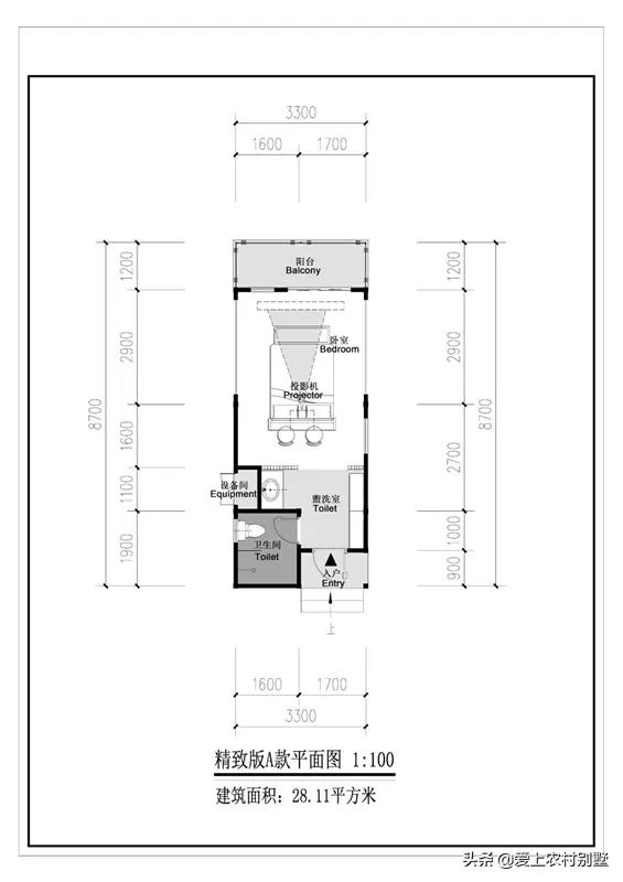
精致版· A户型

”
情景吧台+1.6M双人床+床尾靠凳
2M组合柜(衣柜、行李架、迷你吧)
独立设备间
干湿分区卫生间(带洁具)
全屋智能系统(灯光+窗帘+影院模式)

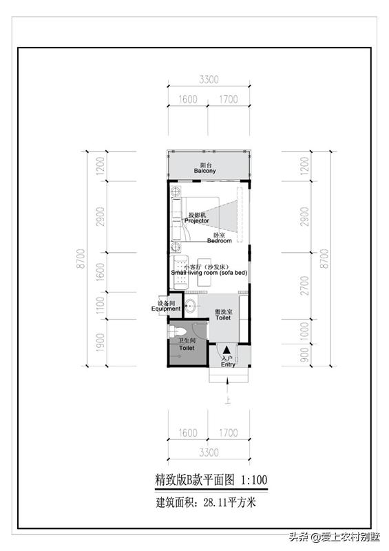
精致版· B户型

”
双人位小客厅(1.2M单人床)
1.8M双人床+双床头柜
2M组合柜(衣柜、行李架、迷你吧)
独立设备间
干湿分区卫生间(带洁具)
全屋智能系统(灯光+窗帘+影院模式)

湖南麓上住宅工业科技有限公司是湖南省成立时间最早、落地项目最多的装配式木结构企业之一,已被认定为 高新技术企业和省级装配式建筑产业基地 。

麓上住工致力于为广大客户提供文旅木结构整体解决方案,打造特色木屋酒店,从业数年来获得了领导和媒体的高度关注与肯定,旗下“麓宿”系列除了上文提到的 “帐下姑娘”系列 ,还有风格各异的 时光驿、面包屋、部落系列 旅居木屋酒店。
移动旅居酒店鉴赏
麓上住工
时光驿系列

适合青少年儿童时期使用的研学木屋、中青年自由行的营地木屋,以及为老人而优化的康养木屋。
原木结构主体、生态屋顶、适度的空间布局,为不同年龄阶段的人们,量身打造安全、健康、 温暖、自然的宜居环境。

时光驿·芳华(营地木屋)
面积:约26㎡;净空高度:2.65m

时光驿·风华(8床位研学木屋)
面积:约26㎡;净空高度:2.65m
部落系列

麓宿部落系列木屋采取三角形造型设计,是向经典建筑的致敬和回归,给人以独特视觉冲击的同时,更能通过建筑将 人们带离浮嚣的现实,融入远古时代静谧、悠闲而自然的生活状态。

情侣版
建筑主体占地面积:36.93㎡
露台面积:15.83㎡
亲子版
建筑主体占地面积:39.03㎡
露台面积:17㎡
商务版
建筑主体占地面积:54.28㎡
露台面积:15.83㎡
面包屋系列

亲子市场已经成为酒店极其重要的一个业绩增长点。麓上住工充分发挥木结构材料生态环保、造型新颖奇特、空间舒适多变、组装快捷并可整体移动的特点,打造了面包屋系列旅居产品,助力疫后旅游住宿产业的快速复苏与振兴。

豪华版 面积:18㎡
长度:7.3m 宽度:2.3m 高度:3.3m

精致版 面积:10㎡
长度:4.5m 宽度:2.3m 高度:3.3m
木结构建筑助力
文旅特色小镇高质量发展