学习CAD有一段时间了,却看不懂建筑施工图纸怎么办?我们知道在CAD图纸中,有很多种不同的符号,比如电气符号,钢筋符号等等,我们想要看懂相关施工图纸,必须先要了解这些符号所表达的意思,同时学会识图。本篇给大家分享一组建筑视图符号详解,以及建筑施工图纸查看方法。

3种方法教你看懂建筑施工图纸








建筑图纸中的常用符号
1 板 B
2 屋面板 WB
3 空心板 KB
4 槽行板 CB
5 折板 ZB
6 密肋板 MB
7 楼梯板 TB
8 盖板或沟盖板 GB
9 挡雨板或檐口板 YB
10 吊车安全走道板 DB
11 墙板 QB
12 天沟板 TGB
13 梁 L
14 屋面梁 WL
15 吊车梁 DL
16 单轨吊 DDL
17 轨道连接 DGL
18 车挡 CD
19 圈梁 QL
20 过梁 GL
21 连系梁 LL
22 基础梁 JL
23 楼梯梁 TL
24 框架梁 KL
25 框支梁 KZL
26 屋面框架梁 WKL
27 檩条 LT
28 屋架 WJ
29 托架 TJ
30 天窗架 CJ
31 框架 KJ
32 刚架 GJ
33 支架 ZJ
34 柱 Z
35 框架柱 KZ
36 构造柱 GZ
37 承台 CT
38 设备基础 SJ
39 桩 ZH
40 挡土墙 DQ
41 地沟 DG
42 柱间支撑 DC
43 垂直支撑 ZC
44 水平支撑 SC
45 梯 T
46 雨篷 YP
47 阳台 YT
48 梁垫 LD
49 预埋件 M
50 天窗端壁 TD
51 钢筋网 W
52 钢筋骨架 G
53 基础 J
54 暗柱 AZ
建筑识图符号详解
1常用结构构件代号

2柱编号

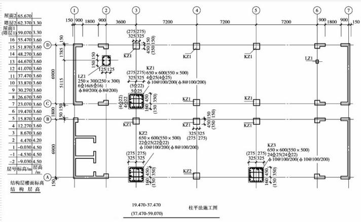
3柱平法施工图截面注写方式示例

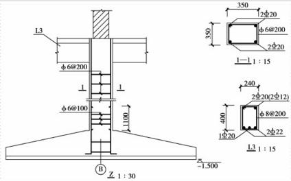
4钢筋混凝土独立基础详图

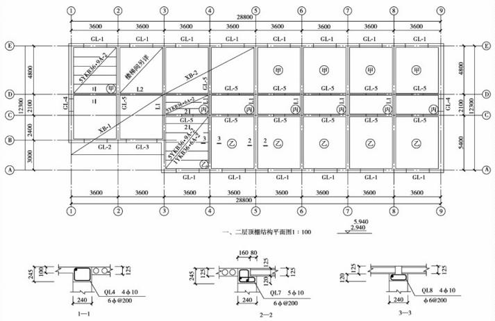
5结构布置平面图与详图

6钢筋表

7钢筋混凝土梁结构详图

8钢筋混凝土柱结构详图

9钢筋混凝土雨棚板结构详图

10楼梯结构平面图

11定位轴线划分

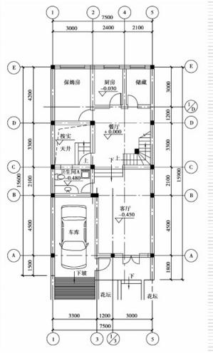
练习:看过以上的内容,看看你是否可以看懂下面的建筑施工图纸
多层住宅施工图:原图纸包含了4整套小区住宅施工图,包含其正面侧面,各层施工图一下图纸为其中一套住房施工图图纸格式均为dwg格式,下面是图纸部分预览。图纸来源:迅捷CAD图库。



深圳市为众云科技有限公司
公司以物联网技术为核心,专注于智慧物联解决方案及运营服务,致力于打造“互联网+”工程现场一站式管理的智慧工地云平台。平台针对建筑工地人员管理、设备管理、物料管理、现场管理、实时监测几大方面向工地提供市工地实名制系统、电子围栏系统、车辆识别系统、环境监测系统等,全方位为工地提供实时化、数据化、自动化、智能化管理模式,为工地提高生产效益,降低安全事故概率,多方协同管理有效降低沟通成本。