叔在选择楼盘进行测评时,一直遵循一个原则就是“粉丝关心哪个,叔测评哪个”。几乎每天都会有粉丝给叔留言,询问楼盘的好坏,但测评要一个一个来,今天轮到保利茉莉公馆。
项目概况:
保利茉莉公馆项目位于小店晋阳街与山针中路交汇处东南角,总占地面积14.7万平方米,目前已开发到四期;规划楼栋26栋,均为14-20层的小高层,以18层的居多,规划总户数2276户,容积率2.45,绿化率35%,车位配比1:1.6,物业为保利物业。从配置上看,属于高端项目。

区位点评:
项目东侧与太原南站之间隔着一个万科广场,直线距离不超过500米。晋阳街是最近几年小店区发展速度比较快的街道,南站投入使用后,项目周边的环境得到了非常大的改善;周边的品牌楼盘不多,住宅以单位宿舍和本土开发商项目为主,比较适合居住。
交通评价:
自驾交通
项目南侧紧挨荣军北街,西侧为山针中路,东侧靠近旧太榆路、距离太榆路不到400米,北侧针织路在建中、距离晋阳街200米。除了高峰期比较拥堵外,交通上没什么太大的问题。

轨道交通
项目距离地铁1号线太原南站站点的距离不超过1公里,与中心街站和龙城大街站的距离也不是特别远,规划中的地铁3号线也会经过附近,属于被地铁包围的项目。
公交出行
项目周边的公交站点分布在晋阳街和南站门口,公交线路非常多,乘坐公交出行是比较方便的。
人居环境:
项目周边的配套设施还算齐全。距离晋阳街公园1公里,靠近山西大学和财经大学,日常休闲和运动需求都基本可以满足;与武宿机场距离不远,但几乎不受影响。

项目医疗条件不算太好,距离山西大院4.5公里;周边除荣军医院外,没有更好的医院;但目前的配置是可以满足日常需要的。
商业配套:
项目与北美N1的距离在2.5公里左右;项目周边超市、沿街商铺和购物中心不少,再加上项目底商,不管是日常采买还是大宗购物都非常方便,而且东侧万科广场预计今年年底开业,未来商业发展潜力巨大。

教育资源评价:
项目南侧有配建幼儿园,周边学校资源也比较丰富,但具体对口哪所学校目前还没定。
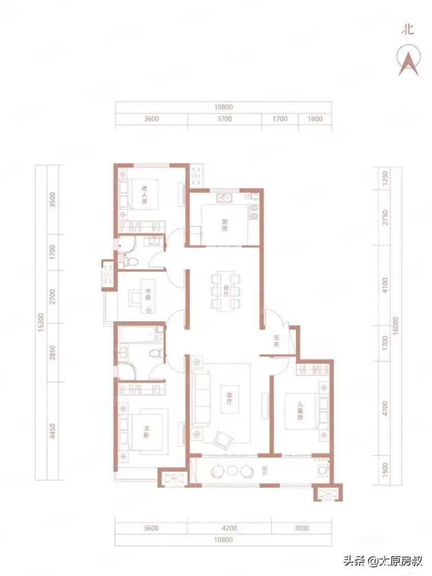
户型评价:
该项目目前没有小户型在售,户型面积从139㎡—190㎡,以三居室和四居室为主,户型死角比较多,设计的不是太好。
三居室主推C3户型,建筑面积约139.00平米,三面朝阳,只有客厅和厨房做到了南北通透,客厅和次卧带景观阳台采光良好,主卧的采光会差一点;全明两卫,南侧次卧与卫生间距离太远,使用不方便;属于常规户型,没有太大的亮点。

四室D1户型,建筑面积约169.00平米,与三室户型相比多了一个西朝向的书房,主卧和北侧次卧的通风更好,其他方面的优缺点基本相同。

四室D2户型,建筑面积约190.00平米,三面朝阳,7.2米客厅开间采光良好,但南侧两个卧室的窗户都不大,采光不能算最好的;三个卫生间只有一个有窗口,除此之外没有什么大问题。

价格评价:
项目目前售价15500元/㎡左右,比周边的品牌楼盘价格略低一点,周边的环境、生活配套和发展状况也比较好;保利自己的物业服务也能够保证,居住舒适度较高。
但目前在售的户型多少都有一点小问题,建议大家实地考察一下,如果影响不大可以入手。
施工进展:
项目一期开盘时间为17年8月19号,预计今年年底交房;四期开盘时间为今年3月6日,预计交房时间为21年年底。