怎样思想,就有怎样的生活。
——爱默生
18年5月,我们接到设计委托,为张女士设计他的爱宅。
项目位于河北省秦皇岛市,紫城秦皇半岛社区,为平层户型。

1
项目概况
建筑面积:200㎡
设计范围:内装修
建筑结构:多层钢混
主要材料:天然石材;柔抛瓷砖;素色壁纸;定制线条;定制家具等
设计周期:15天
设计单位:[LVD] 夏博识、林帅
2
前期
我们先来看一下原始的结构:

原 貌
很漂亮的房子:格局为四室两厅一厨两卫,房型方正,均有采光无暗室,层高3m,前堂后寝,动线规划合理。美中不足过道窄且深,其他均表现出色。

业主诉求:
家中有两个小朋友,家人很重视孩子的成长,希望能有充足的活动空间。
另外女主人特别提出收纳问题,家中物品多所以要求有足够的收纳体积承载,原则上收纳投影面积应占无地面面积12%以上,但过多的收纳空间会减少空间的开间和面宽削弱空间气场,所以我们在这个问题上进行了深化与取舍。
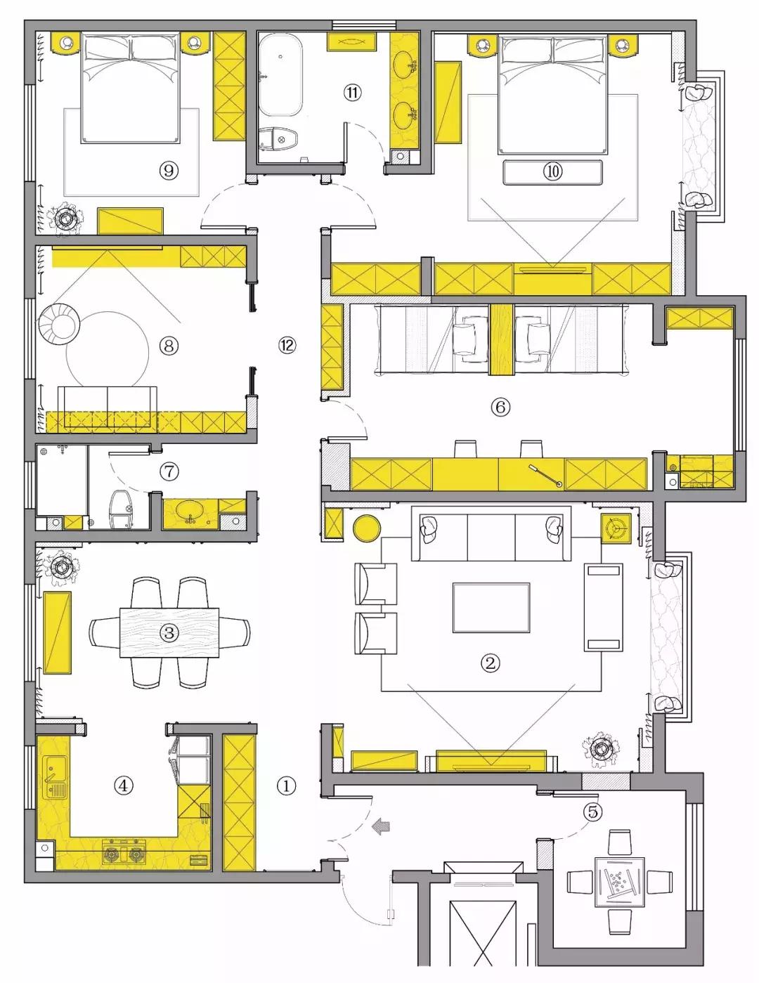
初次碰面后,我们调整了这套房子的格局。

一层布局

收纳规划
得到以上布局:
采用定制家具,利用房高的优势增加收纳空间。
在客厅利用硬装造型的完成面形成轴线,理性端庄。
将北2卧室做为多功能室,集收纳、儿童活动、试听与一体,作为公共空间的延伸不做绝对分隔,又引入采光进入过道,打破过道的沉闷冗长。
将对面原独立衣帽间空间打开,一部分分给儿童房使用,是格局方正,另一侧在活动室对面做入墙柜架,可展示家庭照片或收藏品,增强生活气息。
3
中期
平面布局通过,设计进入中期阶段。
调子上,主人目前的居所为新中式风格,很喜欢但是感觉色调稍显沉闷,这套房子想有一种别样的感觉,明快但要雅致。
沟通了两次,比较喜欢现代美式的感觉。有现代生活的明快兼具经典元素的历史文脉。
在材料及配饰上也进行了一些设定。
【材料类】

【配饰类】

4
立面效果
经过一周的深化,我们确定了各空间的硬装方案。







5
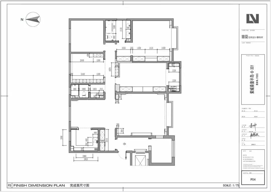
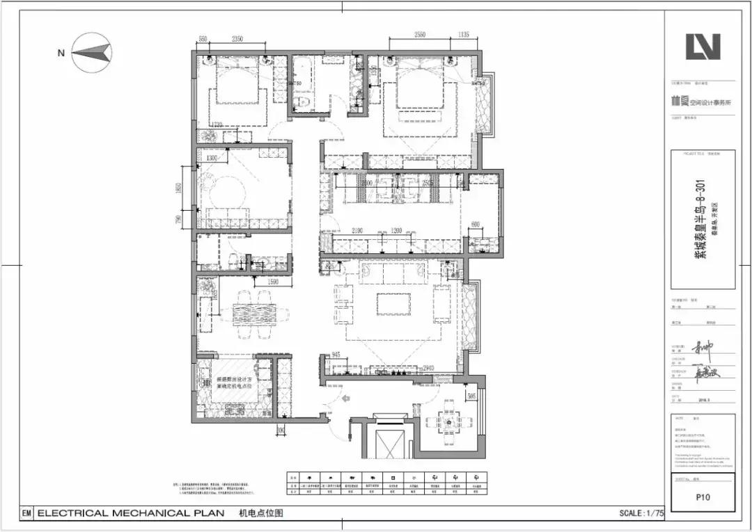
图纸深化
按照国标《内装修图纸规范SJ803》;《房屋建筑制图标准GB/T50001》;《林夏设计事务所制图范本》制作施工图纸,周期为一周。




[后记]
每一个经典风格都有其代表性的元素存在,以往上课时也总向同学们强调这点。提到东方风格,你想到的可能是斗拱雀替,三关六扇门。而提到西方风格,则可能是众柱式,帕拉迪奥母题。反过来讲,你想要这种感觉,就需要融入相应的元素。
风格的形成这里我不想赘述,我想说的是——风格挑房子。
房子自身的条件(开间进深,举架,格局等)会对应相应的风格,比如西方古典风格,往往会发现,传统的西方建筑为砖石结构,而现在我们能够看到的建筑均为神殿、宫廷或其他作为公众使用的公共建筑,由于结构——要获得大的空间(大开间与大进深)就需要柱来支撑屋面,这就有了西方及其丰富的柱式体系,神殿或教堂想要的高举架(如哥特),也同样需要有相应的建筑元件作为支持。而当代建筑,尤其是集中住宅体系,是不具备这样的条件的。
所以我们现在看到的往往变成了照猫画虎,最容易出现的问题就是比例问题——硬装体系的比例问题,家具与空间的比例问题等等。问题很明显,所以慢慢进行了“减法”的过程。这也可能也是所谓“简X风格”形成的一个原因吧,很难能在普通的居所里看到能处理好的案例。
偶尔学术一下,不多说。(个人愚见,如有纰漏,欢迎指正。)
本期也到了结尾,有时间约我和lnsa,聊聊你对家的营造有什么想法,希望能帮到你,当然也希望你能够喜欢我们的设计。
这期就到这里,see you !
END

We are committed to
我们致力于空间设计范畴:硬装、软装、规划设计(住宅与商业空间),提供空间设计咨询服务。