项目概况
业主想要在老家的宅基地盖一栋二层的民宿,要求要有8~10个客房房间,配套些杂物间,业主有一个期望原则:用最少的投入,获得较好的体验,控制成本,外观简约,没有后期维护压力;
基地情况
该项目位于河北石家庄赵县,住宅周围都是自家菜地,比较宽阔,视野也比较好,做民宿是不错的选择;


效果展示
项目主要是做民宿使用,院落做了一些简单的景观布置,门前种植大树,庭后种花花草草,围墙处种植竹子,寓意节节高升;建筑色彩上,采用白墙灰瓦,形成质朴、淡雅的整体风格。

△鸟瞰图
考虑到经济与造型等综合因素,建筑师将整个民宿分成两个空间体量,相互错位咬合,同时坡屋顶错位来使得造型较为生动。

△鸟瞰图
两个空间体量的造型解决了单个较大民宿体量较大造成尺度比例失调,建筑更加灵动。

△鸟瞰图
院内栽种多种植物,绿意盎然,生气勃勃。

△鸟瞰图
屋檐挑出,避免了雨水对墙体的冲刷,也更有利于排水。

△庭院效果图
图纸中心
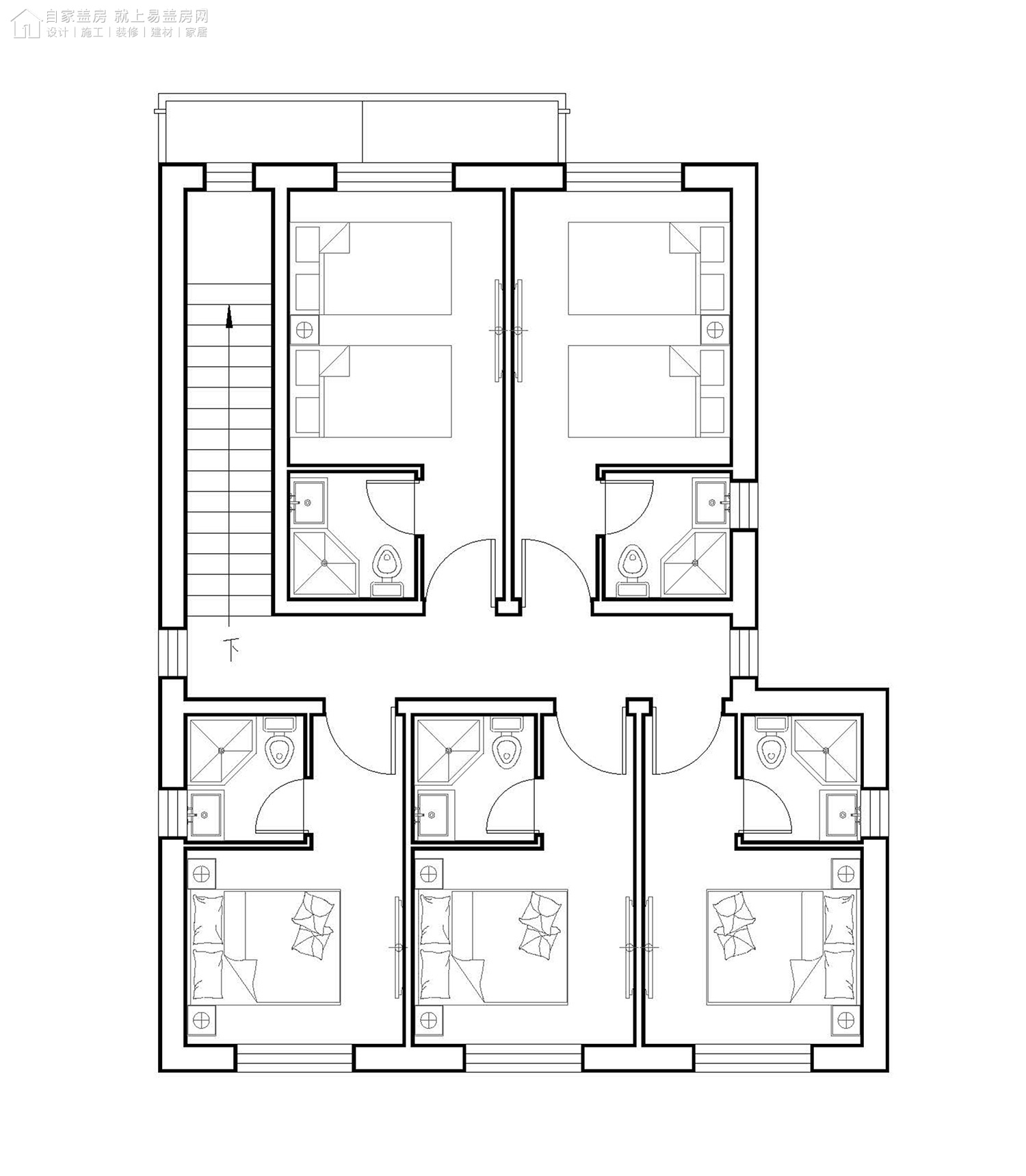
项目完全是做为民宿使用,使用在布局上设计完全是套间客房,一层设有一处双人床套房带有独卫;还有三处大床房带有独卫;二层设有两处双人床套间,还有三处大床房套间,均带有独卫;一共设有9间套房,做一个简单的小民宿使用足够了;

△一层平面图

△二层平面图


△南立面图


△北立面图


△东立面图


△西立面图