

Year Periodical: 2021年第15期
Project Details: 北京市朝阳区居然软装灯饰馆东鹏瓷砖店
Project Area: 387㎡
Design Units: 东鹏设计院
Project Schedule: 2021.3完工

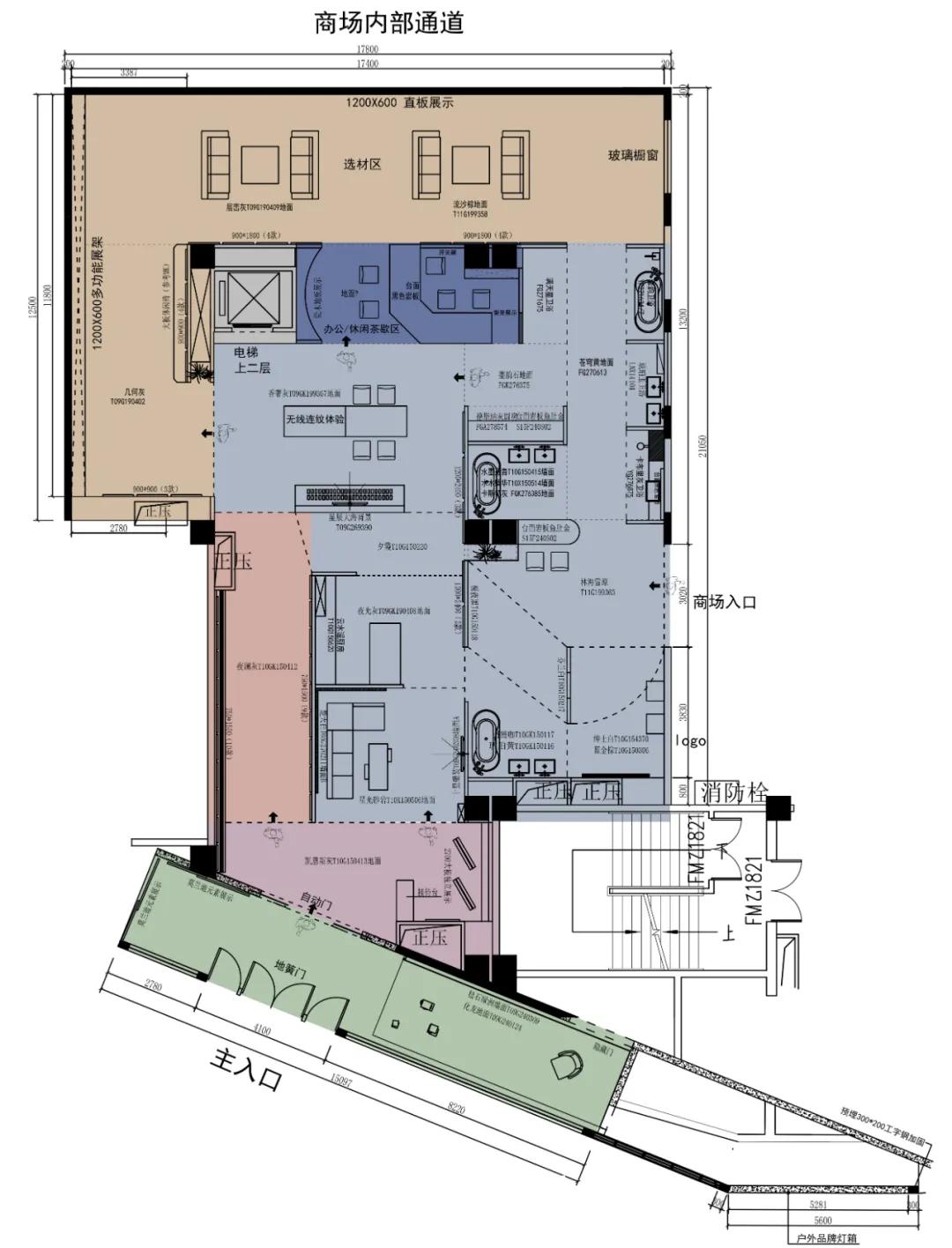
北京朝阳区十八里店乡周家庄路8号居然软装灯饰馆一层的东鹏瓷砖门店,是一个原始空间不够规则的门店,如何合理布局,不浪费一丝一毫的空间成为设计师设计的要点之一。商场的中庭位置,为店面内部增添曝光度是该店的亮点之一,设计师巧思妙想,很好地利用了其优势,出色地完成了设计。
Dongpeng store on the first floor of Unexpectedly Soft decoration Lighting Hall, No. 8, Zhoujiazhuang Road, Shibilidian Town, Chaoyang District, Beijing, is a store with irregular space. How to lay out rationally without wasting a bit of space has become one of the key points of designers' design. One of the highlights of the store is the location of the mall's atrium, which adds exposure to the interior of the store. The designer has made good use of its advantages and completed the design brilliantly.


平面图
(点击查看大图)



△ 橱窗展示:形象展示区

橱窗展示的选品是能够为门店带来部分进店率的关键。莫兰迪瓷砖系列,色彩斑斓,功能性强,搭配效果多样化,是作为瓷砖展示的绝佳选择。

简单的接待处,导购以最好的状态向客户展示其专业、亲和的形象。由于原有空间不够方正的原因,接待处位于形象接待处的后方,接待处的后墙采用极简的软膜灯箱设计,既能解决此角落采光不足的缺点,也能为此空间增加现代化元素。

从平面图可看出,进入接待处之后,有两个入口进入店面内部,两条动线,一条主打选材区,一条主打样间区。

△ 楚天白+十里银装客厅

在样间区穿插一个倾斜的通道,是该店一道亮丽的风景线。斜线的设计比平直的设计更加夺人眼球。克莱因蓝般的墙体,搭配极夜黑的地面,色彩鲜明,在众多中性色的空间里更显出众。嵌入式的长条灯带,和极夜黑的条纹相呼应,灯光倒映在光滑的地面上,使得空间拉伸感更强,空间更现代化。

斜线的小通道设计,从视觉上可以让内部空间曝光更多,人站在通道不同角度,看到的空间就不一样。正向可以看到小吧台,以及深入的部分样间区域。侧面可以看到琥珀黄+丹霞咖卫浴空间。冷暖色调空间相互交错。

林海雪原地板,丰富的瓷砖自然纹理,令人联想到森林、高山等雄伟的风景,展现了东鹏瓷砖纹理的多样性。入口左边的石柱设计成小吧台,不仅能够空间利用最大化,并且形成隔断,同时不妨碍空间之间的通透。


△ 绅士白+蓝金棕+泼墨卫浴

△ 卡布里灰卫浴

△ 琥珀玉卫浴

△ 满天星卫浴

中庭设计是该店的最大的亮点之一。商场的消费者可以在二层空间向下看到店面内部部分情况,是一个不需要进店就能达到曝光的优势。
香奢灰的地板,直通天花板的岩板墙面,丰富的瓷砖纹理,吸引消费者注意力。大面积的卡拉拉墙砖使用,给空间增加光感,色彩协调。

VR智能换砖系统,利用科技吸引消费者,让人感受到东鹏瓷砖的专业性,科技的力量,沉浸式场景设计,增强体验性,是零售店面绝佳的销售辅助工具。

天花使用半透明玻璃材质,可以在一定程度上折射室内光线,增加采光。

多边形的水吧设计,介于选材区、样间区、中庭位置之间,多边形的设计让水吧多方位展示,无论身处哪个位置,都能看到它。

△ 星辰大海

△ 选材区
Project Address: 北京市朝阳区十八里店乡周家庄路8号居然软装灯饰馆一层
Design Team: 东鹏设计院终端设计一组/软装组/平面组
Space Photography: 空间摄影-吴小飞&孙玉斌
Project Time: 2021年
东鹏设计院是致力于东鹏门店设计的专业团队,涵盖空间设计、软装设计、标准设计、平面设计、礼品开发等。东鹏设计院致力于为客户打造专业的门店设计,落实东鹏SI标准,项目遍布全国,设计团队以专业的能力和经验,结合文化和商业,与时俱进,创新、突破、融合,致力于打造中国陶瓷行业优质门店。
Dongpeng Design Institute is a professional team dedicated to the design of Dongpeng stores, including design of space, soft decoration, display standard, graphics, gifts, etc. Dongpeng Design Institute is committed to creating professional store designs for customers in accordance with Dongpeng SI standards. Its projects can be seen across the country. By upholding the principle of keeping pace with the times, innovation, breakthrough and inclusion, the design team is professional and experienced to build high-quality stores in China's ceramic industry with the combination with culture and business elements.
终端设计一组是主要负责华北地区和华东地区店面设计的设计团队。成功落地项目涉及黑龙江、辽宁、吉林、北京、天津、大连省等城市。

△ 项目设计师:吴小飞(左上)
张嘉铭(右上)、吴清华(左下)
软装设计师:李小燕(右下)

△ 导购合影