东升云是一家深耕大数据云计算的科技公司,其位于北京中关村的新办公空间由QUCESS清石设计团队打造。设计目标是将一栋1500平米的四层的独栋建筑改造成一个具有象征意义、联系员工、启发思维的科技办公场所。
设计:QUCESS清石设计
主案设计师:周全贤、穆煜
助理设计师:张志浩、刘伟、王海申
设计内容:建筑设计、室内设计、景观设计、软装设计
软装设计师:杨铱诺、平凡
品牌及宣传:李宇晗
地址:中国 北京
面积:1,500 平方米
时间:2020年
摄影:UK stidio
材料及品牌:水磨石地砖、科定木饰面、长虹玻璃、立邦乳胶漆、大师水泥艺术漆、地胶(LG)、地毯(interface)
Tags:科技,中国、复合空间、企业文化、简洁现代、绿色与橙色、工业风
本项目是东升云计算中心的新办公室,东升云是一家深耕大数据云计算的科技公司。设计目标是将一栋1500平米的四层的独栋建筑改造成一个具有象征意义、联系员工、启发思维的科技办公场所。

建筑外立面 ©UK Studio
基于以上目标我们将整栋四层独栋建筑划分为三个主要的功能区域:企业文化展示区、复合多功能空间,传统办公空间。
愉悦轻松的办公空间
2F/3F办公区域
二、三两层办公区域充分利用自身南向大面积落地玻璃采光,将开放办公区布置在南侧,开放、无边界的公共办公空间促进交流,小型会议和讨论空间穿插在开放办公空间中间,功能互相渗透让办公空间不再孤立。

二层办公空间 ©UK Studio

二层办公空间 ©UK Studio

二层办公空间 ©UK Studio

二层办公空间小会议室 ©UK Studio

二层办公空间独立办公区 ©UK Studio
二层和三层的整体空间以简洁现代的风格为主,力求突出企业务实的工作风格和科技的工作内容,主题色我们分别提取了两个企业品牌色:绿色和橙色,鲜明的主色点缀在简约现代的空间中,为空间营造了一种活泼愉悦、灵活轻松的整体氛围。

三层办公空间 ©UK Studio

三层办公空间 ©UK Studio

三层办公空间 ©UK Studio

三层办公空间 ©UK Studio
满足人性化需求的分享空间
1F复合空间
有研究指出,当企业为员工提供形式多样的工作环境和空间,能够使员工获得更大的满足感,从而提升工作效率。因此一层空间以公共空间的形式为人们提供了新颖、有趣的各种会议模式,成为整个大楼不可分割的一部分。

一层复合空间 ©UK Studio

一层复合空间 ©UK Studio
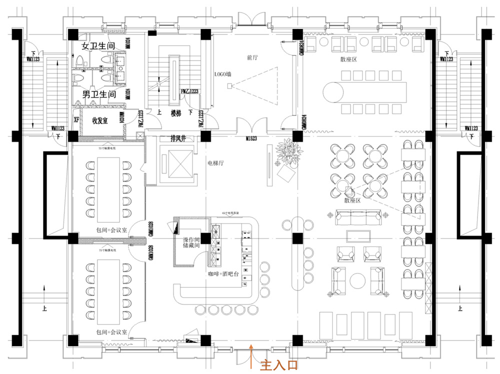
它的功能被设计成一个集咖啡、会议、休闲等功能为一体的复合空间。我们希望一层的复合空间既是办公空间的一部分:为员工提供多元化的办公选择、为商务接待和小型会议提供灵活空间,同时也作为园区的“共享会客厅”为园区提供咖啡简餐、酒吧聚会、演出会客等服务。

一层复合空间 ©UK Studio

一层复合空间会议室 ©UK Studio

一层复合空间 ©UK Studio
一层整体空间采用了一种谨慎而大胆的配色策略中性灰色的墙面地面、原木色的桌面营造了沉静的空间基调,孔雀绿色的吧台和有韵律感的竖向装饰线条为空间增添了活泼又复古的氛围。空间中原生态的水泥艺术漆、长虹玻璃、棕色皮质座椅形成材质对比为空间增加了精致的细节。

一层复合空间吧台细部 ©UK Studio

一层复合空间吧台细部 ©UK Studio

一层复合空间吧台细部 ©UK Studio

一层复合空间休闲区 ©UK Studio

一层复合空间会议区 ©UK Studio

一层复合空间会议区 ©UK Studio
具有象征意义的展示空间
B1星空通道
园区地面禁止机动车通行,整体共享一个地下停车场,客人主要入口位于建筑的负一层。因此我们将负一层的入口空间与展示功能结合,梦幻的星空走廊和纯净的路演空间共同隐喻了企业的科技基因,组成了展示企业品牌形象的第一扇窗口。

星空通道 ©UK Studio

路演大厅 ©UK Studio
设计师认为设计的首要任务是解决实际办公功能需求:在有限的空间内容纳尽量多的办公人员,同时创造有象征意义的展示空间、为员工创造有归属感的办公空间,通过空间提升品牌商业价值。为员工创造愉悦舒适的工作环境,用工作空间反映企业的价值和理念,用设计帮助企业提升品牌的商业价值。

负一层平面图

一层平面图

二层/三层平面图
关于清石设计——
由李怡明先生与徐瑛女士、吕翔先生于2005年共同创立的清石建筑设计事务所(QUCESS DESIGN FIRM),是一家致力于产业园规划与咨询、建筑室内一体化改造、办公及公寓空间设计、酒店会所等高端空间设计、软装设计服务的百人设计机构。清石设计首次提出“让设计创造价值”。自创立至今,委托清石设计提供优质空间设计服务的客户超过100家,其中包括中关村科技园区、百度、万科等顶尖企业的设计服务商,也是中国最具规模的联合办公空间“优客工场”的设计战略合作伙伴。
PS:浏览大图请至官网~
猜您喜欢:QUESS清石设计更多作品——
1、呼吸之间 泰利驿站中关村办公设计欣赏

2、上善若水 腾盛博药全球研发中心北京办公设计欣赏

活动回顾:3月30~4月2日,2021时尚办公嘉年华上海站@Hotle plus-N5D02——办公空间体验、论坛、沙龙、作品展,发现时尚办公流行趋势,发现时尚办公好物。下次活动见!

线*体下**验:时尚办公嘉年华活动延伸~,2021年4月,上海徐家汇天钥桥路123号城开YOYO五楼,体验内容:联合办公、品牌家具(来自:arper、USM、Flokk、MAGIS、VS等)、……

延伸阅读:在时尚办公网,发现各行业更多时尚办公空间——
联合办公、总部、科技、设计、软件、游戏、广告、影音、金融投资、地产、教育、政府/非营利机构、传统行业……
供稿:QUESS清石设计,来源:时尚办公网popoffices,转载请注明,谢谢!