制冷百家网
为制冷行业人士提供免费在线视频课程
观看
制冷空调行业自学平台,海量资料,海量视频,海量课程,注册会员免费*载下**资料,网址:www.zhilengbj.cn

手把手教你学空调电路板(变频+定频)
1制冷原理

制冷四大过程:
压缩机—压缩过程;
室外机—冷凝过程;
毛细管(节流阀)—节流过程;
室内机—蒸发过程;
2空调系统组成
一、制冷过程:
1)、系统流程图:

2)、制冷系统相变

二、制热过程:
1)、系统流程图:

2)、制冷系统相变

3主要部件
1)、四大部件:
压缩机
冷凝器
节流装置
蒸发器
2)、制冷辅助部件
电磁阀
截止阀
单向阀
过滤器
干燥过滤器
四通阀
消音器
储液器
气液分离器
3)、制冷剂
R22
R410A
R407C
R32
4压缩机

1、转子式压缩机

2、涡旋压缩机

涡旋式制冷压缩机的特点:
1、相邻两室的压差小,气体的泄漏量少。
2、转矩变化幅度小、振动小。
3、没有余隙容积,故不存在引起输气系数下降的膨胀过程。
4、无吸、排气阀,效率高,可靠性高,噪声低。
5、由于采用气体支承机构,故允许带液压缩。
6、机壳内腔为排气室,减少了吸气预热,提高了压缩机的输气系数。
7、涡线体型线加工精度非常高,必须采用专用的精密加工设备。
8、密封要求高,密封机构复杂

压缩机常见故障:

5换热器—冷凝器、蒸发器
1、蒸发器:
蒸发相变的热交换器。在制冷系统中的作用是对外输出冷量,冷却被冷却的介质。

2、冷凝器:
冷凝相变的热交换器。在制冷系统中的作用是对外输出热量。

3、分类与组成

4、常见故障于对策:

6节流装置
1)、毛细管

2)、电子膨胀阀

电子膨胀阀作为变频空调中的节流器件,是制冷系统中最为关键的器件之一。
由于变频空调的压缩机频率可以变化,使得系统中制冷剂的流量变化,加上工况的变化,如果要使换热器发挥最大的换热效率,使用可以调节制冷剂流量的电子膨胀阀是非常好的设计。

1、开环控制:
其主要是在设计时根据不同的工况和频率,测试出相应的优化电子膨胀阀开度曲线,在实际控制时可按照经验曲线进行控制。
目前具体的控制有:拟合曲线开环控制、模糊开环控制等。
开环控制的优点就是控制比较简单,易于实现,但缺点精度差,控制的鲁棒性较差,前期确定开度曲线的工作量较大。
2、闭环控制:
闭环控制方案有很多,但从总的控制参数方面来看,目前主流的方案有两种:过热度控制和排气温度控制。
变频空调在实际运行时可适时的根据其制冷系统的排气温度特性曲线和过热度特性曲线进行自动调节,以满足系统运行的优化状态。
闭环控制的优点是控制精度较高,控制的鲁棒性较好,前期设计中工作量相对较小,但控制算法比较复杂。

电子膨胀阀一般来讲在使用过程中出现问题最多的是:不动作。
1、电控驱动方面:
一般电子膨胀阀的驱动电压为 12V±10%。当一些特殊情况下如低电压、控制板故障等时,其驱动电压低于下限时,就有可能导致不动作。因此因先查驱动电压是否正常。
2、机械故障:
此方面主要是变形、配合不当、磨损、杂质异物进入、润滑不好等导致步进机构卡住不动作。可采取敲击、升温等方式试探。
3)、节流阀
属一种孔板节流装置,通过微小的孔径进行节流降压。其相当于将毛细管、单向阀、过滤器集成于一体。

7四通换向阀

1)、断电状态

电磁阀断电,先导滑阀2在弹簧3的作用下左移,高压气体进入毛细管1后进入活塞腔4,另一方面,活塞腔5的气体排出,由于活塞两端的压差作用,活塞及主滑阀6左移,使E、S接管相通,D、C接管相通,一般便形成制冷循环。
2)、通电状态

电磁阀通电,先导滑阀2在电磁线圈产生的磁力的作用下右移,高压气体进入毛细管1后进入活塞腔5,另一方面,活塞腔4的气体排出,由于活塞两端的压差作用,活塞及主滑阀6右移,使S、C接管相通,D、E接管相通,一般便形成制热循环。
3)、常见故障排除:

8其他辅助部件
1、单向阀

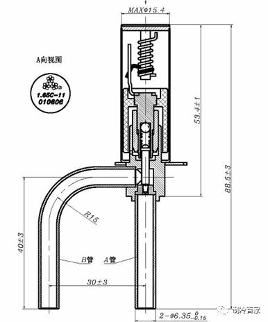
2、截止阀

9制冷剂充注对参数的影响
下图是重点中的重点,必须好好理解:

10典型的几个制冷系统原理
1、热泵型空调

2、内机不降温只除湿

3、除霜系统原理图

4、一拖多空调系统原理:

《完》
推广

需要资料的同行请:
制冷百家直播间
每周五免费公开课,赶紧进来看看吧
